«Сосны На Морском Берегу»
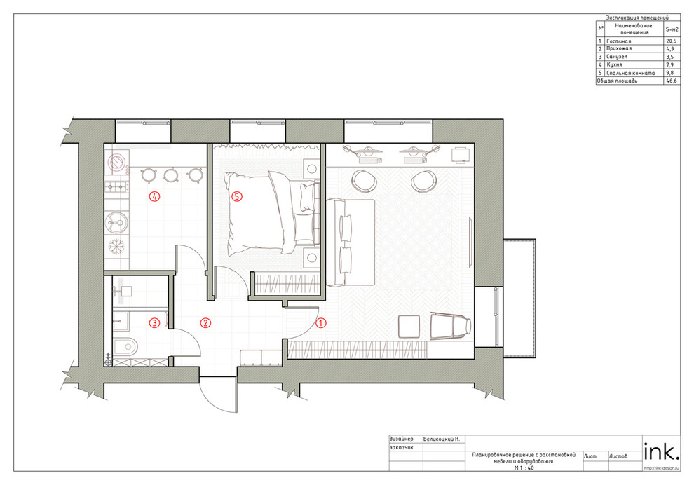
месторасположение: Россия, Московская область, Раменское . функция: квартира . площадь: 46 кв.м . заказчик: частное лицо . дата: лето 2016 . Эта небольшая (46м2) квартира находится на втором этаже девятиэтажного кирпичного дома 1967 года постройки. Главным преимуществом жилья является прекрасно озелененная придомовая территория и тихий район, расположенный в стороне от крупных автомагистралей города. Владельцы квартиры - молодая семейная пара, создатели и владельцы развивающейся транспортной компании. Их пожелания звучали так - светлый, современный интерьер. Необходимо было организовать подобие домашнего офиса, то есть два рабочих места, оснащенных необходимой оргтехникой. . . В процессе проектирования были приняты следующие решения - везде, где есть кирпичная кладка, сбить старую штукатурку, а кирпич окрасить в белый цвет латексной краской. Покрытие пола из штучного паркета (бук) отремонтировать и покрыть маслом. Сделать в гостиной и кухне столешницы - подоконники, для того, чтобы не занимать место рабочими и обеденным столами. Шторы заменили жалюзи, которые монтируются на оконный блок. Все системы хранения являются встроенными. . Согласно планировочному решению, в квартире появились пять функциональных зон - гостиная (для работы, отдыха и дружеских встреч), спальная комната (впоследствии будет переоборудована в детскую), кухня-столовая, прихожая и санузел.
21 фотография






















