«A Wild Sheep Chase»
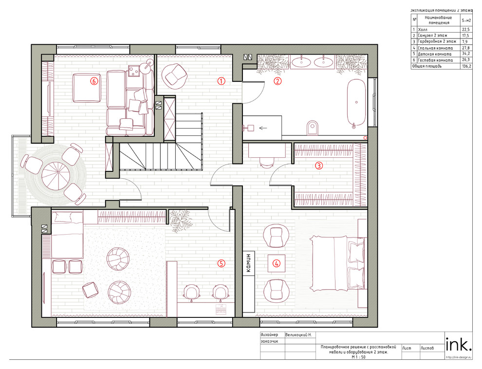
месторасположение: Россия, Самарская область, Старый Буян . функция: двухэтажный коттедж . площадь: 105 + 136 кв.м . заказчик: частное лицо . дата: зима 2015 . . Первый завершенный в 2015 году дизайн-проект. Нами был разработан проект интерьера коттеджа, который находится в городе Самара. С заказчиками мы знакомы давно, в 2013 году они заказывали у нас проект квартиры. Результат работы им понравился, и когда они приобрели коттедж, опять пригласили нас. . Общая площадь двух этажей - 241 м2 (первый этаж - 106м2, второй этаж - 136м2). Площадь второго этажа больше за счет двухметровой консоли по фасадной части. Огромным преимуществом первого этажа является панорамное остекление одной из стен, с выходом на террасу и видом на сад. Функциональные зоны первого этажа - гостиная, совмещенная с кухней и столовой, кабинет, санузел, гардеробная, тамбур-прихожая и гараж на одну машину. Для подъема на второй этаж спроектирована компактная лестница из дуба с двумя забежными платформами. На втором этаже дома расположены спальная комната родителей, детская комната, гостевая (в отсутствии гостей выполняет роль второй гостиной) и санузел. . Интерьер выполнен в современном стиле. Объединяющим элементом является темный пол (тонированный массив хикори). Так же была использована декоративная штукатурка, керамогранит и мозаика из сланца. Встроенная мебель (шкафы и стеллажи) спроектирована специально для этого дома. В качестве отопительных приборов были использованы внутрипольные конвекторы, настенные радиаторы и системы теплого пола. . Название проекта «A Wild Sheep Chase», то есть Охота На Овец - это название известного романа Харуки Мураками. Дело в том, что когда мы прилетели из Санкт - Петербурга в Самару для того, чтобы выполнить предпроектные работы, был уже вечер, и мы приняли решение заночевать в доме, благо отопление и спальные места уже были, а с утра начать трудится со свежей головой. Перед сном, перечитывая конец книги Охота На Овец, я посмотрел в окно на первом этаже и увидел заснеженное поле и в конце его березовую рощу, тот же пейзаж, который наблюдал герой романа. Казалось, стоит прищурится, и я увижу Человека - Овцу, который бежит по сугробам, чтобы попросить сигарету и стакан виски.
45 фотографий














































