«Снег, Лед и Небо»
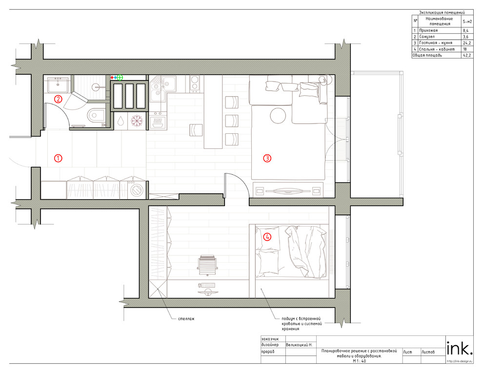
месторасположение: Россия, Ленинградская область, город Зеленогорск . функция: квартира . площадь: 42 кв.м . заказчик: частное лицо . дата: осень 2016 . Уникальность этой квартиры в том, что из ее окон открывается восхитительный вид на Финский залив. Нам нужно было лишь создать интерьер, который стал бы достойным фоном для этого творения природы. Акватория Финского залива - это образец суровой северной природы нашего края. Здесь не встретишь ярких, кричащих красок и фактур юга. Преобладающая цветовая гамма в теплое время года - серые, синие, зеленые, песчаные приглушенные оттенки, зимой же - только снег, лед и небо. Мы постарались повторить эту гамму в нашем интерьере. . . Квартира разделена на две комнаты и санузел. Главный объем - это объединенная с кухней гостиная, которая так же выполняет функцию столовой (для этого предусмотрена барная стойка). Для отдыха в гостиной есть небольшой диван, а так же можно устроится на подушках на низком подоконнике. В основание подоконника встроен конвектор, поэтому сидящий не замерзнет. Кухонный гарнитур занимает дальнюю стену помещения и часть прихожей. При небольших размерах в нем уместились встроенные холодильник, посудомоечная машина, микроволновая печь, духовой шкаф, большая угловая мойка, двухконфорочная электрическая варочная панель и вытяжка. В прихожей есть большой шкаф и кушетка для сидения. . . В спальной комнате мы спроектировали и воплотили кровать, встроенную в подиум, в котором так же есть отделения для хранения вещей, которые редко используются. Спальное место расположено таким образом, что открывая глаза, можно не поворачивая головы видеть волны Финского залива. Конечно, есть возможность создать приватную обстановку с помощью римской шторы. Изголовье кровати переходит в рабочий стол с встроенными выдвижными ящиками. Особенность этого стола в том, что у него нет видимых опор, и он как бы висит в воздухе. С одной стороны стол примыкает к стеллажу, который, в свою очередь, является одним целым с встроенным шкафом. . . Небольшой санузел вместил душевую кабину в строительном исполнении, унитаз и раковину, которая установлена над стиральной машиной.
20 фотографий





















