«Оригами»
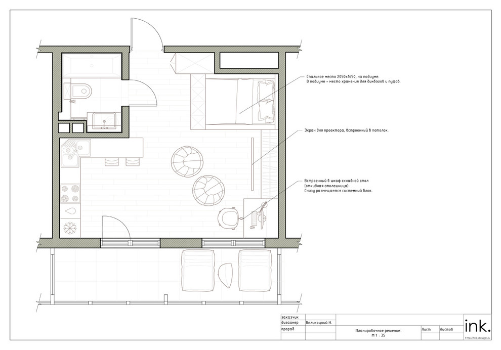
месторасположение: Россия, Санкт - Петербург, набережная Обводного канала . функция: квартира . площадь: 43 кв.м . заказчик: частное лицо . дата: лето 2015 . . Эта небольшая квартира находится в новостройке недалеко от станции метро Фрунзенская. Владельцы - молодая семейная пара. Преимуществом квартиры является высота помещения (3 метра), а так же лоджия с панорамным остеклением и прозрачной крышей. Пожелания заказчиков звучали так - отсутствие внутренних перегородок, наличие систем хранения, кухня - столовая, спальное место и зона отдыха. . . При создании этого интерьера мы вдохновлялись японским жильем, которое как правило малогабаритно, что обусловлено высокой плотностью населения в больших городах. Как правило, мебель в таких квартирах многофункциональна и лаконична, визуально она не нагружает пространство, а деликатно интегрируется в него. Символом квартиры стал добрый лесной дух Тоторо, персонаж аниме Хаяо Миядзаки. . . В качестве решения поставленных задач мы предложили следующие решения - выкатные тумбы, встроенные в подиум - кровать, барная стойка в качестве рабочей поверхности и места для быстрого завтрака, а так же накладной модуль на стойку для организации обеденной зоны для двух человек. Рабочий стол сделали раскладной, в открытом виде рабочая поверхность имеет размеры 1000х800 мм, в закрытом виде столешница закрывает низ стола с фурнитурой. Такое решение позволяет экономить место в малогабаритной квартире. В роли дивана выступают бескаркасные кресла. В случае необходимости они убираются на лоджию или просто складываются в угол. . . На лоджии установлено безрамное остекление Lumon. С одной стороны, это здорово, потому что рама из профиля не разделяет общий объем окна, и сначала может показаться, что остекление вообще отсутствует, но с другой стороны, лоджию невозможно присоединить к объему квартиры, потому что не утеплить. Мы организовали на ней летнюю зону отдыха с пуфами и подвесным креслом - коконом. В теплое время года можно любоваться замечательным видом на Обводный канал.
14 фотографий














