«Green Green Mountain »
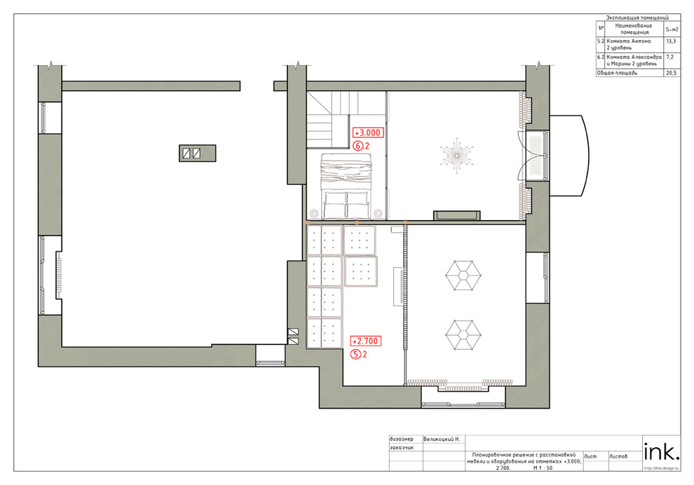
месторасположение: Россия, Москва, ул. Баррикадная . функция: квартира . площадь: 112 кв.м . заказчик: частное лицо . дата: лето 2016 . . Квартира, с которой я работал, находится на последнем (шестом) этаже дома, построенного в конце девяностых годов. Одна часть квартиры имеет ровный потолок (высота от пола до перекрытия 3,2м), в другой части квартиры наклонный потолок (в нижней точке высота от пола до перекрытия 3,3м, в верхней точке - 5,7м). Таким образом, имелась возможность использовать второй уровень для организации пространства. . В квартире будет проживать семья из трех человек - Александр и Марина, а так же их сын Антон. Планировочное решение, разработанное нами, включает в себя три основных помещения - гостиную, совмещенную с кухней - столовой, комнату родителей, комнату сына, а так же три вспомогательных помещения - санузел, гардеробную и прихожую. . Главным декоративным элементом гостиной - кухни является встроенное в стеллаж панно из стабилизированного мха ягеля, который не требует полива, специального освещения и специализированного ухода. . В жилых комнатах были запроектированы антресоли - в комнате Антона это пространство для общения с друзьями, в комнате родителей - спальное место. Так как Антон является студентом второго курса и по совместительству музыкантом, в его комнате предусмотрено рабочее место, стеллаж для книг и прочих предметов, а так же встроенная в шкаф кровать, которая в сложенном состоянии превращается в диван. Для того, чтобы гости могли расположится с комфортом как на первом, так и на втором уровне будут использоваться подушки и пуфы для сидения на полу. . Комната Александра и Марины поделена на две части - при входе это гардеробная с лестницей (в нее так же встроены системы хранения) которая ведет на второй уровень, где находится спальное место. За раздвижной перегородкой расположена вторая часть комнаты, которая служит зоной отдыха с большим диваном и биокамином.
34 фотографии



































