Проект "Р125"
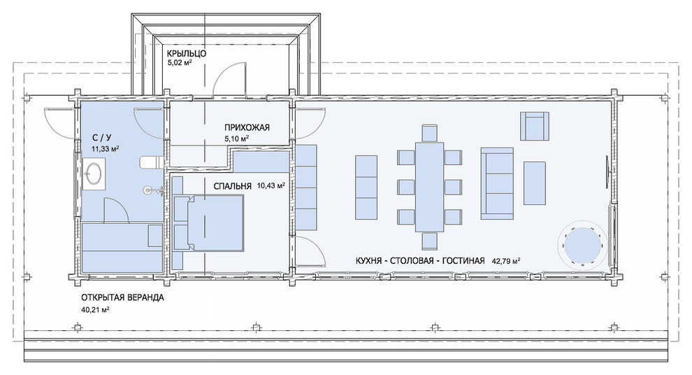
Дом в современном стиле, сохраняющий в себе простоту классики. Все самое необходимое, заключенное в брусовые стены с панорамными окнами, - отличный вариант для гостевого варианта дома или для проживания вдвоем.
Год реализации: 2018
2 фотографии



