Проект "Фердинанд"
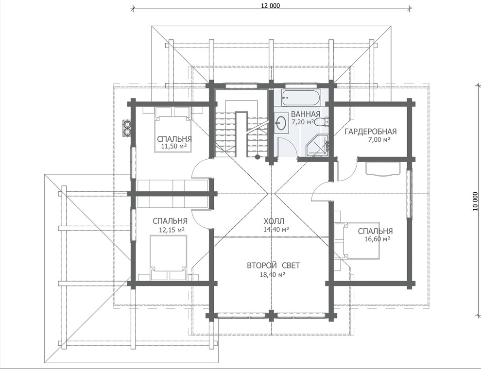
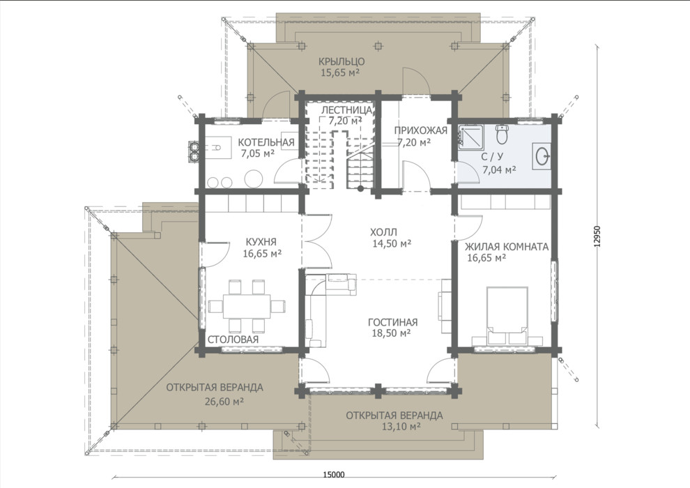
Красивый проект из клееного бруса в классическом стиле. Смотрится выигрышно за счет больших окон. В доме много спален - хватит на всех - и вообще много пространства для всех необходимых дел, и постоянного проживания.
Год реализации: 2015
Стоимость проектирования: 5 250 000 ₽
4 фотографии





