
Проектирование и строительство
4.86
·
7 отзывов
Проект "Фердинанд"
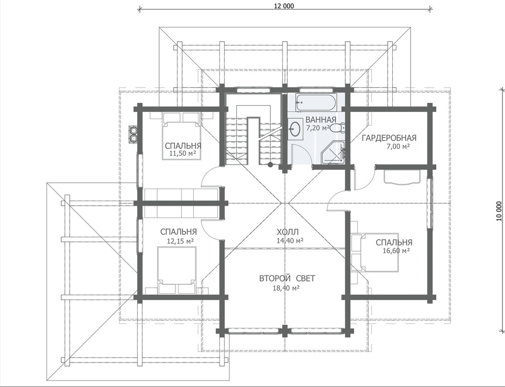
План 2го этажа
Другие фотографии в проекте
Вопросы к фото 0
Задайте вопрос
Вам ответят эксперты. Пришлем уведомление, когда вам ответят

Проектирование и строительство
4.86
·
7 отзывов
План 2го этажа
Другие фотографии в проекте
Вам ответят эксперты. Пришлем уведомление, когда вам ответят