logo

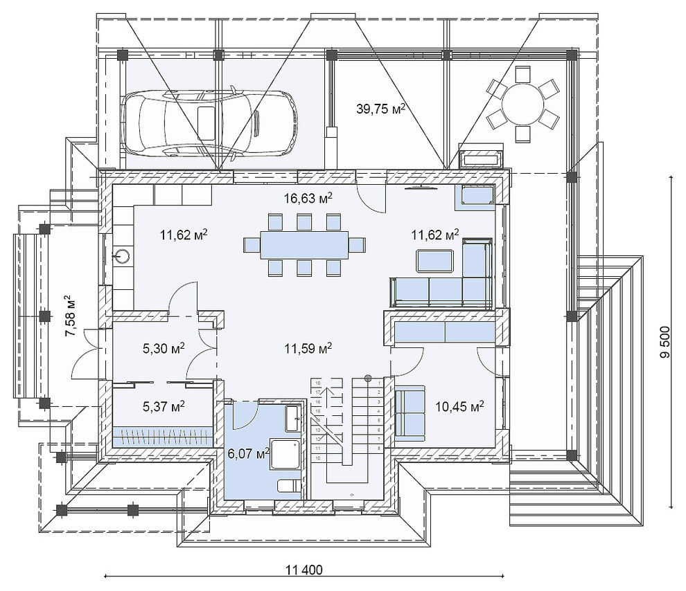
Проект "Пассат"

Комбинированный дом из керамических блоков и клееного бруса. . Планировки включают гараж.

Год реализации: 2019
photo

4 фотографии

Проект "Пассат"
Проект "Пассат"
Проект "Пассат"
Проект "Пассат"
Проект "Пассат"
Проект "Пассат"
Проект "Пассат"
Проект "Пассат"
Фоновое изображение профиля Radislav Parfishin
Фото профиля Radislav Parfishin

Radislav Parfishin

Проектирование и строительство