logo
Проект "Р125"

Другие фотографии в проекте Проект "Р125"

Проект "Р125"

Вопросы к фото 0

Задайте вопрос

Вам ответят эксперты. Пришлем уведомление, когда вам ответят

Переходный, большиеокна, деревянныйдом, домизбруса, домизклееногобруса, жилойдом, компактныйдом, одноэтажныйдом, современныйдом

Radislav Parfishin

Radislav Parfishin

Проектирование и строительство

Смотреть профиль

7

отзывов

4.86

Рейтинг

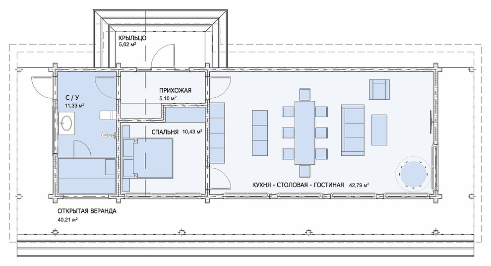
Проект "Р125"

План 1го этажа

Вопросы к фото 0