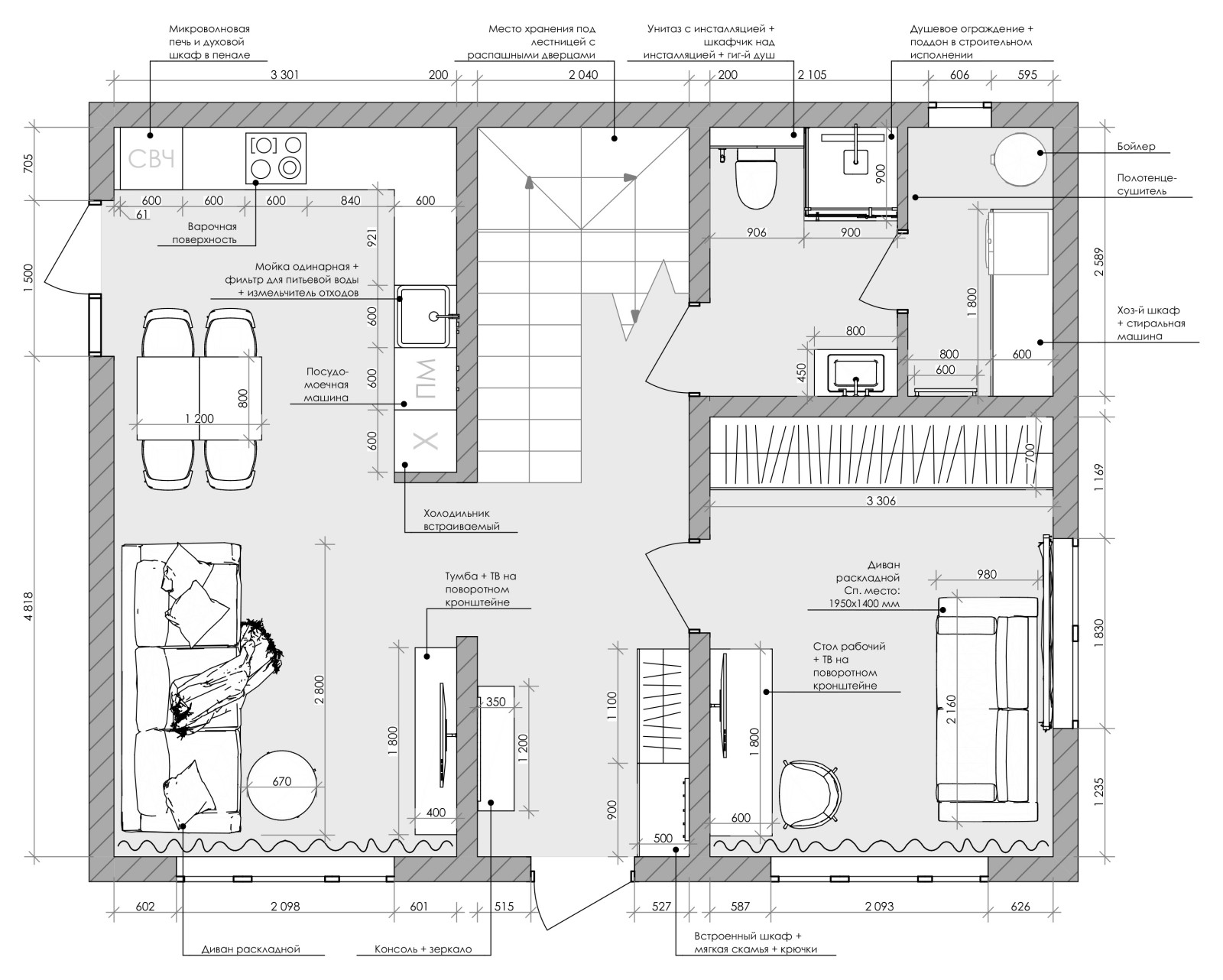
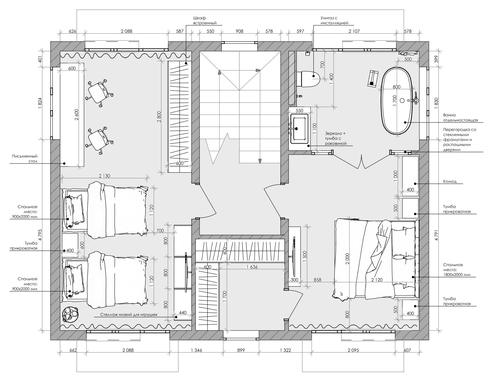
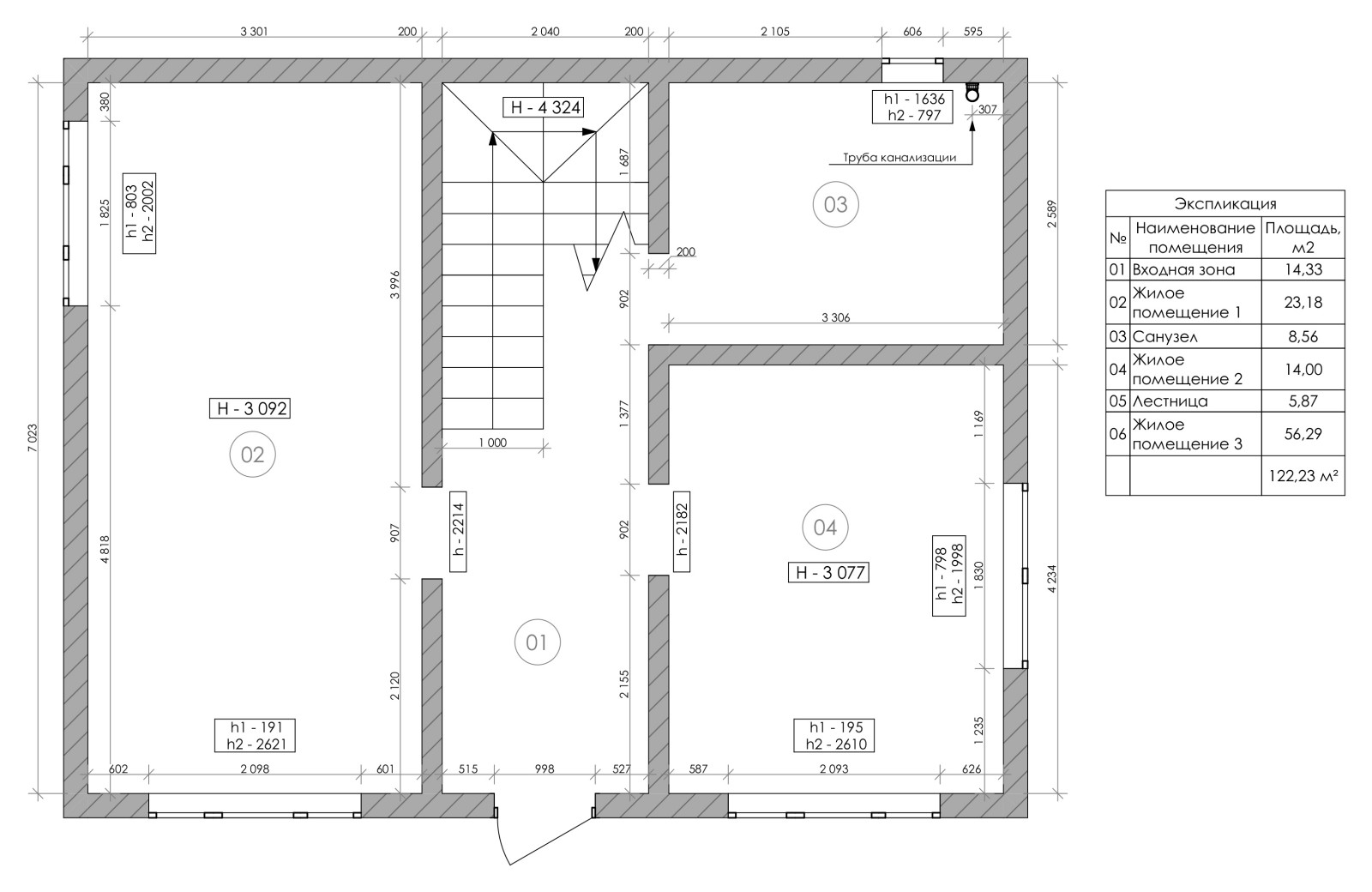
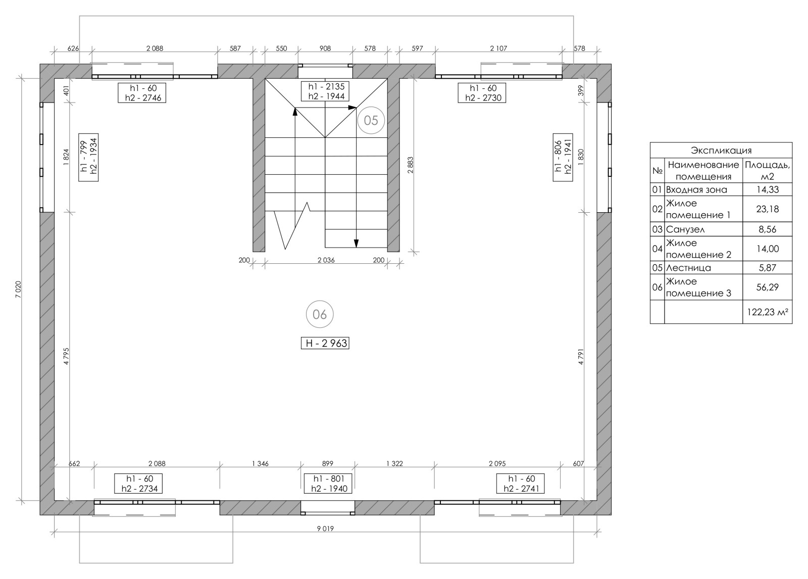
Проект двухэтажного дома 122 кв.м
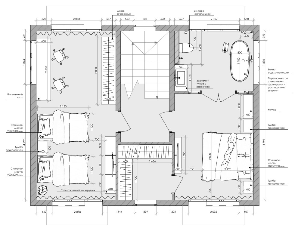
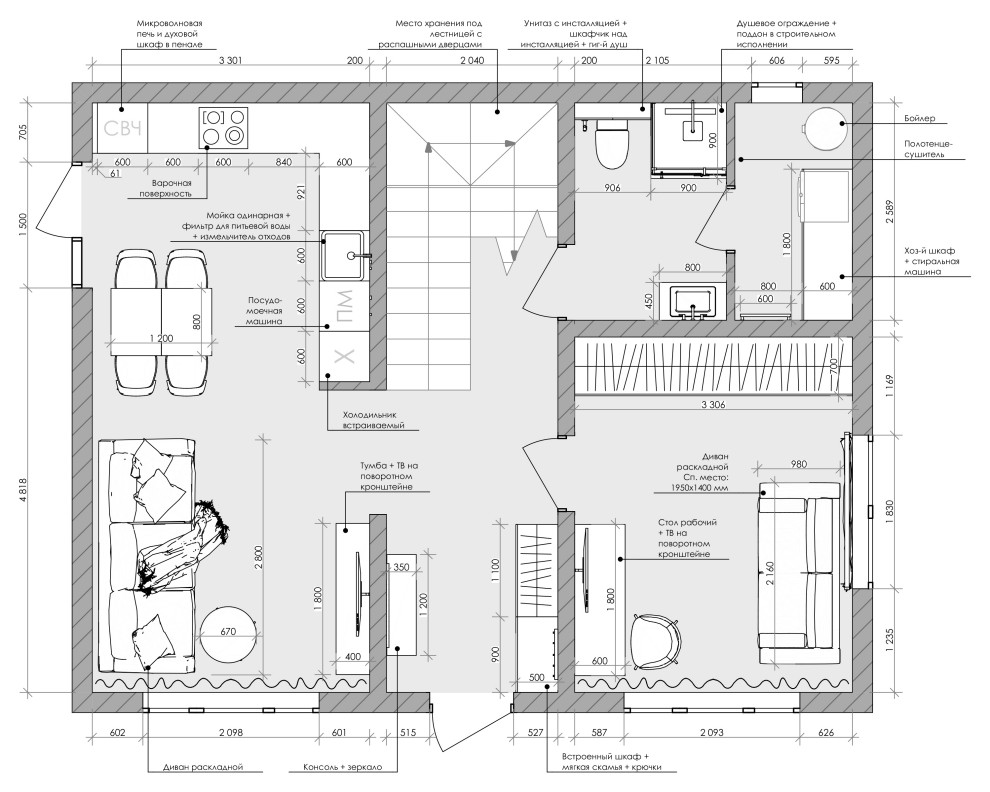
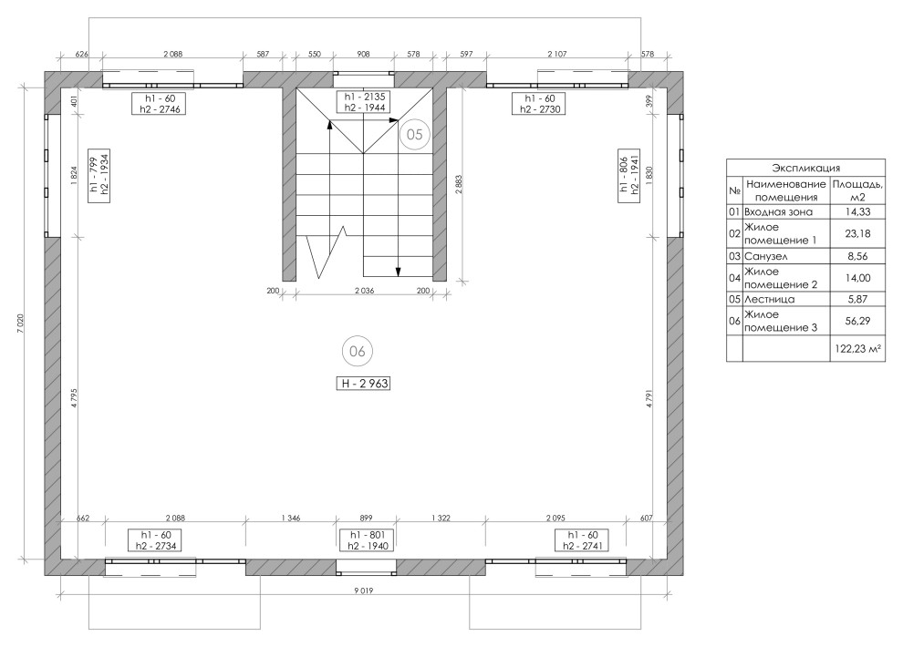
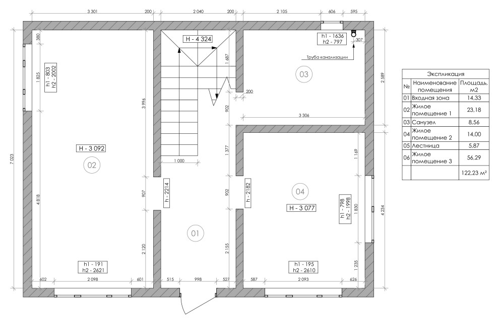
Дизайн-проект двухэтажного частного дома 122 кв.м. в Сочи для семьи с двумя детьми. Заказчики изначально приобрели готовый дом, но без отделки внутри. Поэтому из уже готовой планировки мы выжали, что могли. По стилистике - хозяйка дома очень хотела видеть мягкий интерьер в светлых оттенках, что мы и реализовали в итоге.
Год реализации: 2022
г. Сочи
8 фотографий









