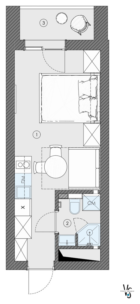
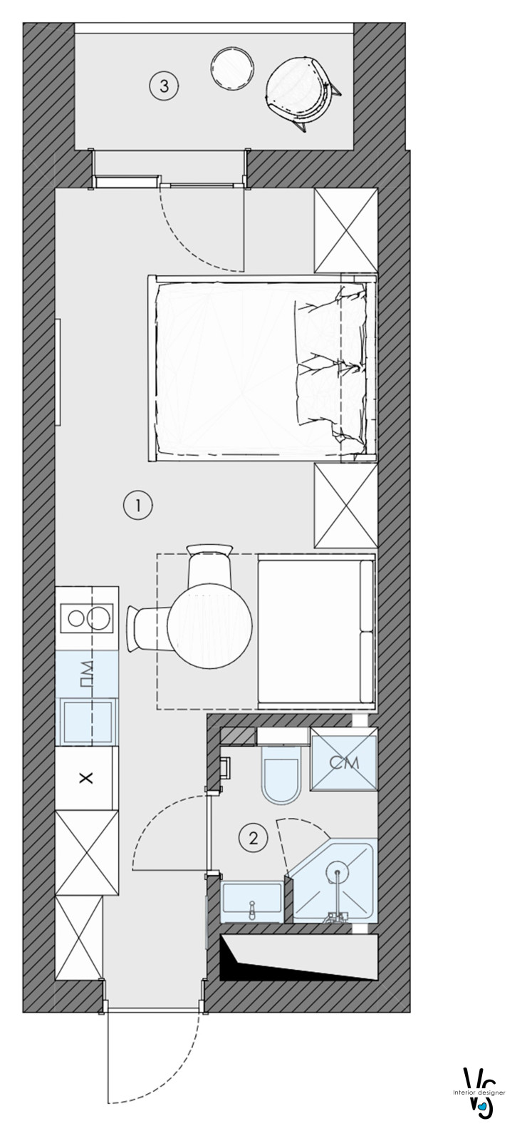
Проект студии 24 кв.м.
Небольшая студия 24 кв.м. для семейного отдыха в Сочи. Максимально функциональная для такой площади планировка в сочетании с приятной цветовой гаммой и грамотно подобранными отделочными материалами гарантируют отличный отдых на побережье.
Год реализации: 2024
Стоимость проектирования: 135 000 ₽
г. Сочи
15 фотографий
















