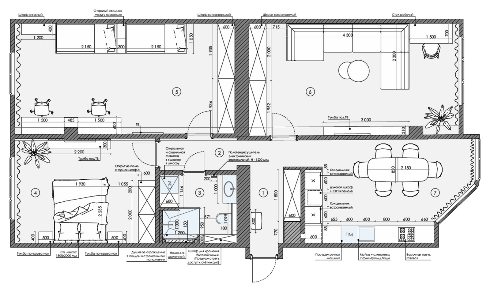
Проект трёхкомнатной квартиры 112 кв.м.
Дизайн-проект трёхкомнатной квартиры 112 кв.м. в Сочи для семьи с двумя детьми-подростками. . .
Год реализации: 2024
7 фотографий
Дизайн-проект трёхкомнатной квартиры 112 кв.м. в Сочи для семьи с двумя детьми-подростками. . .
7 фотографий
