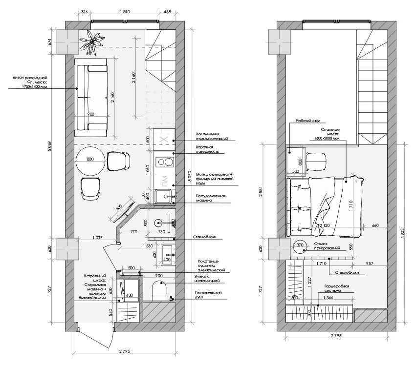
Проект двухуровневых апартаментов 36 кв.м
Двухуровневые апартаменты 36 кв.м в Сочи под сдачу в посуточную аренду. . . Яркий дизайн гарантированно привлечёт внимание отдыхающих в курортном городе, поэтому дизайн-проект для инвестиционной квартиры - лучшее вложение средств до начала ремонта.
Год реализации: 2023
г. Сочи
4 фотографии





