Другие фотографии в проекте Проект двухуровневых апартаментов 36 кв.м
Вам ответят эксперты. Пришлем уведомление, когда вам ответят
Сочи, дизайнинтерьера, дизайнпроект, инвестиционныйдизайн
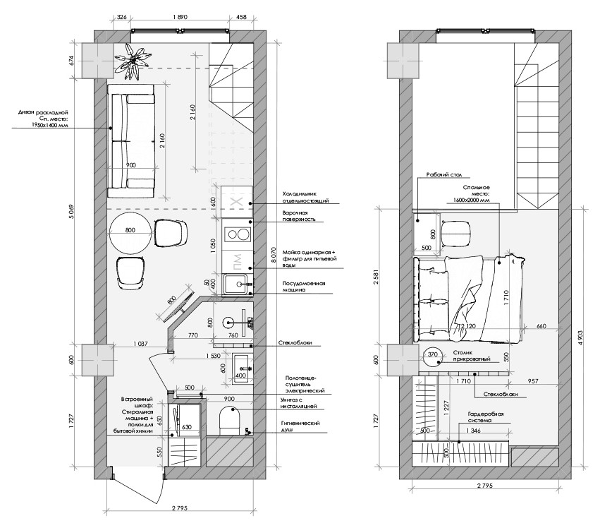
Двухуровневые апартаменты 36 кв.м в Сочи под сдачу в посуточную аренду. . . Яркий дизайн гарантированно привлечёт внимание отдыхающих в курортном городе, поэтому дизайн-проект для инвестиционной квартиры - лучшее вложение средств до начала ремонта.