
Дизайнеры интерьера
5
·
10 отзывов
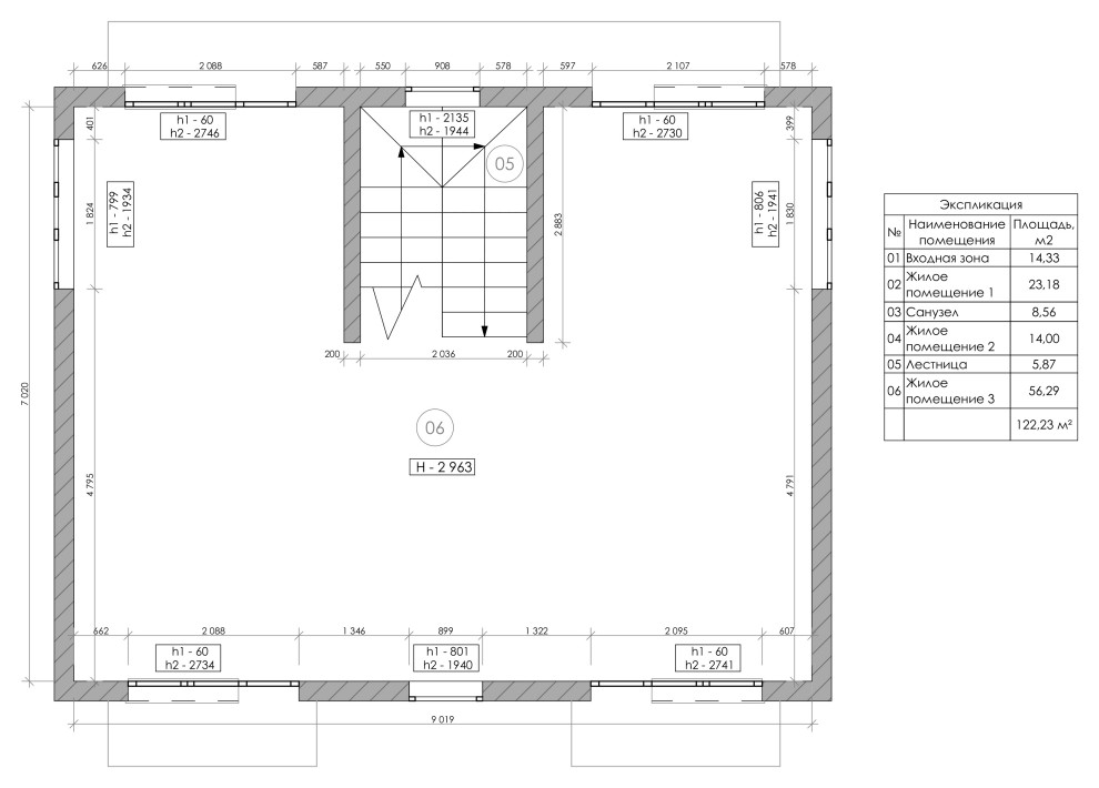
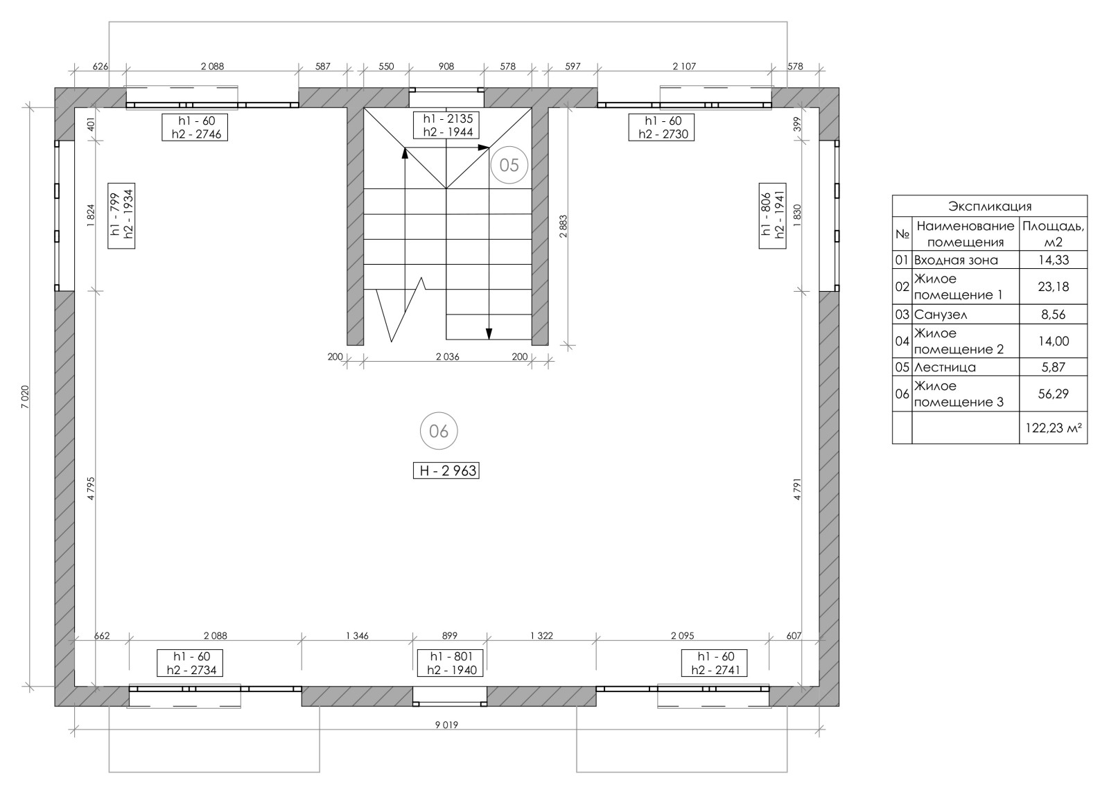
Проект двухэтажного дома 122 кв.м
Дизайн-проект двухэтажного частного дома 122 кв.м. в Сочи для семьи с двумя детьми. Заказчики изначально приобрели готовый дом, но без отделки внутри. Поэтому из уже готовой планировки мы выжали, что могли. По стилистике - хозяйка дома очень хотела видеть мягкий интерьер в светлых оттенках, что мы и реализовали в итоге.
Другие фотографии в проекте
Вопросы к фото 0
Задайте вопрос
Вам ответят эксперты. Пришлем уведомление, когда вам ответят




