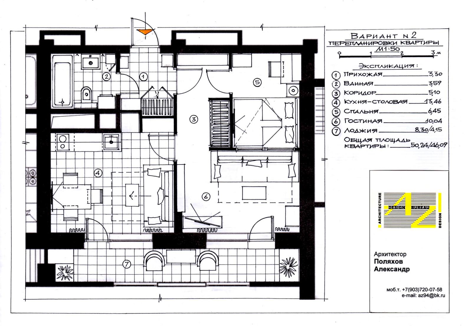
Профиль пользователяПерепланировка однушки в евродвушкуГод реализации: 2019г. Москва4 фотографииПоделитьсяСохранитьПерепланировка однушки в евродвушкуПоделитьсяСохранитьПерепланировка однушки в евродвушкуПоделитьсяСохранитьПерепланировка однушки в евродвушкуПоделитьсяСохранитьПерепланировка однушки в евродвушкуПоделитьсяСохранить