logo
Войти
Профиль пользователя

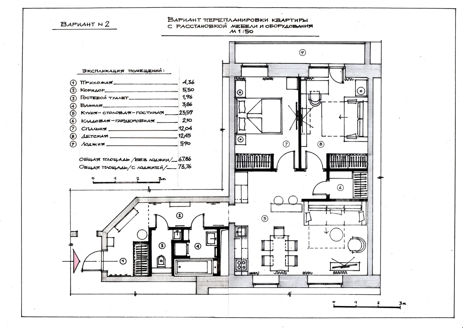
Перепланировка двушки в Тюмени в евротрешку

Год реализации: 2019
photo

2 фотографии

Перепланировка двушки в Тюмени в евротрешку
Перепланировка двушки в Тюмени в евротрешку
Перепланировка двушки в Тюмени в евротрешку
Перепланировка двушки в Тюмени в евротрешку
Фоновое изображение профиля Поляхов Александр
Фото профиля Поляхов Александр

Поляхов АлександрПоляхов Александр

4.91

23 отзыва

Архитекторы

Контакты

г. Москва, Б. Академическая, д.73

Все проекты

Детская комната для двух девочек

Студия, 26,1 кв.м

Евротрешка с проходной кухней-нишей

Эскизы планировки студии, 27 кв.м

Перепланировка двухкомнатной квартиры в Киеве в евротрешку

Перепланировка трехкомнатной квартиры с расстановкой мебели и оборудования

Перепланировка двушки в евротрешку

Смотреть все
Флатика
О насМы в прессеFAQКонтактыМатериалыКарта сайта

«Флатика» в соцсетях:

ПинтерестМаксВкДзенTelegramTelegram Pro
Pro
Instagram

Продукт компании Meta, признанной экстремистской организацией, деятельность которой запрещена в РФ

Пользовательское соглашениеПолитика в отношении обработки персональных данных

© 2026 Flatica

ФотоЭкспертыСтатьи