Кухни
Ванные комнаты
Туалеты
Спальни
Гостиные
Семейные комнаты
Столовые
Домашние кинотеатры
Экстерьеры
Балконы и лоджии
Террасы
Застекленные террасы
Сады
Дворы
Веранды
Бассейны
Детские комнаты
Комнаты для малышей
Кабинеты
Гардеробные
Дома
Фасады домов
Прихожие
Коридоры
Лестницы
Подвалы
Гаражи
Хозпостройки
Домашние тренажерные залы
Прачечные
Винные погреба
Домашние бары
Отели
Рестораны
Офисы
Бани

Дом для художников
Евгения Княжева

Эскизный проект Здания районного суда
Проектом предусмотрено возмедение двухэтажного зданий районного суда. . Фундаменты - ленточные на естественном основании, блоки ФБС по монолитной . ленте. . Несущие внутренние и наружные стены - многослойная кладка из полнотелого . кирпича с эффективным утеплителем минеральной ватой, наружная отделка - . облицовочный кирпич и оштукатуривание по сетке. . Перекрытия - сборные ж.б. многопустотные плиты. . Перемычки - сборные ж.б. . Лестницы - сборные ж.б. площадки и марши. . Кровля - совмещенная утепленная с покрытием полимерной мембраной.
Архитектурное бюро "Движение"

Дом ветеринара
Наталия Фёдорова

Проект дома с тренажерным залом и бассейном
Архитектурное бюро «Империя Стиля»

Проект дома с патио
Архитектурное бюро «Империя Стиля»

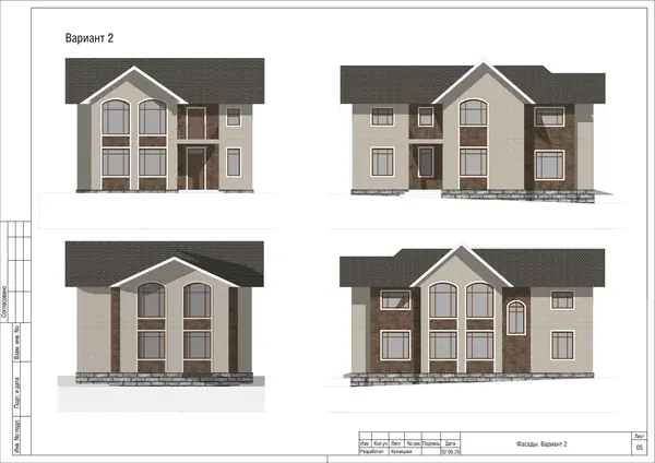
Разработка фасадов для жилого дома
Проектом предусмотрена разработка нескольких вариантов фасадных решений для жилого дома.
Архитектурное бюро "Движение"

Индивидуальный жилой дом в г. Пермь 2017
Проект индивидуального жилого дома с особыми пожеланиями. . Дом двухэтажный в стиле Барн хаус.
Архитектурное бюро "Движение"

Проект дома с патио
Архитектурное бюро «Империя Стиля»

Разработка фасадов для жилого дома
Проектом предусмотрена разработка нескольких вариантов фасадных решений для жилого дома.
Архитектурное бюро "Движение"

Проект одноэтажного дома
Основная проблема в планировке одноэтажников - коридоры. Коридор – пространство не самое красивое, да и зачем расходовать площадь. В планировке этого дома площади коридоров минимизированы, зато есть большое пространство кухни – столовой – гостиной, большие санузлы и, что очень важно для дома, достаточно подсобных помещений. Главная фишка – высокое двусветное пространство основных помещений, выходящее на участок через большой витраж.
Вадим Богданов

Эскизный проект коттеджа в Красницах, Лен. область
Кузнецова Мария

Еще больше схем в нашем каталоге
Мы создаем готовые схемы композиций для ваших садов! В каталоге есть фильтр. с помощью которого можно выбрать композицию на свой вкус. Все схемы продаются!
Наталья Каменева

Проект дома с тренажерным залом и бассейном
Архитектурное бюро «Империя Стиля»

Эскизный проект коттеджа в Красницах, Лен. область
Кузнецова Мария

Проект барнхауса Ван Гог
Этот проект дома в стиле барнхаус отличается предельно комфортабельной планировкой и большой площадью. Здесь вы можете найти сразу 5 спален и 3 полноценные ванные комнаты. Общая площадь дома составляет более 150 м². . . Современный подход к дизайну фасадов позволяет назвать этот наш проект максимально современным и европейским. Мы комбинируем отделку, подчеркиваем экстерьер террасами и балконом, выбираем в пользу расширенного формата остекления. . . На первом этаже расположилась просторная и очень солнечная кухня-гостиная, две спальни с ванной комнатой, прихожая с гардеробом и техническое помещение. Предусмотрена огромная угловая терраса и балкон. . . На втором этаже вы найдете главный мастер-сьют: спальню для супругов с гардеробной и собственной ванной комнатой. Еще две спальни здесь делят одну ванную комнату. . . «Ван Гог» хорош и тем, что на его фронтальном фасаде со стороны улицы нет окон, поэтому ваша жизнь даже с панорамным остеклением будет максимально приватной. . . Строительство: «под отделку» (90 дней) 4 905 000 ₽, «под ключ» (120 дней) 7 610 000 ₽. . . artbarn.ru/vangog
ARTBARN: строительство барнхаусов в России

Проект дома с тренажерным залом и бассейном
Архитектурное бюро «Империя Стиля»

Еще больше схем в нашем каталоге
Мы создаем готовые схемы композиций для ваших садов! В каталоге есть фильтр. с помощью которого можно выбрать композицию на свой вкус. Все схемы продаются!
Наталья Каменева

Еще больше схем в нашем каталоге
Мы создаем готовые схемы композиций для ваших садов! В каталоге есть фильтр. с помощью которого можно выбрать композицию на свой вкус. Все схемы продаются!
Наталья Каменева

Проект ГБ-150 (Мартин)
Название проекта — «Мартин». . Проектная организация — ООО СК «Родас». . Площадь террасы: 23 кв.м., площадь балкона: 22 кв.м. . .
СК РОДАС

Индивидуальный жилой дом в г. Пермь 2016
Проект индивидуального жилого дома с облицовкой клинкерным кирпичом.
Архитектурное бюро "Движение"

Villa Doclea
Vladimir-Henrik Lamfadel

Загородный дом в подмосковье - фасад
Разработка фасада двухэтажного дома с цокольным этажом и пристройкой с стиле французского шато. Крыша скатная, покрыта жестью, французские окна с декоративными "балкончиками" и мансардными окнами. Со стороны сада балюстрады и лестницы. Фасад отделан песчаником и декоративными элементами Архикамень. Дом стоит на рельефе с уклоном.
Маша Хусеинова

Индивидуальный жилой дом в г. Пермь 2016
Проект индивидуального жилого дома с облицовкой клинкерным кирпичом.
Архитектурное бюро "Движение"

Индивидуальный жилой дом в г. Пермь 2016
Проект индивидуального жилого дома с облицовкой клинкерным кирпичом.
Архитектурное бюро "Движение"

Проект дома с тренажерным залом и бассейном
Архитектурное бюро «Империя Стиля»

Проект дома с тренажерным залом и бассейном
Архитектурное бюро «Империя Стиля»

Еще больше схем в нашем каталоге
Мы создаем готовые схемы композиций для ваших садов! В каталоге есть фильтр. с помощью которого можно выбрать композицию на свой вкус. Все схемы продаются!
Наталья Каменева

Проект ландшафтной композиции на заказ
Мы часто выполняем проект небольшой композиции. При этом используем реальное фото для визуализации.
Наталья Каменева

Проект ландшафтной композиции на заказ
Мы часто выполняем проект небольшой композиции. При этом используем реальное фото для визуализации.
Наталья Каменева

Эскизный проект коттеджа в Красницах, Лен. область
Кузнецова Мария

Проект дома с патио
Архитектурное бюро «Империя Стиля»

Проект дома с патио
Архитектурное бюро «Империя Стиля»

Проект дома с тренажерным залом и бассейном
Архитектурное бюро «Империя Стиля»

Индивидуальный жилой дом в г. Пермь 2016
Проект индивидуального жилого дома с облицовкой клинкерным кирпичом.
Архитектурное бюро "Движение"

Еще больше схем в нашем каталоге
Мы создаем готовые схемы композиций для ваших садов! В каталоге есть фильтр. с помощью которого можно выбрать композицию на свой вкус. Все схемы продаются!
Наталья Каменева

Еще больше схем в нашем каталоге
Мы создаем готовые схемы композиций для ваших садов! В каталоге есть фильтр. с помощью которого можно выбрать композицию на свой вкус. Все схемы продаются!
Наталья Каменева

Проект ландшафтной композиции на заказ
Мы часто выполняем проект небольшой композиции. При этом используем реальное фото для визуализации.
Наталья Каменева

Проект ГБ-150 (Мартин)
Название проекта — «Мартин». . Проектная организация — ООО СК «Родас». . Площадь террасы: 23 кв.м., площадь балкона: 22 кв.м. . .
СК РОДАС

Разработка фасадов для жилого дома
Проектом предусмотрена разработка нескольких вариантов фасадных решений для жилого дома.
Архитектурное бюро "Движение"

Проект ландшафтной композиции на заказ
Мы часто выполняем проект небольшой композиции. При этом используем реальное фото для визуализации.
Наталья Каменева

Проект ландшафтной композиции на заказ
Мы часто выполняем проект небольшой композиции. При этом используем реальное фото для визуализации.
Наталья Каменева

Проект ГБ-150 (Мартин)
Название проекта — «Мартин». . Проектная организация — ООО СК «Родас». . Площадь террасы: 23 кв.м., площадь балкона: 22 кв.м. . .
СК РОДАС

Проект дома с патио
Архитектурное бюро «Империя Стиля»

Проект дома с тренажерным залом и бассейном
Архитектурное бюро «Империя Стиля»

Проект дома с патио
Архитектурное бюро «Империя Стиля»

Проект ГБ-150 (Мартин)
Название проекта — «Мартин». . Проектная организация — ООО СК «Родас». . Площадь террасы: 23 кв.м., площадь балкона: 22 кв.м. . .
СК РОДАС

Дом для художников
Евгения Княжева

Проект ландшафтной композиции на заказ
Мы часто выполняем проект небольшой композиции. При этом используем реальное фото для визуализации.
Наталья Каменева

Дом из клееного бруса "Озерна"
Двухэтажный дом из клееного бруса с бассейном. . Общая площадь 580 м. . Особенности планировки: крытый бассейн, большая гостиная с камином и вторым светом, сауна, 5 спален, просторная терраса. .
Евгений Орлов

Дом для художников
Евгения Княжева