
Архитекторы
0
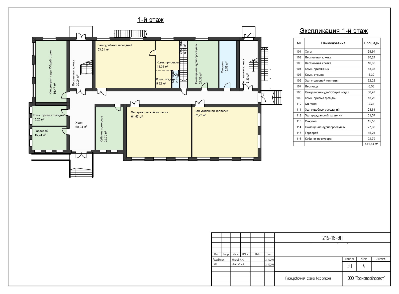
Эскизный проект Здания районного суда
Проектом предусмотрено возмедение двухэтажного зданий районного суда. . Фундаменты - ленточные на естественном основании, блоки ФБС по монолитной . ленте. . Несущие внутренние и наружные стены - многослойная кладка из полнотелого . кирпича с эффективным утеплителем минеральной ватой, наружная отделка - . облицовочный кирпич и оштукатуривание по сетке. . Перекрытия - сборные ж.б. многопустотные плиты. . Перемычки - сборные ж.б. . Лестницы - сборные ж.б. площадки и марши. . Кровля - совмещенная утепленная с покрытием полимерной мембраной.
Другие фотографии в проекте
Вопросы к фото 0
Задайте вопрос
Вам ответят эксперты. Пришлем уведомление, когда вам ответят
Похожие фотографии

Проект средиземноморского дома в Крыму
Павел Кошарный

Дом Oἶκος в Раздолье
Андрей Карапетян
Эскизный проект: Современный загородный дом в лесу + Интерьер
Михаил Конев
Усадьба в Златоусте
Ольга Вавилова
Victoria Park, Fort Lauderdale, FL, USA
Проект выполнен для застройщика, как готовая подача дома на продажу: Разработка интерьерного решения для кухни, гостиной и всех санузлов, включая мастер; Подбор отделки, керамогранита и освещения; Дополнительно проработан внешний облик дома и варианты фасадов, чтобы усилить ценность объекта на рынке.
Лена Воронцова

Уютный дом в средиземноморском стиле на Черном море
Задача стояла спроектировать дом на очень крутом склоне, перепад составил более 12 метров. Нам надо было не только удобно разместить дом и решить планировочные задачи, но и организовать места отдыха, беседку и бассейн. Мы организовали рельеф террасами и постарались избежать высоких подпорных стен. Получилось уютно и атмосферно и, что немаловажно, функционально.
Александра Штукатурова

Архитектурный проект фасада кафе
Андрей Панфутов

House boat
Наталия Ставратий

Загородный дом
Светлана Захарова

Проект 372 А «Дега»
СМОТРЕТЬ ВСЮ КОЛЛЕКЦИЮ: . http://www.alfaplan.ru/catalog/group_644/group_668/
Владимир Тарасов

Проект фасада для нотариуса
Стиль- классика.
Ирина Азаева

Проект фасада для нотариуса
Стиль- классика.
Ирина Азаева




