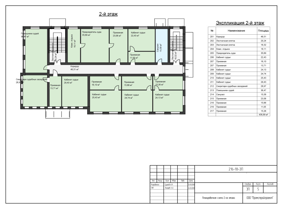
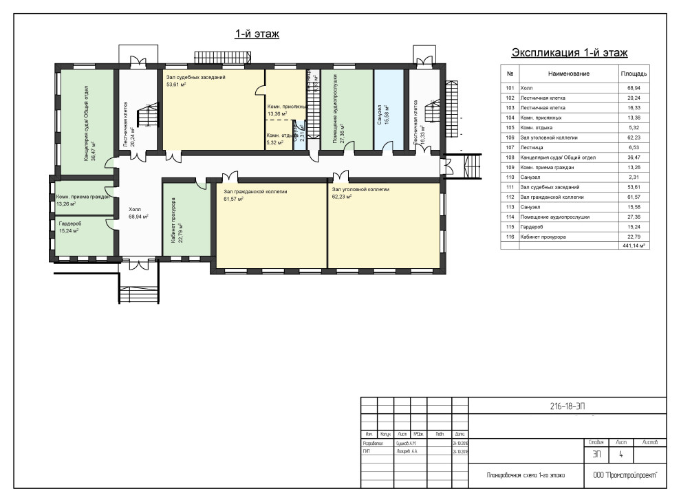
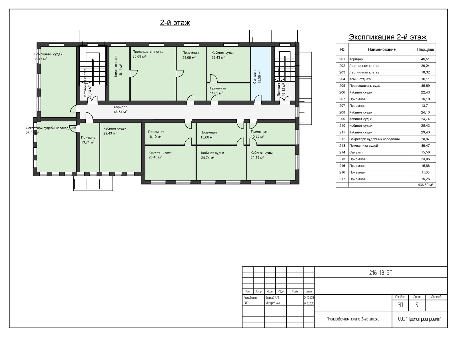
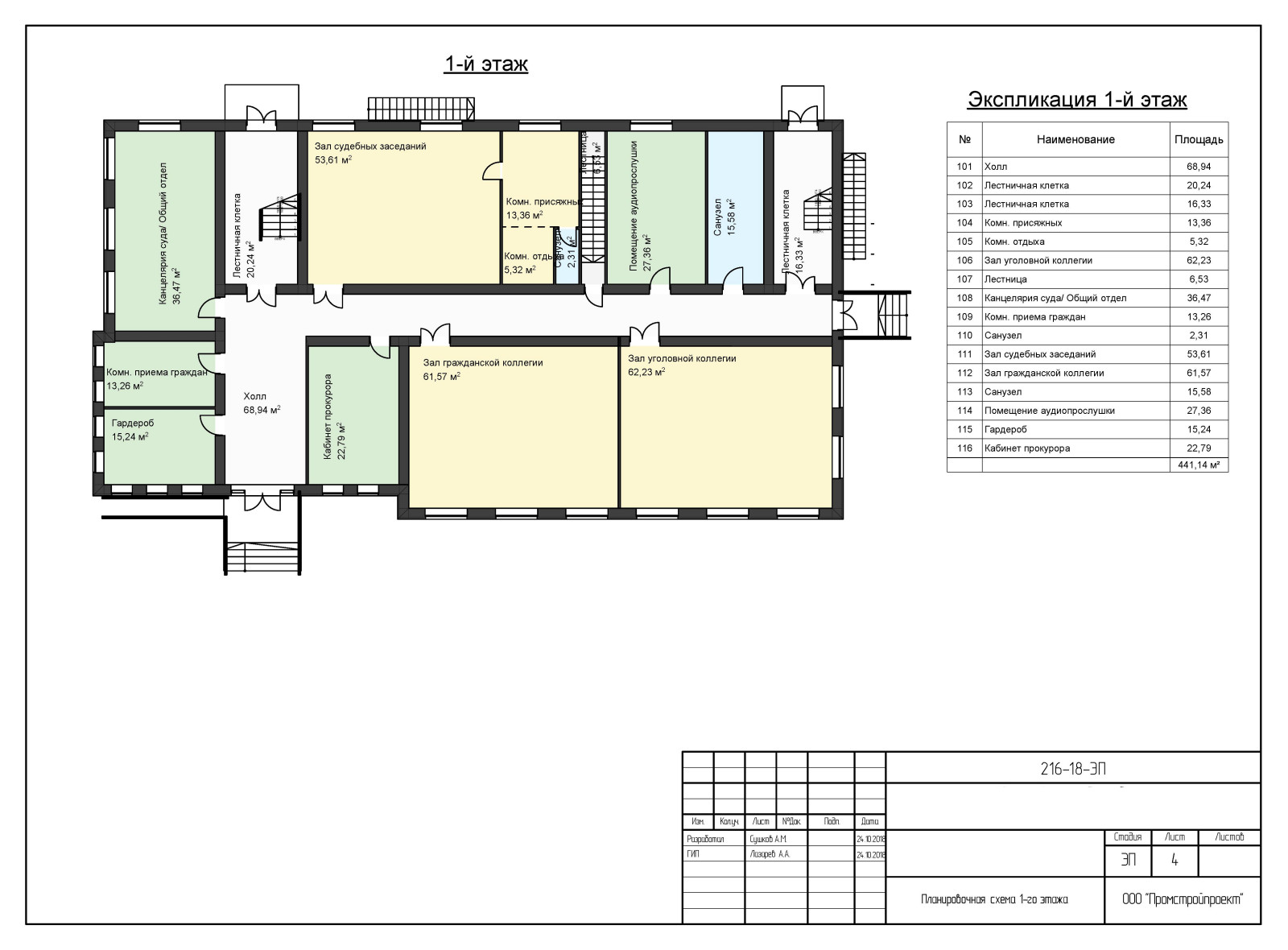
Эскизный проект Здания районного суда
Проектом предусмотрено возмедение двухэтажного зданий районного суда. . Фундаменты - ленточные на естественном основании, блоки ФБС по монолитной . ленте. . Несущие внутренние и наружные стены - многослойная кладка из полнотелого . кирпича с эффективным утеплителем минеральной ватой, наружная отделка - . облицовочный кирпич и оштукатуривание по сетке. . Перекрытия - сборные ж.б. многопустотные плиты. . Перемычки - сборные ж.б. . Лестницы - сборные ж.б. площадки и марши. . Кровля - совмещенная утепленная с покрытием полимерной мембраной.
Год реализации: 2018
Стоимость проектирования: 135 000 ₽
7 фотографий








