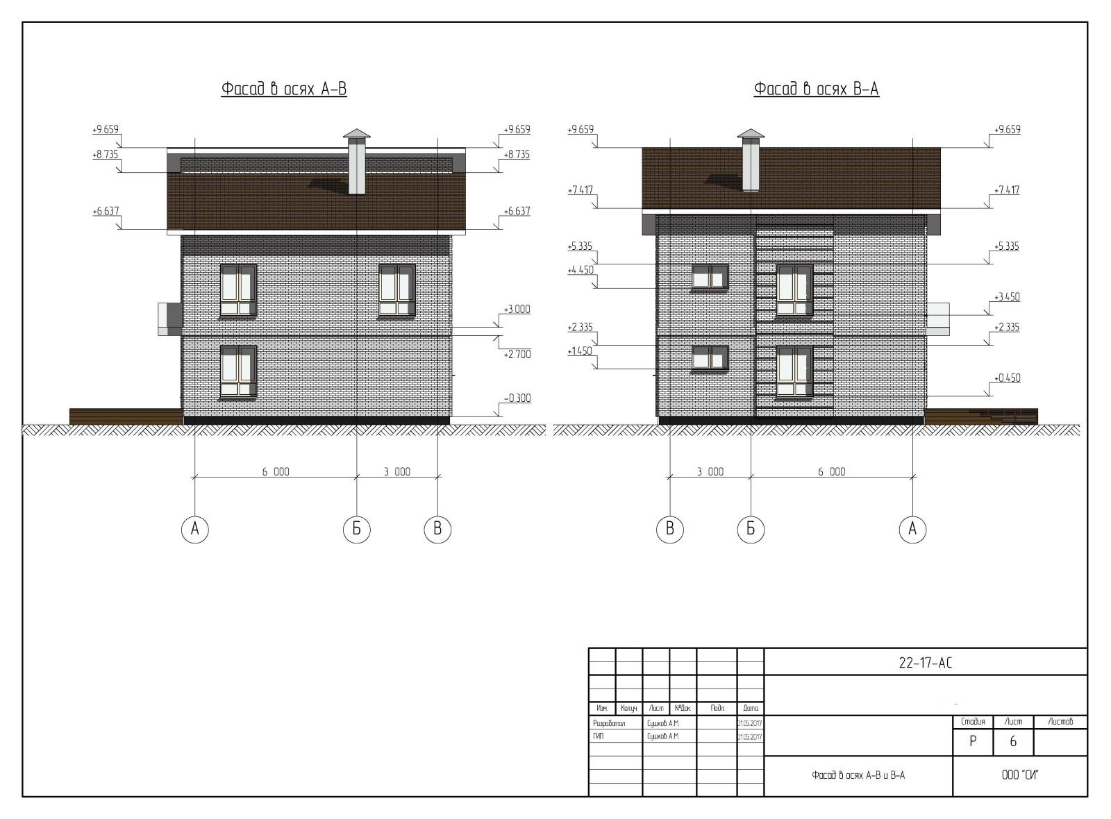
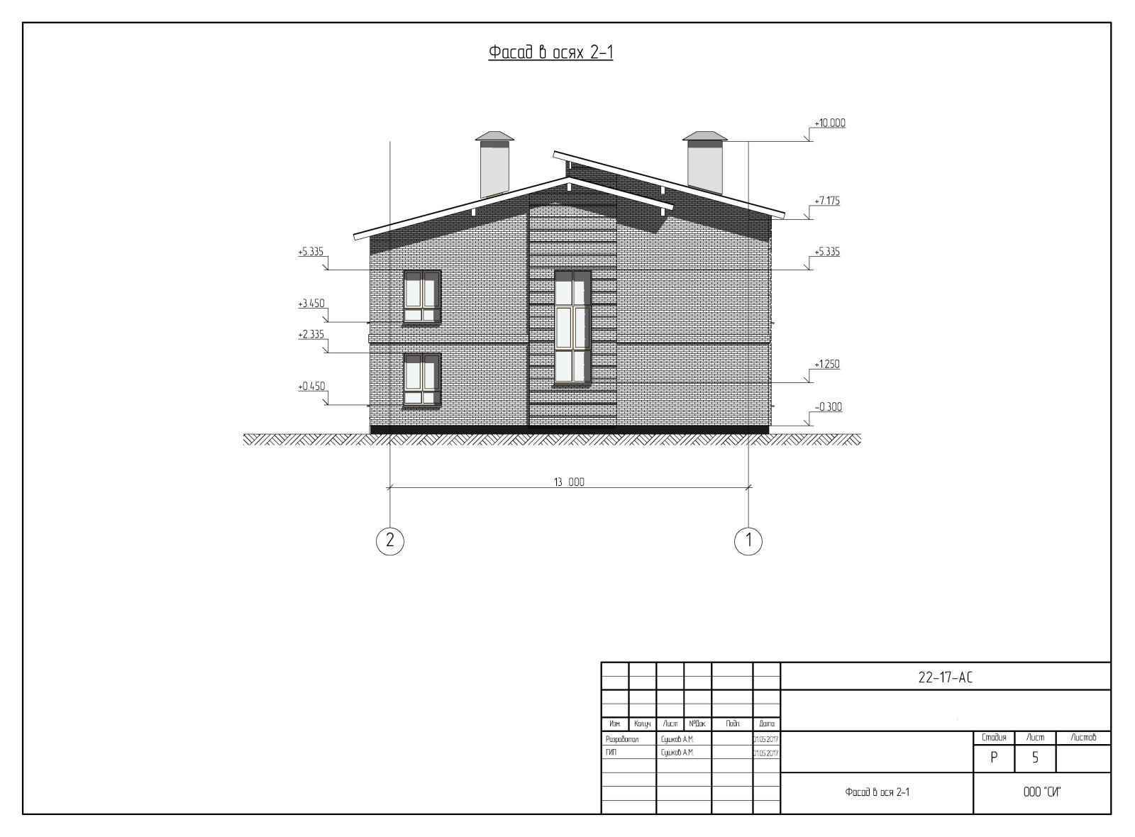
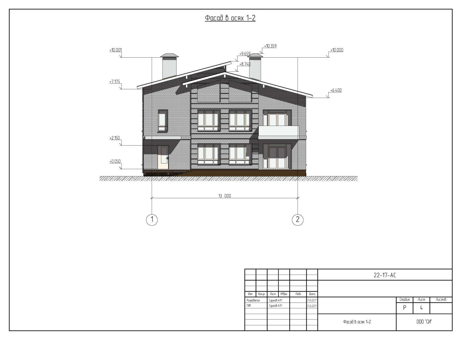
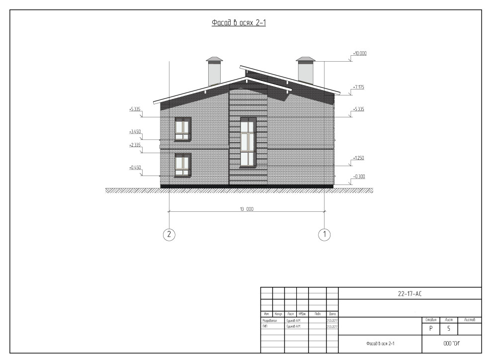
Индивидуальный жилой дом в Мотовилихе, г. Пермь
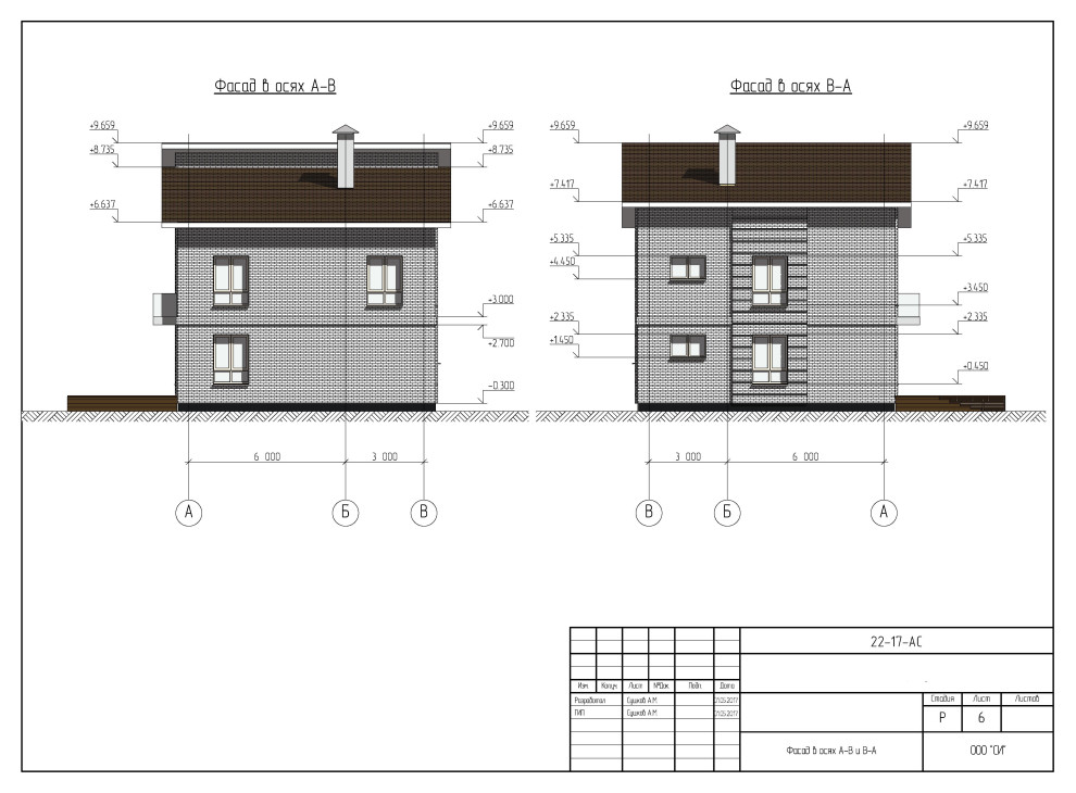
Проект индивидуального жилого дома. Общая площадь 220 кв .м . Дом двухэтажный с холодным чердаком. Финишная отделка облицовочным кирпичом. Фундамент ленточный с буронабивными сваями.
Год реализации: 2016
Стоимость проектирования: 34 999 ₽
г. Пермь, улица 9-я Линия
8 фотографий









