

Вадим Богданов
Архитекторы
Отзывы о: Вадим Богданов 3
5
3 отзыва
Вадим,благодарю за внесение корректировок и очень ценные комментарии по перепланировке!Учли все ваши замечания,в связи с чем нам удалось избежать многих ошибок.Спасибо!
13/Июнь/2020
Выражаем огромную благодарность за проект дизайнеру интерьеров Богданову Вадиму, за неоценимую помощь в ремонте нашей квартиры. . . К ремонту готовились долго и тщательно, т.к. хотелось предусмотреть все до мелочей, поэтому решение делать дизайн-проект квартиры было принято сразу. Вадим при первой встрече очень внимательно и заинтересованно расспрашивал о наших увлечениях, образе жизни, интересах и пожеланиях. После долгого и плодотворного обсуждения всех деталей, мы получили дизайн проект с визуализацией всех помещений нашей квартиры, а также подробную техническую часть, которая существенно сокращает количество вопросов со стороны ремонтной бригады. . . Учитывая все наши пожелания, Вадим сам спроектировал и подготовил все необходимые чертежи и спецификации для изготовления индивидуальной мебели во всей квартире. А также порекомендовал и компанию для воплощения наших творческих идей. . . Отдельная благодарность за помощь в подборе и приобретении отделочных материалов, а также предметов интерьера, за сопровождение по магазинам. . . Во время строительных работ он сам неоднократно приезжал и осуществлял авторский надзор, что позволило избежать многих проблем и ошибок. . . Итог, в ремонте очень много нюансов и деталей, которые надо просчитать заранее и без профессионального дизайнера тут не обойтись, если конечно нет желания все переделывать по несколько раз. . . . . Мы довольны результатом сотрудничества с Вадимом на все сто процентов, каждый уголок квартиры продуман до мелочей, все функционально, удобно и красиво. С большим удовольствием рекомендуем Вадима и желаем ему много новых и интересных проектов.
25/Март/2020
С Вадимом работаем очень давно по рекомендации наших родственников, которым он запроектировал частный дом. Мы же начинали с небольшого проекта по перепланировке спальни в нашем доме. Решение и реализация оказались настолько удачными, что решили постепенно переделать и другие комнаты. Последним проектом, над которым мы работали вместе, был проект бассейна. Результат получился отличным. Хочется отметить, что Вадим умеет работать с любыми пространствами и бюджетами, способен находить решения очень непростых задач, с которыми не раз приходилось сталкиваться в процессе стройки. Очень рекомендую его как профессионала. Если хочется получить качественный дизайн не только на картинке, но и в жизни, то смело обращайтесь к нему.
17/Март/2020
Об эксперте
Об опыте
Проектирую здания и сооружения различного назначения более 20 лет, в том числе загородные жилые дома, частные и общественные интерьеры.
Категории специализации
Архитекторы, Гардеробные и кладовые комнаты, Детские и пеленальные, Дизайнеры интерьера, Проектирование и строительство, Производство и установка кухонь
Ценовой сегмент: ₽₽₽
Услуги
Архитектурное проектирование
Архитектурные чертежи
Архитектурный дизайн
Визуализация интерьера
Дизайн ванной комнаты
Дизайн кухни
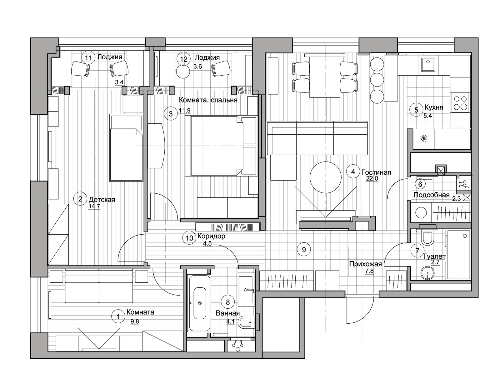
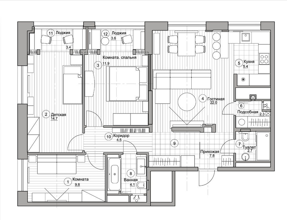
План дома
План этажа
Планировка пространства
Подготовка участка
Пристройки к дому
Проект дома на заказ
Проектирование конструкций
Экологичное зеленое строительство
Энергосберегающий дом
Альбомы идей 11









