logo

В гостях: Сталинка с разноцветной стеной и умными шкафами

Дизайнер Екатерина Савкина отремонтировала семейное жильё, изменив планировку и цветовую гамму

Евгения Назарова
Евгения Назарова

19 янв. 2021

Обновлено 14 февр. 2021

Постоянный автор Houzz, интерьерный журналист

Дизайнер Екатерина Савкина отремонтировала квартиру, в которой прожила много лет, чтобы впустить в жизнь перемены. Изменились не только палитра и стиль, но и планировка. Чтобы сделать быт максимально комфортным, хозяйка спроектировала шкафы, сделала своими руками уютный абажур для столовой и создала яркое геометричное панно, которое притягивает взгляды в гостиной.
В гостях: Сталинка с разноцветной стеной и умными шкафамиЕкатерина Савкина
О проекте Место: Москва Размер: 76 кв.м Кто здесь живёт: дизайнер Екатерина Савкина с дочерью Автор проекта: хозяйка квартиры Фото: Мария Иринархова ——————————————— В ВАШЕМ ГОРОДЕ… ► Через Houzz можно нанять дизайнера или архитектора в любом городе и стране. Начать поиск специалиста ———————————————
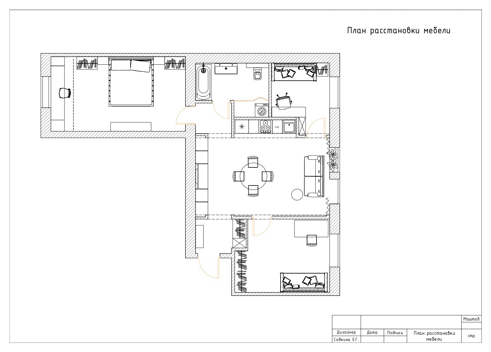
Планировка квартиры Главное преобразование — перенос кухни: её объединили с гостиной и оформили как нишу. От газовых коммуникаций пришлось отказаться, но благодаря энергосберегающей технике и светодиодным светильникам счёт за коммунальные услуги только уменьшился. Длинный коридор, типичный для « сталинок » , также присоединили к гостиной. Таким образом комната стала проходной. С помощью перепланировки в квартире организовали три спальни: для Екатерины, её дочери и маленькую гостевую. Ванной комнате добавили функционал прачечной.
В гостях: Сталинка с разноцветной стеной и умными шкафамиЕкатерина Савкина
В интерьере много цвета, но базу Екатерина подбирала в светлых тонах. Насыщенная синяя прихожая и небольшой тамбур при входе в ванную оформлены на контрасте: на фоне светлой гостиной они « пропадают » благодаря тёмной отделке.
В гостях: Сталинка с разноцветной стеной и умными шкафамиЕкатерина Савкина
Главный акцент гостиной — крупноформатный орнамент, который занял одну из стен, включая дверь скрытого монтажа. Референсом для росписи стала иллюстрация, найденная в интернете: её переработали в нужных цветах и под крупный формат.
В гостях: Сталинка с разноцветной стеной и умными шкафамиЕкатерина Савкина
« Я веду блог “Фабрика дизайна” , для которого мы снимали мой ремонт и роспись стены. Когда ролик уже был готов, я задумалась, что даже не знаю, чья работа стала для меня источником вдохновения. На помощь опять пришёл интернет: выяснилось, что автор референса — художница Татьяна Абрамова. Мы познакомились: Татьяна живёт в Москве, но родом из Казани, так же, как и я » , — рассказывает дизайнер.
Диван SK Design Художница оказалась не против того, что её картина продолжает жить, и даже дала разрешение производить это панно в виде обоев. Сейчас их создаёт и продаёт компания Factura из Санкт-Петербурга.
В гостях: Сталинка с разноцветной стеной и умными шкафамиЕкатерина Савкина
Кухонный гарнитур « Стильные кухни » ; обеденный стол SK Design; стулья La Redoute Небольшую светлую кухню поставили под ригель и вписали в нишу. Кухонный блок составили из элементов от разных брендов: каркасы и фасады Екатерина заказала у известной российской марки, столешницу купила в сетевом гипермаркете, а дубовые ручки, о которых давно мечтала, нашла на « Ярмарке мастеров » . Плитка на фартуке — стандартный « кабанчик » , но уложенный в необычную композицию: вертикальная раскладка чередуется с горизонтальной.
В гостях: Сталинка с разноцветной стеной и умными шкафамиЕкатерина Савкина
Шкаф во всю стену Екатерина спроектировала под свои потребности. У каждой секции — свой функционал. Есть секция-мастерская, в которой хранятся DIY-предметы — от шуруповёрта до аксессуаров для рукоделия. Ещё одно отделение предназначено для сезонных вещей, другое — для стремянки. Крайняя правая секция — кухонная и служит для хранения посуды. Почти все системы хранения в квартире — с глухими фасадами: в отличие от открытых полок, они не собирают пыль, а уборка занимает полтора часа в неделю. Но главная « фишка » шкафа — центральная секция, в которой скрыты проигрыватель для пластинок и телевизор. Экран хорошо просматривается и от обеденного стола, и от мягкой группы.
В гостях: Сталинка с разноцветной стеной и умными шкафамиЕкатерина Савкина
Столовую зону акцентирует яркий абажур: « Я заказала для него только каркас, а сам абажур сделала во время локдауна. Он из рафии — натурального волокна из листьев пальмы: дома удачно нашёлся большой запас этого материала. Свет диммируется, и обеденная зона стала любимым местом моих гостей: многие признаются, что чувствуют себя, как в гостях у бабушки » , — рассказывает дизайнер.
В гостях: Сталинка с разноцветной стеной и умными шкафамиЕкатерина Савкина
Каркасы шкафов изготовлены в мастерской Victoria Mobili Потолок в спальне выкрашен в цвет стен. « Мятный оттенок зелёного — любимый и в одежде, и в интерьере. А когда нашлась велюровая ткань идеально подходящая под стены, идея монохрома в спальне реализовалась полностью. Теперь цвет обволакивает со всех сторон! » — рассказывает Екатерина. Среди предметов, переживших ремонт, — зеркальные фасады шкафов, под которые выстроили новые корпуса. Боковые стенки выкрасили в цвет основных стен: « Мне нравится, что эти шкафы одновременно и новые, и старые: в зеркалах отражалось много хороших моментов моей жизни, поэтому их хотелось сохранить » .
В гостях: Сталинка с разноцветной стеной и умными шкафамиЕкатерина Савкина
Ножки для стола Duck and Dog В спальне появилось и рабочее место дизайнера. Столешница чуть ниже подоконника и сделана из сращенного дуба. Металлические ножки куплены отдельно, уже на месте Екатерина тонировала их белым маслом. « Готовый стол такого размера обошёлся бы в три раза дороже » , — поясняет дизайнер.
В гостях: Сталинка с разноцветной стеной и умными шкафамиЕкатерина Савкина
Комод и прикроватные тумбы La Redoute Картину написала сама хозяйка, чтобы добавить цвета в монохромный интерьер спальни. « Я нашла в интернете изображение ковра и перерисовала его орнамент. Я не художник, а дизайнер-практик, но было приятно привнести понравившийся образ в свой интерьер » , — отмечает Екатерина.
В гостях: Сталинка с разноцветной стеной и умными шкафамиЕкатерина Савкина
Шкаф изготовлен в мастерской Iron Forest Детская дочери, по словам дизайнера, получилась довольно аскетичной, но этого хотела сама хозяйка. Она учится в архитектурной школе, а комнату воспринимает как белый лист для творчества. В итоге с тены в детской выкрасили в белый, акценты добавили с помощью предметов с древесной фактурой и чёрных металлических каркасов мебели. Широкий многофункциональный шкаф вписали в двустороннюю нишу: одной своей частью она выходит в прихожую, другой — в детскую.
В гостях: Сталинка с разноцветной стеной и умными шкафамиЕкатерина Савкина
Ещё одна небольшая изолированная комната выполняет функции гостевой спальни. Идея и решение: Во время прошлого ремонта старые чугунные радиаторы заменили биметаллическими. Но позже Екатерина приняла решение вернуться к чугунным: они лучше греют и больше подходят старому дому. На окнах во всех помещениях, кроме гостиной, — только лаконичные рулонные шторы: в жилых комнатах Екатерина решила отказаться от тяжёлых, собирающих много пыли портьер.
В гостях: Сталинка с разноцветной стеной и умными шкафамиЕкатерина Савкина
Проблема и решение: Антресоль в гостевой комнате образовалась из-за смежной кухни — мебель вписана под ригель, но частично заходит на территорию спальни. Такая же антресоль есть в ванной: по словам хозяйки, это очень удобные, буквально незаменимые системы хранения в квартире.
В гостях: Сталинка с разноцветной стеной и умными шкафамиЕкатерина Савкина
Плитка в ванной — то самое решение, с которого начался весь ремонт: Екатерина купила её на распродаже, чтобы обновить интерьер санузла. Затем за ванной комнатой потянулись глобальные преобразования, а рисунок плитки подсказал все акцентные цвета интерьера.
В гостях: Сталинка с разноцветной стеной и умными шкафамиЕкатерина Савкина
В санузле разместили не только всю необходимую сантехнику, но и небольшую прачечную. Раздвижные гармошкой фасады выкрасили в цвет стен и дополнили лаконичными ручками.
В этом объёмном шкафу нашлось место и для стиральной машины, и для крупного домашнего инвентаря, и для открытых полок с бытовой химией. ОБ АВТОРЕ ПРОЕКТА… Перейдите на страницу Екатерины Савкиной , чтобы изучить другие работы из портфолио дизайнера ________________________ МЫ ЛЮБИМ ХОДИТЬ В ГОСТИ… Хотите стать героем следующей статьи? Напишите на editorial@flatica.ru и приложите несколько фотографий своего интерьера (достаточно съёмки на смартфон). Мы обязательно свяжемся с вами, если примем решение о публикации!

Комментарии 42

Irina Slavgorodskaya Почему вы решили, что рулонные шторы полупрозрачные? Они есть разные. Можно подобрать плотные, не пропускающие свет.
В такой квартире хочется жить. Мне понравилось, что для всех жильцов, даже временных, есть свой приватный уголок, в котором можно и поработать, и отдохнуть. Понравилось. что продуманы все мелочи, даже рабочий стол в гостевой комнате, а уж шкаф в ванной - это моя мечта, попробую ее воплотить при ремонте. Еще понравилось, что кухонный уголок очень лаконичный и не "давит" пространство гостиной, мне эта концепция близка. Браво дизайнеру!
Красивый проект, грамотная планировка и смелость в цветовых решениях . Достаточно ли в проекте мест для хранения сезонных вещей?

Оставьте комментарий

Читать похожие статьи