
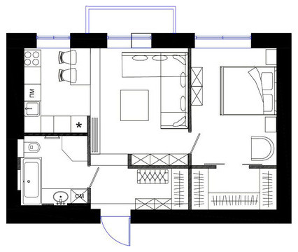
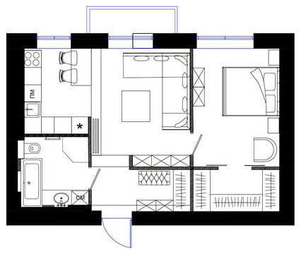
Houzz тур: Квартира в Москве, где при ремонте сохранили кухню
Евгения Назарова
12
27 июня 2022
Обновлено 5 июля 2022
Постоянный автор Houzz, интерьерный журналист
3 г.

Houzz тур: Квартира в Москве, где при ремонте сохранили кухню
Евгения Назарова
12

Houzz тур: Яркий интерьер для поклонницы аниме
Евгения Назарова
28

Houzz тур: Неоклассика в старом фонде – с цветными потолками
Евгения Назарова
27

Houzz тур: Квартира в оттенках песчаных берегов
Houzz Россия
8

Houzz тур: Квартира с журавлями и экзотическими птицами
Houzz Россия
12

Houzz тур: 64 кв.м — квартира в цветах блога хозяйки
Houzz Россия
15

До и после: 35 кв.м — квартира для «мамы с характером»
Houzz Россия
67

Houzz тур: Лофт в Петербурге с домиком для собак
Евгения Назарова
30

Houzz тур: Квартира с настроением юга Франции
Евгения Назарова
11

Houzz тур: Современный ар-деко для молодой семьи
Евгения Назарова
15

Houzz тур: Квартира для артистов оперного театра
Houzz Россия
20

Houzz тур: 65 кв.м —квартира в новостройке с ремонтом за 4 месяца
Евгения Назарова
23

Houzz тур: Квартира на Плющихе в бывшем доходном доме
Евгения Назарова
12

Houzz тур: Квартира как дорогой отель
Houzz Россия
9

Houzz тур: 49 кв.м — квартира, наполненная цветом
Houzz Россия
18

Houzz тур: Квартира в Петербурге с коллекцией Lego
Houzz Россия
9

Houzz тур: Брутальная квартира с комнатой для коллекции гитар
Евгения Назарова
14

Houzz тур: 200 кв.м— квартира пары с тремя гардеробными
Houzz Россия
13
АЛЛА MALIKOVA
3 г.