logo

Houzz тур: 200 кв.м— квартира пары с тремя гардеробными

Кровати выбрали точь-точь, как в отеле Four Seasons

Houzz Россия
Houzz Россия

23 мая 2022

Обновлено 13 июля 2022

Houzz тур: 200 кв.м— квартира пары с тремя гардеробнымиЛидия Большакова
О ПРОЕКТЕ
Место: Россия, Москва
Год: 1898 год постройки дома, ремонт 2021-22 гг,
Размер: 202 кв.м., 6 комнат
Кто здесь живет: семейная пара
Авторы проекта:дизайнер Лидия Большакова,
Студия NW-Interior архитектор Яна Поклад
Автор съемки: Ольга Шангина | Photography

Что просили заказчики: традиционный интерьер в нейтральной светлой гамме. Существующую планировку корректировали незначительно, лишь поменяли назначение некоторых комнат.
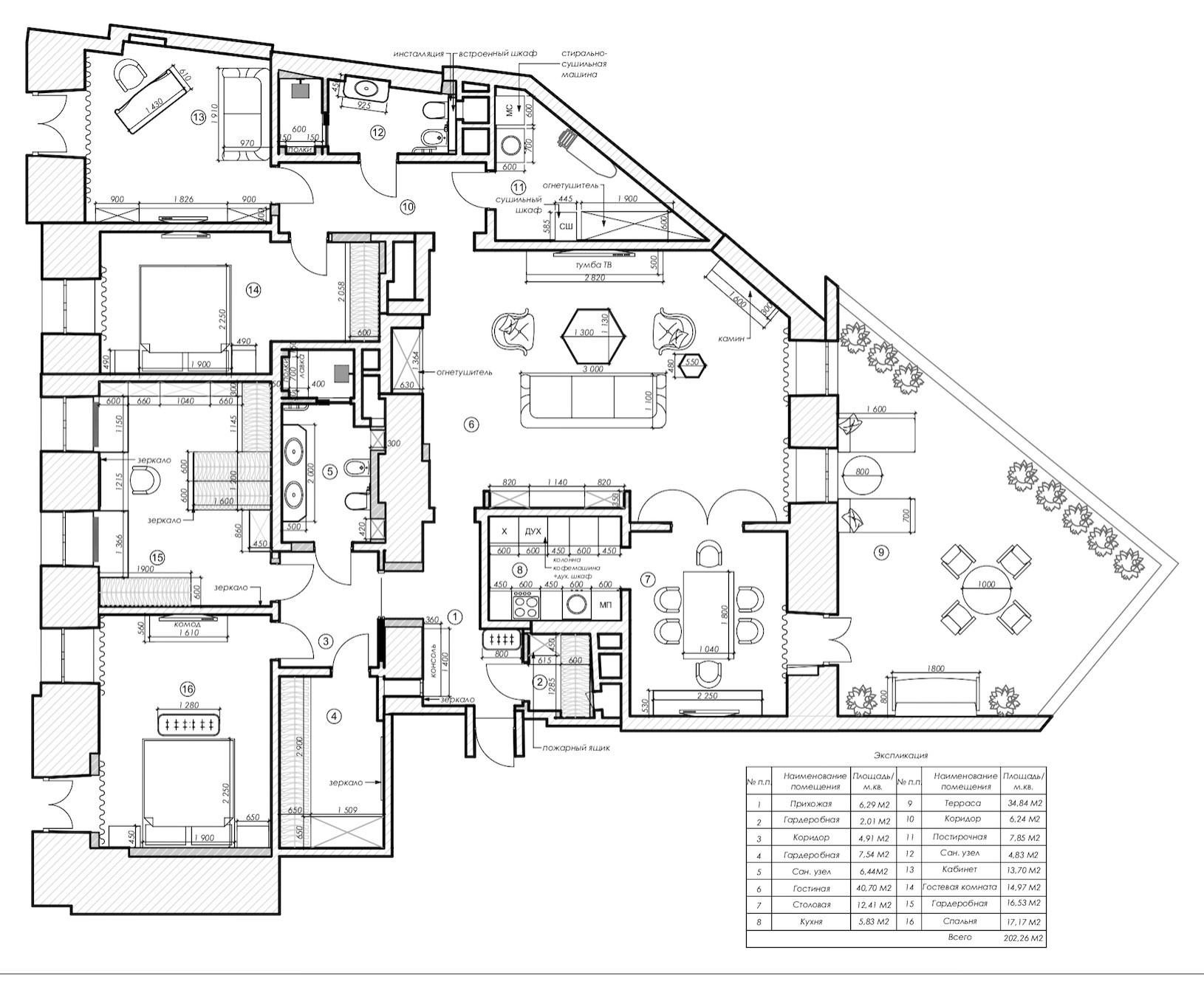
На плане снизу вверх, слева направо — спальня, гардеробная с туалетным столиком, гостевая спальня, кабинет, гостевой санузел, постирочная, кухня-гостиная-столовая и терраса со второй столовой зоной


Houzz тур: 200 кв.м— квартира пары с тремя гардеробнымиЛидия Большакова
На стенах краска Sherwin Williams, текстиль And home, ковер kover.ru, кресло и диван Сергей Корб

Квартира располагается в дореволюционном доме 1898 года постройки, на момент покупки в ней был типичный ремонт 1990х годов. Из уважения к месту было решено создать интерьер в стиле «благородной классики», использовать спокойные цвета, натуральные материалы. Хотелось создать интерьер «вне времени», который бы не выглядел морально устаревшим даже через 20 лет.


—————————————
ЭТО БЕСПЛАТНО…
Через Houzz можно нанять дизайнера или архитектора в любом городе. Начать поиск специалиста для вашей задачи
—————————————
Houzz тур: 200 кв.м— квартира пары с тремя гардеробнымиЛидия Большакова
Каминный портал — мрамор из Саян, светильники на стене — HANDLE STUDIO, молдинги Orac decor
Houzz тур: 200 кв.м— квартира пары с тремя гардеробнымиЛидия Большакова
Дверь «Атрибут», корпусная мебель в гостиной INTERIOR-SP, напольное покрытие «Файнекс», люстра HANDLE STUDIO, стулья — Connubia, стол - Status
Houzz тур: 200 кв.м— квартира пары с тремя гардеробнымиЛидия Большакова
Кухонный гарнитур Virs, фартук и столешница — агломераты.рф, техника Bosch, напольное покрытие в зоне кухни—REX

КУХНЯ
Ящики с профилировкой на кухне (открываются от нажатия) немного напоминают модные сейчас фасады с фрезеровкой. Но, в то же время, отсылают к желобкам античных колонн.
Houzz тур: 200 кв.м— квартира пары с тремя гардеробнымиЛидия Большакова
На стенах краска Sherwin Williams,
светильники HANDLE STUDIO
кровать for seasons, текстиль Enere.it


СПАЛЬНЯ
Заказчики сами выбрали кровати и матрасы от марки Four Seasons, так как любят отели этой сети, в том числе, за удобную мебель для сна.
Houzz тур: 200 кв.м— квартира пары с тремя гардеробнымиЛидия Большакова
Гардеробная INTERIOR-SP

ГАРДЕРОБНАЯ
Помимо основных секций и выдвижных ящиков, в гардеробной много витринных элементов — для обуви и сумочек хозяйки. Основное хранение располагается в объемных секциях, размещенных стенка к стенке поперек гардеробной (см.план). Они делят гардеробную на мужскую и женскую части.
Houzz тур: 200 кв.м— квартира пары с тремя гардеробнымиЛидия Большакова
Напольное покрытие ATLAS CONCORDE LIMS, мебель INTERIOR SP; cтолешница — мрамор из Саян; сантехника Villeroy&Boch, Hansgrohe

МАСТЕР-ВАННАЯ
Оба санузла в квартире оборудованы просторными душевыми кабинами. Ванне хозяева предпочли двойную раковину комфортных размеров
Houzz тур: 200 кв.м— квартира пары с тремя гардеробнымиЛидия Большакова
Система хранения INTERIOR-SP, зеркало «Ваше зеркало»

ГОСТЕВАЯ СПАЛЬНЯ
Фацет зеркала повторяет раскладку молдингов на стене за изголовьем кровати. Зеркало маскирует простенок, за которым располагается душевая кабина в мастер-ванной.
Houzz тур: 200 кв.м— квартира пары с тремя гардеробнымиЛидия Большакова
Текстиль and home, ковер kover.ru, стол Caprice Tosconova

КАБИНЕТ
Диагональная расстановка стола во многом объясняется странной формой помещения — с внешними углами и в форме трапеции; За счет непараллельной расстановки мебели глаз «теряется»: не считывает, что комната имеет неправильную форму.
Houzz тур: 200 кв.м— квартира пары с тремя гардеробнымиЛидия Большакова
Диван Сергей Корб, корпусная мебель INTERIOR-SP, зеркала «Ваше зеркало»

Все декоративные подушки (на кровать, диваны в гостиной и кабинете) выбирала хозяйка — это ее любимая марка Enere.
———————————
У ВАС ЕСТЬ ДЛЯ НАС ПРОЕКТ…
Загрузите съёмку в свой профиль на Houzz, отправьте ссылку с кратким описанием на editorial@flatica.ru

Комментарии 13

Прекрасная (удобная и качественная) мебель, но интерьер в целом не запоминается (как хороший классический отель) . Странное расположение телевизора в столовой (лучшего центра композиции не нашлось, видимо). Не менее странное расположение зеркала над кроватью в спальне.
Очень понравились цвета , все светлое, нежное! Столько воздуха в интерьере, молодцы!!
Для меня в этом проекте все идеально сложилось! Дом доревреволюционный, высокие потолки, квартира просторная, есть терраса и гардеробная мечты. Нравится общая спокойная гамма, но с элегантными акцентам. На ум приходит одно слово описывающее этот проект, благородная квартира!

Оставьте комментарий

Читать похожие статьи