
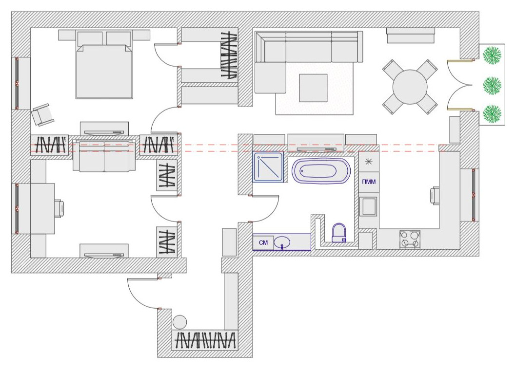
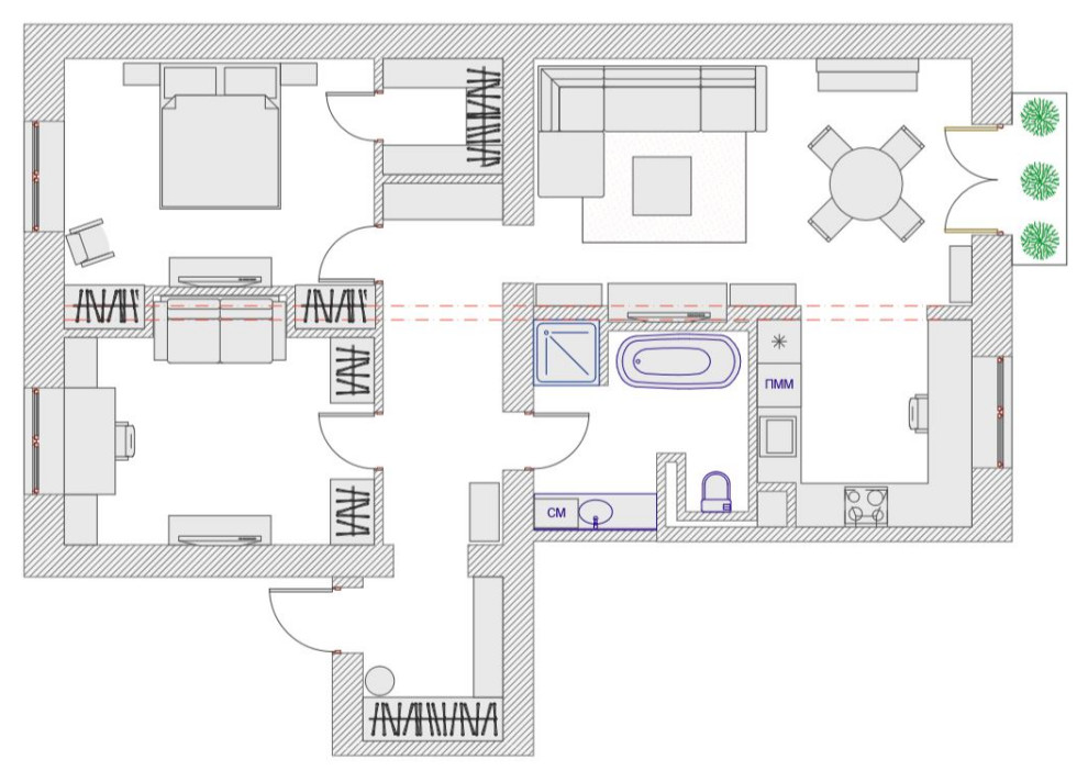
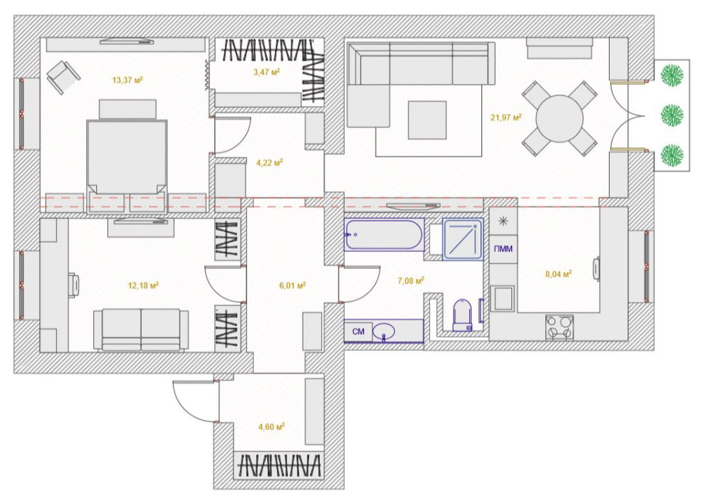
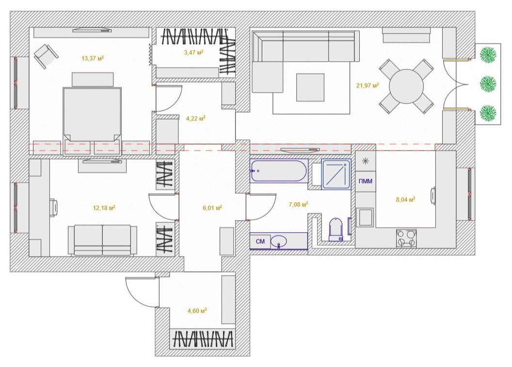
Поиск планировки: Семейная квартира с тремя детскими— 4 плана
Houzz Россия
3

17 мар. 2020
Обновлено 31 мар. 2020
журналист, редактор
5 л.

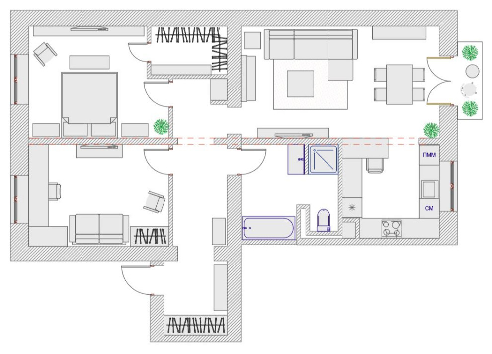
Поиск планировки: Семейная квартира с тремя детскими— 4 плана
Houzz Россия
3

Поиск планировки: одноэтажный дом для будущей пенсии — 4 плана
Houzz Россия
7

Личный опыт: Зачем я высаживала деревья внутри бассейна
Елена Черных
5

Цена кухни с фото: Куда здесь ушло 2 890 000 ₽
Саша Зайцева
4

Сроки и смета: Переделка спальни за 4 месяца и 683 451₽
Саша Зайцева
17

Личный опыт: Каково это — делать интерьеры блогерам-миллионникам
Анна Марсо
17

Цена санузла с фото: Куда здесь ушло 621 930 ₽
Саша Зайцева
6

Таймлайн: 11 месяцев на реконструкцию сада 45 соток
Саша Зайцева
5

Таймлайн: 9 месяцев на реновацию сада 45 соток в английском стиле
Саша Зайцева
15

Сроки и смета: 20 млн и 11 месяцев на ремонт дома в Екатеринбурге
Саша Зайцева
16

Поиск планировки: Евродвушка, где едва нашли место для гостиной
Саша Зайцева
11
![Обложка статьи: Поиск планировки: Квартира для семейной пары и кота [6 планов]](https://static.flatica.ru/simgs/9671e23001ea797f_16-6545/home-design.jpg)
Поиск планировки: Квартира для семейной пары и кота [6 планов]
Саша Зайцева
19

Поиск планировки: Кухня 18 кв.м, для которой сделали 4 плана
Саша Зайцева
20

Поиск планировки: 3 плана + финал «евродвушки» для дизайнера
Саша Зайцева
12

Вопрос: Почему для готового проекта все равно нужен архитектор
Саша Зайцева
4

Кухонный гарнитур: что можно считать «нестандартом»?
Саша Зайцева
5

Поиск планировки: 3 плана + финал для студии-трапеции 28 кв.м
Саша Зайцева
7
![Обложка статьи: Поиск планировки: Курортная квартира на Балтике [5 планов]](https://static.flatica.ru/simgs/30215fa501dc3a75_16-2843/home-design.jpg)
Поиск планировки: Курортная квартира на Балтике [5 планов]
Саша Зайцева
10
Елена Маркина
5 л.