logo

Поиск планировки: Апартаменты 17 кв.м — 4 плана и финал

Дизайнеры объясняют, как шло обсуждение рабочих чертежей и к какому решению пришли в результате

Саша Зайцева
Саша Зайцева

14 апр. 2020

Обновлено 4 мая 2020

журналист, редактор

Эта квартира напоминает крохотные французские апартаменты: 17 квадратных метров на все (включая санузел и кухню). Мы уже публиковали историю «В гостях» об этом проекте, и в комментариях читатели недоумевали, а как еще можно было расставить мебель на такой крошечной площади. Показываем варианты, которые обсуждались.

РАНЕЕ В ТОЙ ЖЕ СЕРИИ…
Поиск планировки: Квартира в форме четвертинки пиццы — 3 плана
Поиск планировки: «Однушка» для программиста с зоной home office
Поиск планировки: Апартаменты 17 кв.м — 4 плана и финалКатя Сванидзе
ПРОЕКТ Где: Москва, Москва, ЖК « Апарт-Алтай » Что: апартаменты 17 кв.м (бывший гостиничный номер) Дизайнеры интерьера: Екатерина Сванидзе и Екатерина Любарская, студия DVEKATI СТАТЬЯ О ПРОЕКТЕ… ► В гостях: Апартаменты 17 кв.м — подарок для дочери
Дано: комната в торце здания, с потолками 3,3 м и двумя окнами (в этом ее большое преимущество относительно соседних апартаментов аналогичного метража). Статус апартаментов дает значительно больше свободы в работе с планом. Например, границы мокрой зоны могут быть перенесены в любое место в рамках допустимой технической возможности. Высокие потолки — тоже значимый плюс пространства: в помещении важна не только площадь по полу, но и объем: чем выше потолок, тем больше воздуха. Такие потолки позволяют работать с уровнями, локально понижать высоты за счет подиумов, антресолей и опусков потолка. Задача дизайнеру: Вписать все необходимое для полноценной жизни. Апартаменты куплены для дочки « на вырост » , а пока дочь растет, заказчица планирует сдавать их в аренду. Предполагаемый портрет жильца — молодой активный человек.
ПЛАНИРОВКА #1 С обеденно-рабочим столом у окна. Что предложили дизайнеры В прихожей: шкаф и галошница. В санузле: душевая кабина, стиральная машина под столешницей. Стол (обеденный и учебный): у бокового окна, интегрированный с подоконником. В зоне отдыха: раскладной диван, напротив — телевизор. Кухня: располагается вдоль смежной с санузлом стены — небольшая столешница с мини-раковиной и мини-холодильником под ней (для апартаментов хозяйка заранее приобрела мобильную варочную панель).
Поиск планировки: Апартаменты 17 кв.м — 4 плана и финалКатя Сванидзе
Почему отказались от планировки #1 Размещение кухни показалось не очень удачным — хотелось, чтобы ее не было видно из того места, где спят. Хозяйка хотела пусть маленький, но полноценный стол, не интегрированный в подоконник. Прихожую решили не загромождать, чтобы вход был более открытым.
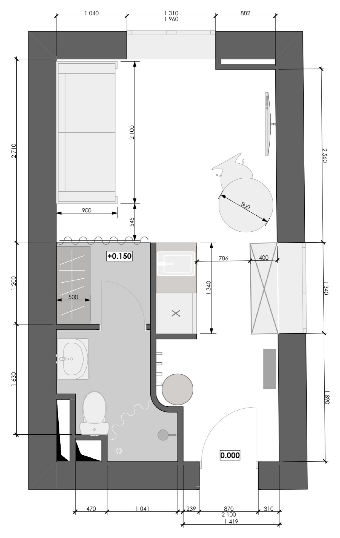
ПЛАНИРОВКА #2 С увеличенным подоконником в качестве дополнительной кухонной поверхности. Что предложили дизайнеры В прихожей: только открытая вешалка для повседневной одежды. Санузел: становится примерно на 30% меньше, за счет него получается сделать гардеробную со стороны жилой части апартаментов. Кухня: переезжает в центр помещения напротив окна, увеличенный подоконник которого служит в качестве рабочей поверхности (еще один бонус этого пространства — уровень подоконников 85 см, что позволяет функционально их использовать). В зоне отдыха: круглый стол и раскладной диван.
Поиск планировки: Апартаменты 17 кв.м — 4 плана и финалКатя Сванидзе
Почему отказались от планировки #2 Так санузел получался слишком тесным, попросили подумать над другими вариантами. А вот размещение кухни показалось удачным, и хотя потом были еще идеи, в итоге вернулись именно к такому решению.
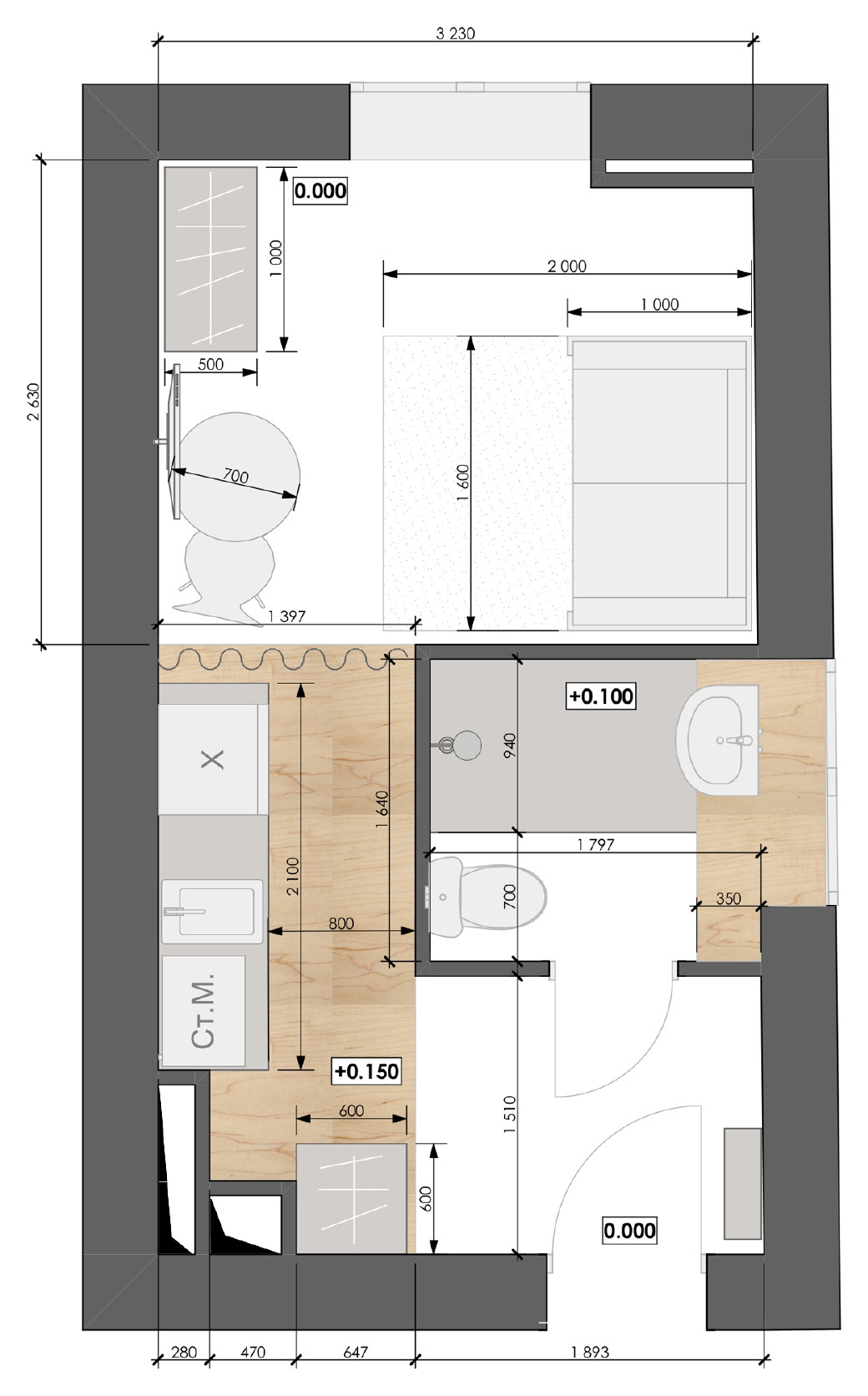
ПЛАНИРОВКА #3 Что предложили дизайнеры Перенести вход в санузел — сделать его из спальной зоны, через зону гардеробной. За счет этого прихожая становится больше и функциональнее. Площадь санузла также увеличивается.
Поиск планировки: Апартаменты 17 кв.м — 4 плана и финалКатя Сванидзе
Почему отказались от планировки #3 Мест для хранения становилось меньше. Все же вход в санузел у входной двери — более привычное решение для маленьких квартир.
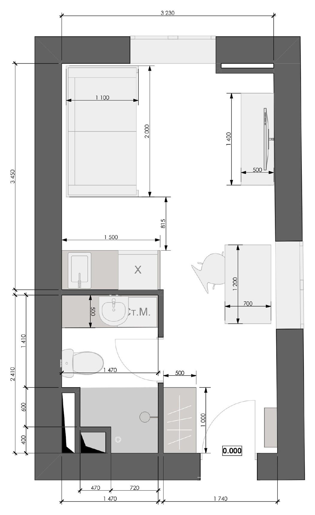
ПЛАНИРОВКА #4 Что предложили дизайнеры Перенести санузел в центр помещения к окну — получится шикарная душевая с естественным освещением. Для коммуникаций выстроить подиум — 13 – 18 см будет комфортным и безопасным вариантом. Прихожая в этом решении получается обособленной и ее можно сделать уже полностью функциональной. Кухня и стиральная машинка выстраиваются вдоль стены без окон. Жилая зона становится уютной и обособленной — мебель там расположена зеркально относительно предыдущего варианта.
Поиск планировки: Апартаменты 17 кв.м — 4 плана и финалКатя Сванидзе
Почему отказались от планировки #4 Вариант показался слишком смелым, плюс хотелось сохранить пространство просторным и светлым, а для этого было важно, чтобы оба окна оставались открытыми. Кроме того, хозяева осознали, что они хотят полноценное спальное место, а не раскладной диван — это предопределило появление нового, уже пятого планировочного решения.
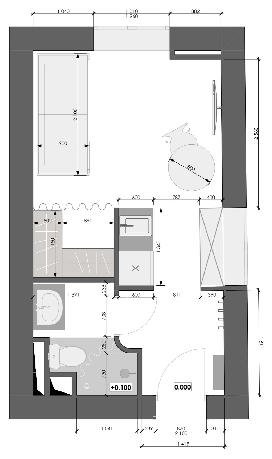
ПЛАНИРОВКА #5, ФИНАЛЬНАЯ Что предложили дизайнеры Прихожая и санузел практически идентичны второму варианту. Кухня снова выводится в центр и ориентируется на окно. Спальное место: матрас 1,4 м шириной размещается на подиуме, под ним — место для хранения. Причем со стороны санузла, в нише под кроватью размещена стиральная машина. В зоне гостиной: невысокий подиум, который скрадывает высоту спального настила; на подиуме — круглый столик, стул, комод и шкаф для хранения вещей (кровать, получается, прячется за кухней и шкафом).
« В этом варианте нам удалось отделить зону сна от “гостиной”, где разместились стол и система хранения. При дальнейшей разработке этого плана мы добавили еще и антресольное хранение над объемом санузла » , — рассказывает Екатерина Сванидзе, один из авторов проекта (антресоли видно на этом фото над кроватью). __________________________ ВАША ОЧЕРЕДЬ… Среди наших читателей много практикующих дизайнеров. Если вы готовы показать поиск планировки на примере своего проекта, пишите в редакцию на editorial@flatica.ru

Комментарии 18

Вариант, четыре доработать. Дверь в сан узел перенести со стороны кухни, сделав ее со стеклянными вставками для естественного освещения кухни. Получается прихожая, где можно оборудовать множество мест хранения. И поменять диван на кровать. В комнате, где тоже есть возможность ещё сделать места хранения.
Хм! От стиральной машины тоже решили отказаться... Неудобно, наверное, все сдавать в прачечную. Мне кажется, что санузел в первом варианте был идеален. В нем можно было организовать много систем хранения.
хороший вар1, а вариант №4 вообще идеален для такого объема, могли бы просто заменить в нем дивана на кровать. Странно, что остановились на №5, он худший из всех вариантов

Оставьте комментарий

Читать похожие статьи