
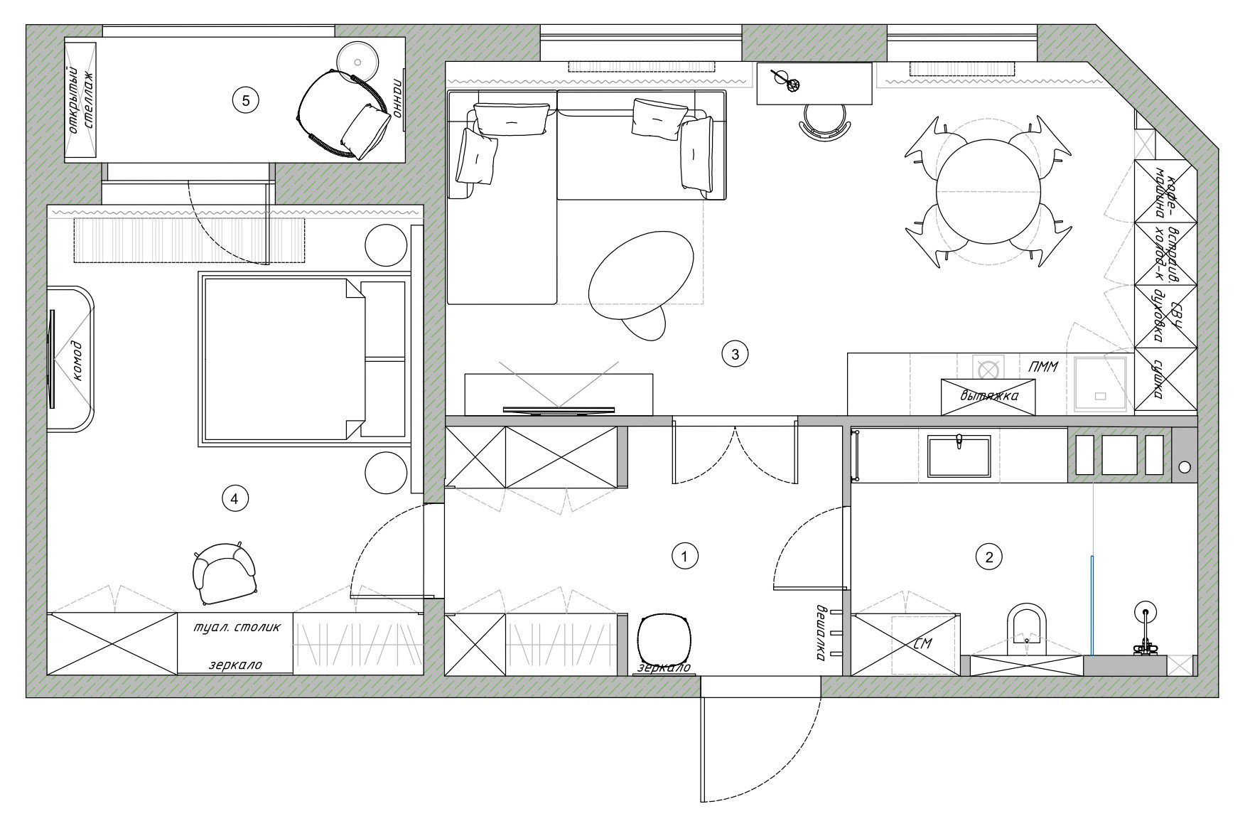
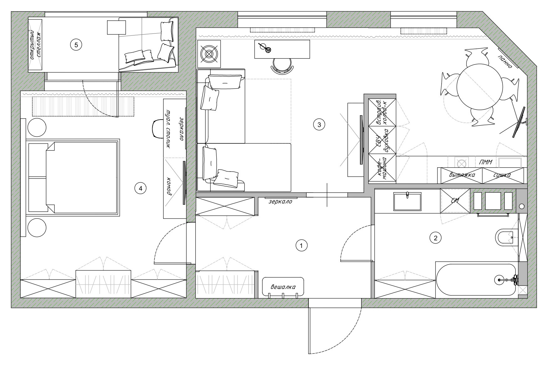
Houzz тур: 31 кв.м — квартира с «гнездом» для кота
Houzz Россия
9

25 янв. 2021
Обновлено 6 февр. 2021
журналист, редактор
5 л.
5 л.

Houzz тур: 31 кв.м — квартира с «гнездом» для кота
Houzz Россия
9

Houzz США: Хижина в лесу Южной Каролины
Houzz Россия
14

Houzz Австралия: Пристройка к дому, где ничего нельзя
Houzz Россия
2

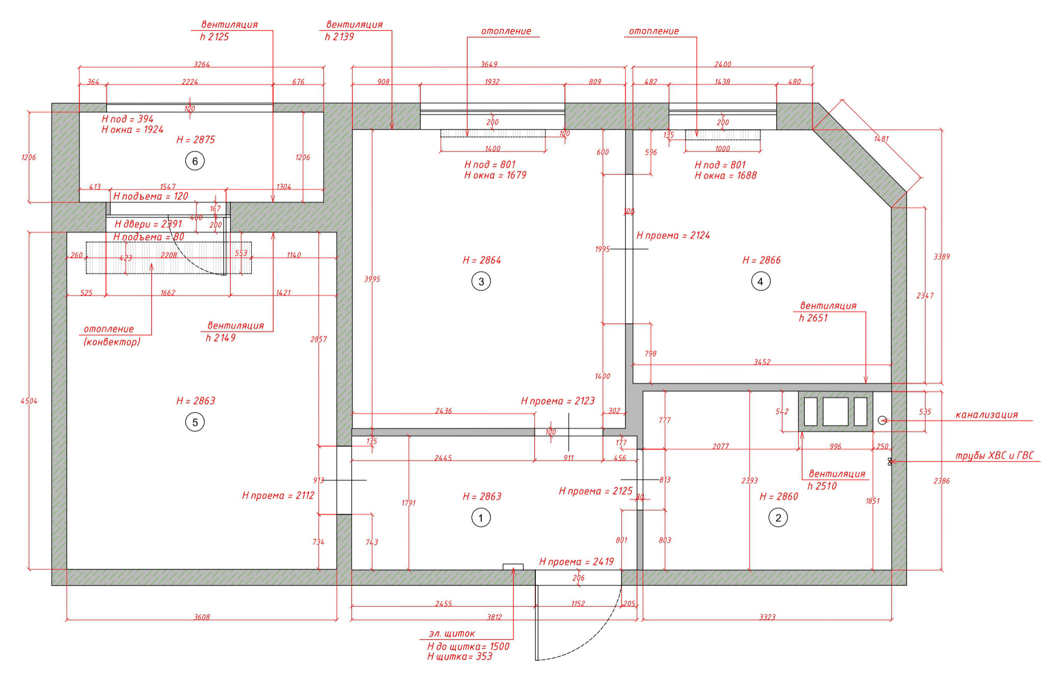
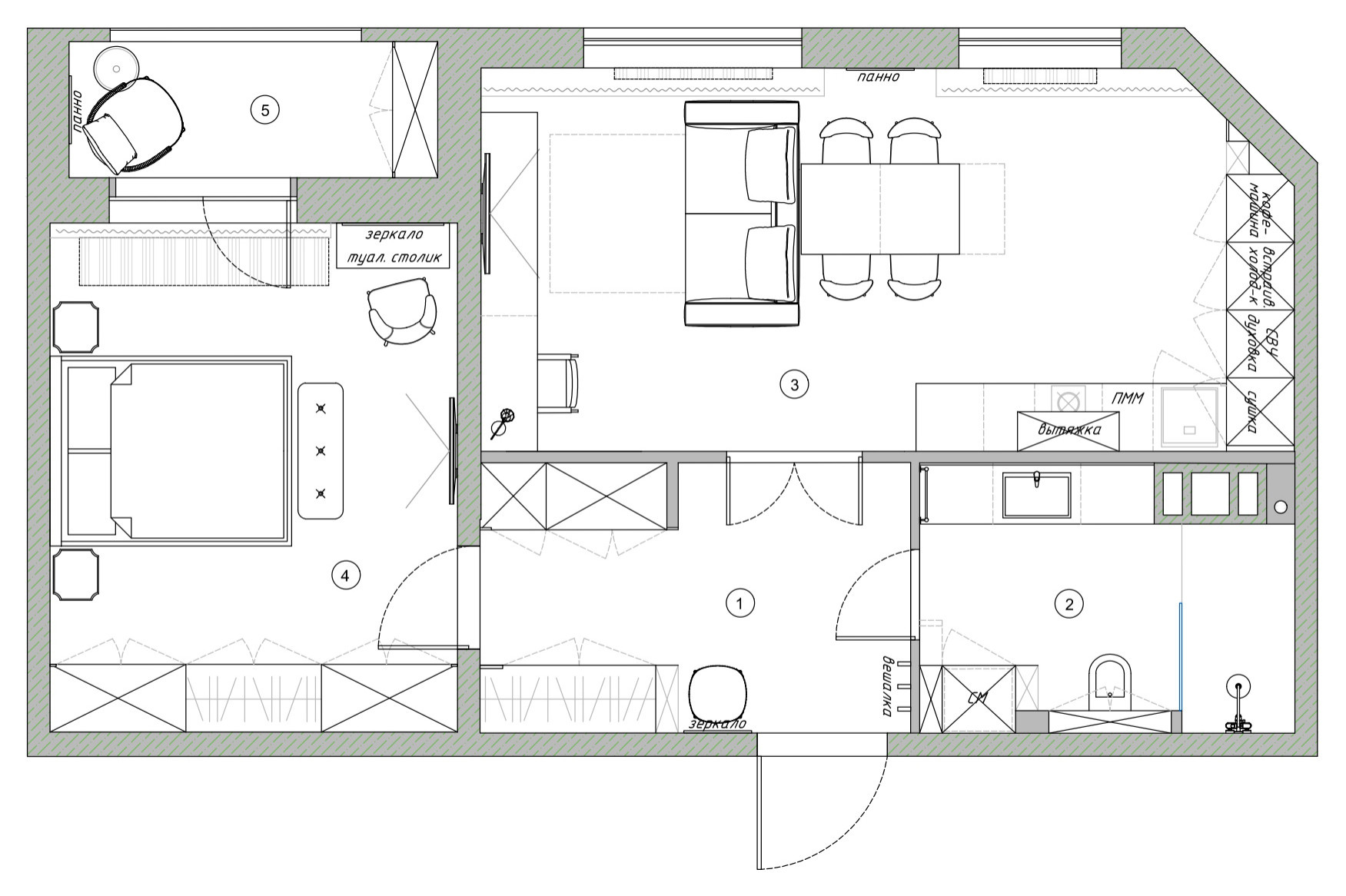
Houzz Беларусь: Квартира с тремя (!) вытяжками
Houzz Россия
10

До и после: Бассейн в крошечном саду (1.7 сотки)
Houzz Россия
8

Houzz Испания: Квартира, где все покосилось
Houzz Россия
6

Houzz Казахстан: Эко-минимализм для молодого юриста
Евгения Назарова
6

Houzz Италия: Дом на озере Комо — проект русских дизайнеров
Евгения Назарова
26

Houzz Испания: 40 кв.м — яркая квартира в центре Мадрида
Houzz Россия
5

Houzz Италия: Энергоэффективный дом на участке для трех семей
Houzz Россия
3

Houzz Беларусь: Квартира для сдачи в аренду в Гродно
Houzz Россия
15

Houzz Италия: Квартира с иллюминатором и большой террасой
Houzz Россия
6

Houzz Австралия: Пристройка к дому вместо сарая
Houzz Россия
1

Houzz Германия: 101 метр ткани — на пошив штор в доме
Houzz Россия
6

Houzz США: Дом в лесах, к северу от Нью-Йорка
Houzz Россия
7

Houzz Британия: Перестройка пристройки — с эффектным окном
Houzz Россия
5

Houzz Украина: Квартира в центре Киева
Евгения Назарова
16

Houzz Украина: Апартаменты в Киеве с открытой террасой
Евгения Назарова
15
Ольга Арисеп
4 г.