logo

Кухни за 500–600 тысяч — сравним четыре проекта

По просьбе Houzz дизайнеры подробно комментируют пункты сметы, а мы — ищем закономерности

Саша Зайцева
Саша Зайцева

30 окт. 2020

Обновлено 8 нояб. 2020

журналист, редактор

В этой подборке — кухонные гарнитуры, стоимость которых без учета техники обошлась в 500600 тысяч рублей. Оказывается, еще столько же (если не вдвое больше) обычно уходит на ремонт, технику и столешницу (в этой ценовой категории она обходится в сумму, доходящую до 30% от стоимости гарнитура). А теперь детали.
Кухни за 500–600 тысяч — сравним четыре проектаАлександр Сенчугов
1. Кухня для молодой девушки

Где:
Санкт-Петербург, ЖК «Монблан»
Авторы проекта: дизайн-студия «Нечаев и Сенчугов»
Реализация: 2019 год
ТЗ: заказчица просила невстроенную кухню, небольшую и максимально функциональную; остров нужен был как дополнительная рабочая поверхность.








Марка кухни: EXPRESS KUECHEN (концерн Nolte Group, Германия). «Преимущество этой фабрики — именно в низкой цене стандартных решений. Если какой-то размер или цвет нестандартные, то это сразу же увеличивает стоимость гарнитура. Так как кухня невстроенная, мы избежали переплат за нестандарт».
Каркас кухни: ЛДСП.
Фасады: пластик (70% стоимости гарнитура).
Ручки: профильные, интегрированные в корпус.
Петли: фирма Hettich.
Наполнение: полки, выдвижные горизонтальные ящики только в острове.
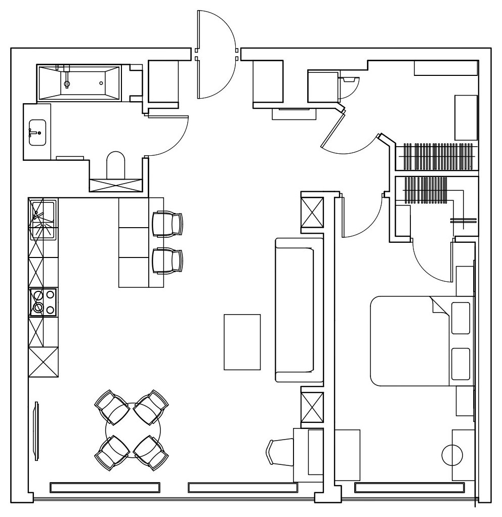
На схеме: планировка квартиры

Длина гарнитура: 3,6 п.м.

Длина острова: 1,8 п.м.
Итого: 1 846 785 ₽
Из них кухня без учета столешницы — 521 300 ₽ (или 28% от всех расходов).
Столешница из кварцевого агломерата — 198 000 ₽.
Подсветка — 16 800 ₽.
Мойка Teka — 16 360 ₽.
Смеситель Teka — 9 300 ₽.
Бытовая техника Miele — 565 025 ₽.
Плитка Porcelanosa (фартук, пол в зоне кухни-гостиной) — 300 000 ₽.
Светильники над островом и в зоне столовой — 160 000 ₽.
Натяжные потолки — 60 000 ₽.

Почему так дорого? Для проекта выбрана кухня европейского производства, установлена бытовая техника класса премиум. Заметный вклад в цену — столешница из искусственного камня на 5,4 погонного метра.

На чем экономили?
На фартуке. Его можно было заказать из того же кварцевого агломерата, что и столешница, но это бы заметно увеличило стоимость. Сейчас он из крупноформатной плитки, хоть и довольно дорогой.

———————————————
В ВАШЕМ ГОРОДЕ…
Через Houzz можно нанять дизайнера или архитектора в любом городе и стране. Начать поиск специалиста
———————————————
Кухни за 500–600 тысяч — сравним четыре проектаСоловьева Татьяна
2. Кухня для семьи с ребенком

Где:
Москва, ЖК «Зиларт»
Авторы проекта: Татьяна и Денис Соловьёвы, студия «Архи-агора»
Реализация: 2019 год
ТЗ: в семье есть ребенок пяти лет, поэтому от предложений с островом и барной стойкой заказчики отказались, попросили сделать классическую обеденную группу. Кроме того, из-за панорамного окна у дизайнера был только один вариант расположения гарнитура — Г-образный.




Марка кухни: «Империя» от «Атлас-Люкс». «Кухню заказывали во время акции, и она обошлась почти на 30% дешевле. От других кухонь с эмалированными фасадами из МДФ эту модель отличало сочетание элементов в шпоне зебрано и эвкалипта и широкого резного карниза с серебристой патиной. Но они же и оказались самыми дорогими позициями».
Каркас кухни: ЛДСП.
Фасады: эмалированные, из МДФ + элементы в шпоне.
Ручки: Италия.
Петли: Blum, Австрия.
Наполнение: полки, выдвижные корзины и ящики.
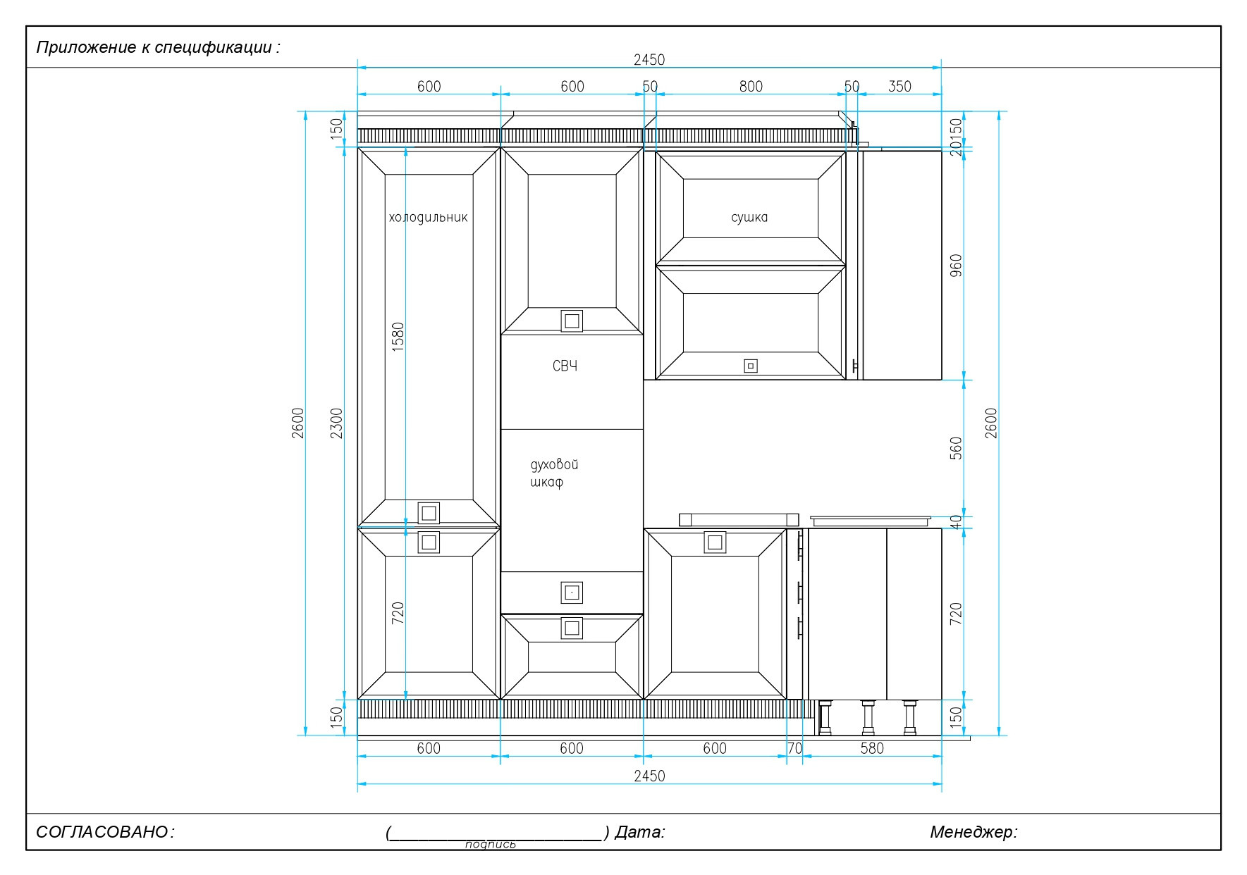
На схемах (выше и ниже): развертки кухонного гарнитура с расположением техники

Длина гарнитура: Г-образный, со сторонами 2,45 м и 3,53 м.
Итого: 1 523 432 ₽
Из них гарнитур без учета столешницы — 607 489 ₽
(или 40% от общей сметы).
Столешница кварцевая VICOSTONE — 159 788 ₽.
Мойка Blanco Metra 6S — 33 700 ₽.
Смеситель Blanco Mila — 13 700 ₽.
Бытовая техника NEFF и Liebherr (измельчитель отходов для раковины, холодильник, посудомоечная машина, духовка, варочная поверхность) — 284 812 ₽.
Кухни за 500–600 тысяч — сравним четыре проектаСоловьева Татьяна
Керамогранит на фартук — 40 000 ₽.
Зеркало с гравировкой — 50 000 ₽.
Керамогранит на полу O.I.P. — 46 248 ₽.
Встроенные светильники на потолке — 29 400 ₽.
Люстра Newport — 42 395 ₽.
Стол Kanzas — 52 900 ₽.
Стулья — 60 000 ₽.
Работа строителей, черновые материалы — 103 000 ₽.
Кухни за 500–600 тысяч — сравним четыре проектаСоловьева Татьяна
Почему так дорого? Кухня довольно большая (5,98 м в сумме). Плюс хозяева не хотели экономить на удобстве и заказали максимальное наполнение баз выдвижными корзинами и ящиками. Столешница из кварцевого агломерата добавила 25% к стоимости гарнитура.

На чем экономили? Ручки взяли итальянские, из предложенных к этой модели во время акции. Фартук на кухне сделан из крупноформатного керамогранита и зеркальной вставки с гравировкой рисунка в виде ромбов. Полоски керамогранита остались от резки панно в прихожей, в противном случае пришлось бы покупать цельный лист.
3. Кухня в духе итальянской неоклассики

Где:
Москва, Мичуринский проспект
Авторы проекта: Icon Interiors
Реализация: 2019 год
ТЗ: заказчики — супруги с дочкой-школьницей, попросили сделать кухню минималистичной, но при этом европейской. Так был выбран стиль неоклассика для дизайна интерьера кухни и всей квартиры в целом.
Кухни за 500–600 тысяч — сравним четыре проектаКонстантин Щербаков
Марка кухни: «Мария», модель Dominica. «Мы взяли проверенный российский бренд, поэтому в итоге кухня с итальянским дизайном обошлась нам в три раза дешевле оригинальной итальянской».
Каркас кухни: МДФ.
Фасады: массив ясеня, филенка — ДСП, покрытая шпоном ясеня; покрытие — эмаль, цвет дымчатый белый.
Ручки и петли: стандартные, из предложенных производителем.
Наполнение: Hettich — ящики ArciTech полного выдвижения, система хранения приборов Orga Tray.
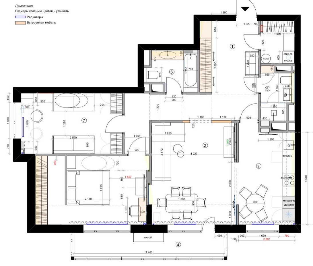
На схеме: кухня отделена от гостиной раздвижными перегородками (видны на фото ниже). При этом из коридора можно попасть напрямую и в кухню, и в гостиную. Площадь кухни — 13,2 кв.м

Длина кухонного гарнитура: 4,5 м.
Итого: 1 178 000 ₽
Из них кухонный гарнитур (со столешницей, раковиной и смесителем) 643 000 ₽
(или 55% от общей сметы).
Бытовая техника Electrolux 245 000 ₽.
Ремонт под ключ (работы строителей, черновые и чистовые материалы) — 198 000 ₽.
Инженерная доска для пола «Золотой лес», на заказ — 66 000 ₽.
Керамогранит Calacatta White на фартук — 26 000 ₽.

Почему так дорого? Кухня довольно большая по площади — 13,2 квадратного метра. Фронт гарнитура занимает 4,5 метра в длину. Значимый вклад — встроенная бытовая техника бизнес-сегмента, внутреннее наполнение кухни и инженерная доска для пола.

На чем экономили?
На бренде кухни — оригинальный итальянский гарнитур обошелся бы значительно дороже отечественного.
Кухни за 500–600 тысяч — сравним четыре проектаМария Родионовская
4. Кухня, которую видно с улицы

Где: Москва, ЖК «Парк Рублево»
Автор проекта: Мария Родионовская
Реализация: 2018 год
ТЗ: заказчица, деловая женщина, выбрала для себя квартиру на первом этаже, чтобы видеть прекрасный ландшафт — ЖК находится на берегу Москвы-реки, в окружении сосен и дубов. Кухню хозяйка просила спроектировать как интерьерный объект, так как ее видно даже с улицы (!), но укомплектовать гарнитур всей необходимой техникой + продумать комфортное место для готовки и сервировки блюд.
На схеме: планировочное решение для квартиры

Марка кухни: изготовлена на заказ по индивидуальным эскизам в столярной мастерской «БЕССТ» (Москва). «Кухня делалась по авторским чертежам, тут много нестандартных элементов, не связанных со встроенной техникой».
Каркас кухни: ДСП.
Фасады: ДСП + МДФ + окраска.
Петли: CLIP top BLUMOTION с доводчиками.
Ручки: Amerock, США.
Наполнение: нижний угловой элемент мебели спроектирован с выдвижным устройством хранения — такая система позволяет полностью использовать угол; в острове заложили сразу две бутылочницы — для хранения вина и масла.
Итого: 1 385 166
Из них гарнитур без учета столешницы, ручек и смесителя — 600 000 ₽ (или 43% от общей сметы).
Ручки 280 $ или 22 166 ₽ (по курсу на момент публикации статьи).
Смеситель 15 000 ₽.
Бытовая техника Neff (духовка, вытяжка, микроволновка, плита, холодильник встроенный, посудомоечная машина) 379 000 ₽.
Столешница и фартук из натурального гранита 248 000 ₽.
Светильники — 41 000 ₽.
Напольное покрытие в зоне кухни (натуральный мрамор + травертин) — 80 000 ₽.


Почему так дорого? Гарнитур изготавливался по индивидуальным чертежам; у него сложные резные элементы дверец, карниза, боковых фасадов. Кроме того, потребовалась многоэтапная окраска — цвета согласовывали с заказчицей по нескольким образцам выкрасов. Стоимость выросла также из-за столешницы, американских ручек и премиальной бытовой техники.

На чем экономили? Заказчица просила не экономить вообще: кухня расположена так, что ее видно со всех сторон. Поэтому у дизайнеров была задача сделать кухню функциональным элементом авторского дизайна и украшением.
Кухни за 500–600 тысяч — сравним четыре проектаСоловьева Татьяна
ИТОГО: КУХНЯ ЗА 600 000 ₽

► Это кухня большого погонажа (4,56 п.м). Помимо нижнего ряда шкафов, в проекте обязательно присутствуют верхние закрытые секции, колонны для встраивания техники и/или остров.

Материалы каркаса и фасадов те же, что и в экономичном, и в среднем сегментах — ДСП, МДФ, с пластиком или под покраску, в шпоне. Цена объясняется, скорее, количеством секций, а не премиум-материалами.

Страна производства гарнитура если и повышает стоимость, то не критично. В нашей подборке за одинаковую цену есть гарнитуры европейского и отечественного производства (фабричные и «столярка» на заказ).
ВО ЧТО ВКЛАДЫВАЮТСЯ

Смеситель, мойка, ручки, петли — премиальные: Европа или США.
Бытовая техника и аксессуары: премиум-сегмента.
Столешница — всегда искусственный или натуральный камень (до 25% от стоимости кухни). Столешницу принято считать отдельно от сметы на кухню, ведь ее делают уже не в кухонном салоне.
На отделку кухни уходит еще одна-две цены гарнитура.

ОТ РЕДАКЦИИ…
Вы можете задать уточняющий вопрос непосредственно автору проекту. Для этого откройте понравившееся фото в полноэкранном режиме и прокрутите до кнопки «задать вопрос». Либо перейдите в профиль дизайнера по ссылке с его имени

Комментарии 21

Честно на свою цену не смотрится.
Красиво???? Гладкие шкафы без ручек, как такое может нравиться.
К стати, ещё один вариант, чтобы исправить без больших переделок по внешнему виду кухни: просто мойку перенести на место стиральной машины. для этого надо будет переделать только столешницу. Естественно стиральную машину из кухни надо удалять. А у высокого шкафа со встроенной техникой поставить "волшебный уголок" с дверцей шириной на 600 мм. Пользоваться такой кухней будет удобнее.

Оставьте комментарий

Смотреть похожие темы

Читать похожие статьи