logo

Houzz тур: Московский минимализм для пары из Петербурга

В кухне-гостиной девять окон, а на стенах сохранилась историческая кирпичная кладка

Евгения Назарова
Евгения Назарова

25 янв. 2021

Обновлено 15 апр. 2021

Постоянный автор Houzz, интерьерный журналист

Апартаменты с видом на одну из старых улиц Москвы расположены в особняке начала XX века и принадлежат семье из Петербурга супругам, которые увлекаются кинематографом и философией. Архитекторы студии INT2architecture сохранили архитектуру и объём помещения с чётким ритмом балок перекрытия, исторической кирпичной кладкой и даже живописными подтёками раствора от заливки перекрытия, которые появились при реконструкции здания.
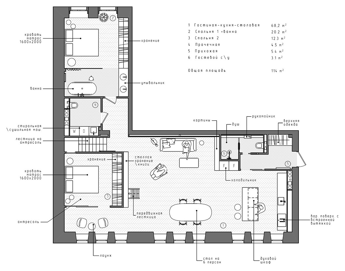
О проекте Место: Москва Размер: 114 кв.м, чистовая высота потолков в основном пространстве — 3,85 кв.м Кто здесь живёт: пара из Санкт-Петербурга Архитекторы проекта: Анастасия Шевелева, Александр Малинин, студия INT2architecture Интересный факт: все картины в интерьере — работы художника Сергея Архипова, отца хозяйки ——————————————— СПРОСИТЕ У АРХИТЕКТОРА НАПРЯМУЮ ► Есть уточняющие вопросы? Хотите заказать свой проект архитекторам этого интерьера? Свяжитесь с автором проекта в один клик ———————————————
Планировка апартаментов Апартаменты сдавались со свободной планировкой — без внутренних перегородок. Это была большая квартира Г-образной формы с девятью окнами в главном помещении. О сновной задачей архитекторов было подчеркнуть впечатляющие исходные данные, разместив все необходимые функциональные зоны: прихожую, кухню, столовую, гостиную, спальню, два санузла и в идеале — ещё и гостевую комнату.
Решением стало создание двух субпространств — боксов, не доходящих до потолка. В одном из них расположили гостевую спальню с кладовой, антресоль на крыше и библиотеку; в другом — прихожую, санузел и часть кухни. Вокруг боксов распределили остальные зоны.
ГОСТИНАЯ На внешних стенах апартаментов сохранилась историческая кирпичная кладка. Поверхность, как и бетонный потолок с подтёками раствора, выкрасили в белый цвет. Для пола использовали укрупнённый английский паркет из дуба. Вдоль окон предусмотрели минималистичную обивку стены — переосмысленные стеновые панели вайнскот (или буазери).
Диван Cloud, Bolia; кресло Neva Lounge Trimmed, Artisan За диваном в гостиной эта минималистичная отделка превращается в классические стеновые панели.
В кухне-столовой: обеденный стол LUC Oval Table и стулья WU Chair от Artisan; барные стулья Form Barstool, Normann Copenhagen; радиаторы Instal Projekt; встроенные шкафы, кухня, остров и отделка боксов изготовлены в компании « Твой Цехъ » по эскизам авторов проекта Основную линию кухни дополнили островом со стойкой для завтраков.
Все картины для интерьера написал отец заказчицы, художник Сергей Архипов. В нише гостиной — его работы «Крест» и «Троица».
Идея и решение: высокий книжный шкаф, целиком занимающий стену одного из боксов, дополнили лестницей, которая скользит по треку — чтобы её подвинуть, требуется минимум физических усилий.
В гостевой спальне: кровать Talamo от Zanotta; прикроватные столики Wire и с ветильник в шкафу TR Bulb Table — Menu
ГОСТЕВАЯ СПАЛЬНЯ Вместо межкомнатных дверей в обоих боксах установили откатные перегородки с большой площадью остекления. Они создают звуковой барьер между входной зоной / спальней и общественной зоной апартаментов и пропускают свет, визуально расширяя небольшие пространства внутри боксов.
АНТРЕСОЛЬ Заказчики просили авторов проекта вписать в планировку квартиру гостевую спальню, а в итоге их получилось даже две. Вторую организовали на крыше бокса. В отсутствие гостей это пространство можно использовать для уединения или чтения книг.
Попасть на крышу бокса можно по удобной и безопасной деревянной лестнице.
Кровать Talamo от Zanotta; прикроватные столики Wire, настольный светильник JWDA Table Lamp — Menu СПАЛЬНЯ ХОЗЯЕВ От основного пространства апартаментов спальню отделяет приватный санузел с отдельностоящей ванной и зоной для умывания. Стеклянную перегородку, разделяющую спальню и ванную, при необходимости можно закрыть шторой и тем самым визуально изолировать помещения.
ГОСТЕВОЙ САНУЗЕЛ Для отделки стен использовали широкоформатный полированный керамогранит. Часть поверхностей облицевали геометричной мозаикой с тёмной затиркой, чтобы создать деликатный контраст. ——————————————— В ВАШЕМ ГОРОДЕ… ► Через Houzz можно нанять дизайнера или архитектора в любом городе и стране. Начать поиск специалиста ——————————————— У ВАС ЕСТЬ ДЛЯ НАС ПРОЕКТ… Загрузите съёмку в свой профиль на Houzz, отправьте ссылку с кратким описанием на editorial@flatica.ru Для справки: Какие объекты мы публикуем

Комментарии 27

Забавно. Глядя на эти табуреточки, тоненькие ножки, неустойчивые столики, прямоугольные узенькие диванчики, матрасик сиротский на полу, все такое отдельно стоящее( типа соблюдайте безопасную дистанцию) вспоминается цитата из сказки «Кошкин дом» когда курица приглашает кошку в гости «... вдвоем зерна мы с вами поклюем, а после на насесте подремлем с вами вместе.»:)
красиво. но как, интересно, вытирать пыль на блоке с прихожей и санузлом?
Интересный проект и нестандартный подход , хорошая квартира ,высокие потолки .Гостиная просторная зала , одно большое пространство и много света .Очень красивый паркет. Монохромность не портит , но я бы заменила светильники на кухне на крупные в индустриальном стиле и напольные лампы - софиты тоже в этом стиле , пару бы поставила .Помимо картин можно определенный сегмент стены завесить фото в рамках снизу до верху в урбанистическом стиле , ну что-то стильное , но тоже монохромное.

Оставьте комментарий

Читать похожие статьи