logo

Houzz тур: Белая квартира на Цветном

Кажется, теперь мы знаем, как выглядит рококо XXI века

Houzz Россия
Houzz Россия

10 мар. 2021

Обновлено 2 апр. 2021

Декоратор Катя Гердт и дизайнеры её мастерской создали в современном московском доме интерьер, похожий на парижский с историческим прошлым. Здесь есть винтажная мебель от эпохи mid-century до 1970-х, произведения искусства (копии литографий Пикассо и «наив»), ткани пудровых цветов в сочетании с акцентами яркого синего, пышные дворцовые хрустальные люстры XIX века и прямая архитектурная цитата — реплика с оригинала французской лепнины 1906 года. Самым первым предметом для этой квартиры, найденным ещё до начала работы над проектом, стала винтажная китайская ширма, расписанная вручную и инкрустированная мыльным камнем — её поставили в спальню хозяйки дома.
Houzz тур: Белая квартира на ЦветномМастерская Кати Гердт
О проекте
Место: квартира в жилом комплексе в Москве
Размер: 175 кв.м
Год: 2019
Кто здесь живёт: молодая пара
Авторы проекта: декоратор Катя Гердт, «Мастерская Кати Гердт», Анна Чикурова, Мария Рябинина, Михаил Давид; архитектор Алексей Иванов
Фото: Сергей Ананьев

———————–
СПРОСИТЕ У ДИЗАЙНЕРА НАПРЯМУЮ

Есть уточняющие вопросы? Хотите заказать свой проект дизайнеру этого интерьера? Свяжитесь с автором проекта в один клик
———————–
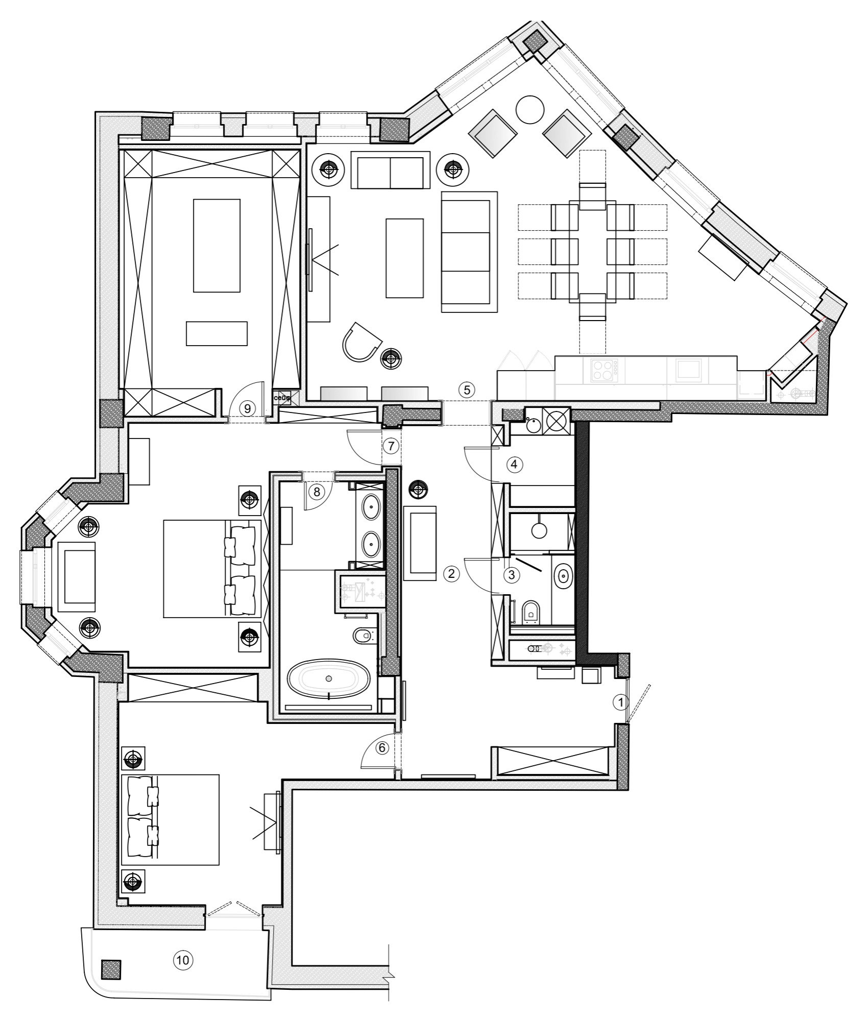
Планировка квартиры

Дом, в котором расположена квартира, — совсем новый, его архитектура далека от классики и симметрии. Поэтому найти планировочное решение было непросто. От начала работы над проектом до въезда хозяев в новое жильё прошло два года.
Houzz тур: Белая квартира на ЦветномЯна Иванченко
В холле: диван — салон «Краски»; антикварное зеркало и вазы дельфтского фарфора — «Мастерская Кати Гердт»

ХОЛЛ
В холле, выложенном мрамором, стоит диванчик-козетка в розовой обивке. Его цвет — почти как «розовый Помпадур» знаменитого Севрского фарфора, только нежнее. Для настоящего фарфора, как во дворцах эпохи рококо, здесь тоже нашлось место: две вазы дельфтского фарфора со знаменитой росписью кобальтом приютились за козеткой.

Благодаря сочетанию материалов и вещей, говорящих языком высокого стиля, входящего в квартиру встречает не заносчиво-молодёжный бобо — bourgeois bohemian (буржуазно-богемный), а настоящий аристократический стиль. Своего рода рококо XXI века — с его лёгкостью жизни, культом вечной юности, типичным увлечением шинуазри («китайщиной») и «галантными празднествами» аристократии в сопровождении играющих музыкантов.
Houzz тур: Белая квартира на ЦветномМастерская Кати Гердт
Но от навязчивого пафоса исторической стилизации Катя отказалась сразу. Картина с тремя музицирующими под клавесин девушками, найденная в одной из бельгийских галерей, куплена, по словам дизайнера, не за особую художественную ценность, а за очарование: «Я влюбилась в картину Сюзанн де Фуар (Suzanne De Foire), найденную в Брюсселе. Поняла, что наивность и очарование этой работы замечательно “поженятся” с остросовременными предметами в квартире».
Houzz тур: Белая квартира на ЦветномЯна Иванченко
КУХНЯ-ГОСТИНАЯ
«Этой квартире не досталось ничего из прошлой жизни хозяйки, но заказчица сама выбрала сюда несколько литографий Пикассо, — поясняет Катя. — Хозяйка квартиры — молодая успешная бизнес-леди, знаток и ценитель fashion».
Houzz тур: Белая квартира на ЦветномЯна Иванченко
По просьбе владелицы для гостиной выбрали большой диван — он отделил зону отдыха от обеденной и кухни. Непринуждённую атмосферу создали винтажными вещами. Небольшой диван культового датского дизайнера 1960-х Ханса Вегнера (Hans Wegner, 19142007) окружили настольными лампами Пьеро Форназетти (19131988). Напротив дивана поставили американские винтажные комоды с разной графикой фанерованных фасадов. Белые стены украсили гравюрами из коллекции хозяйки дома, добавив к ним небольшое полотно из художественной галереи Кати Гердт Gerdt Gallery — картину «Сидящая женщина» Галины Эдельман.
Houzz тур: Белая квартира на ЦветномМастерская Кати Гердт
Между заказчицей и дизайнером сразу установилось взаимопонимание, и проект они видели одинаково. В процессе работы было только одно расхождение: хозяйка хотела, чтобы межкомнатные двери были со сложным резным орнаментом. «А я сомневалась, что в наших условиях мы сможем получить достойный результат и что подобного рода вещь не будет выглядеть китчем», — рассказывает дизайнер. В итоге Катя смогла убедить заказчицу остановиться на сдержанном решении дверных филёнок.

В отделке квартиры использовали только натуральные материалы: дерево, мрамор, гипсовую лепнину. «Необходимо было чутко соблюсти достоверность, пройти по тонкой грани, чтобы не свалиться в новодел. И в этом случае подлинные материалы и точные реплики играют неоценимую роль», — поясняет автор проекта.
Houzz тур: Белая квартира на ЦветномЯна Иванченко
Обратите внимание: вентиляционные решётки закрыты сделанной на заказ лепниной. По словам Кати, современное жильё требует использования новых технологий, и эта квартира не исключение: «Пришлось искать решение для организации в доме системы кондиционирования и вентиляции, элементов “умного дома” — так, чтобы это не испортило заданный стиль».

Понижать потолки ради установки кондиционерных блоков решили только в технических помещениях. В комнатах же вентиляцию замаскировали лепниной с прорезями. Найденное техническое решение одновременно стало декоративной деталью, отсылающей к остромодным в середине XVIII века косым сеткам-трельяжам — элементу, характерному для эпохи рококо.
Houzz тур: Белая квартира на ЦветномМастерская Кати Гердт
В гостиной: белый диван Flexform; диван цвета меланж Hans Wegner; тумба под ТВ Cazarin a Interiors сделана по авторскому эскизу; журнальный столик Les Herities; кресло 1970-х, лампы Fornasetti, синие кресла — винтаж, «Мастерская Кати Гердт»; ковёр Dovlet House; ткань штор Loro Piana, салон «Краски»; картина «Сидящая женщина», автор Галина Эдельман, Gerdt Gallery
Houzz тур: Белая квартира на ЦветномМастерская Кати Гердт
В зоне кухни: обеденный стол Tanami, Triss; стулья, Gubi; парные антикварные люстры XIX века и комод в стиле шинуазри — винтаж, «Мастерская Кати Гердт»; бокалы Baccarat

Роскошные парадные антикварные люстры обозначили центр кухни-гостиной — обеденную зону. При таком соседстве кухню выбрали максимально нейтральную, с гладкими фасадами, сочетающимися по цвету с обивкой обеденных стульев.

В противовес современным фасадам кухни в простенке между окнами появился винтажный комод, выполненный в стиле шинуазри. Чёрный лак и перламутровая инкрустация его фасадов ещё раз подчеркнули рокайльную линию в отделке помещения.
Houzz тур: Белая квартира на ЦветномМастерская Кати Гердт
В мужской спальне: все предметы — салон «Краски»

МУЖСКАЯ СПАЛЬНЯ
От галантной рокайльности и модного винтажа 1960-х, использованных в оформлении кухни-гостиной, в интерьере мужской спальни осталась лишь стилистика 19601970-х. В духе винтажа из тех времён — стена в изголовье кровати, отделанная деревянными панелями: разные оттенки элементов панно создают динамичный рисунок. Цветовая гамма пространства продолжает колорит гостиной, но в более мягких, спокойных оттенках.
Houzz тур: Белая квартира на ЦветномМастерская Кати Гердт
ЖЕНСКАЯ СПАЛЬНЯ
Поверхность стен комнаты украшают изящные филёнки с рокайльными завитками. Мягкий пудровый цвет стен делает комнату настоящим французским будуаром.

Чтобы избежать парадной помпезности эклектики, кровать выбрали нейтральную, современной формы, с простым мягким изголовьем. С обеих сторон от изголовья поместили чёрные тумбочки, которые не отвлекают от главного украшения спальни — редкой китайской ширмы 1950 годов: она состоит из восьми створок, украшенных ручной росписью и инкрустированных мыльным камнем.
Houzz тур: Белая квартира на ЦветномЯна Иванченко
Проблема и решение: для своей спальни хозяйка попросила найти оригинал её любимой фотографии — обнажённой Наоми Кэмпбелл с пистолетом в руке. Она хотела увеличить кадр до большого размера без потери качества. Однако выполнить просьбу заказчицы неожиданно оказалось очень сложно. В конце концов фотография была найдена у коллекционера в Париже, и мечта хозяйки осуществилась.
Houzz тур: Белая квартира на ЦветномМастерская Кати Гердт
В спальне: винтажная ширма «Мастерская Кати Гердт»; кровать B&B, прикроватные тумбы, подвесные светильники салон «Краски»
ВАННАЯ ХОЗЯЙКИ
В ванной комнате при спальне владелицы повторили деликатный рисунок филёнок на стенах, но полностью убрали цвет. Остались только графика выразительных линий в сочетании с позолоченной рамой французского антикварного зеркала, хрусталь винтажных светильников с подвесками, найденных «Мастерской Кати Гердт» для этого интерьера, и ванна ультрасовременной формы.

«Этот проект — один из тех редких случаев, когда в жизни удалось воспроизвести 3D-картинку на сто процентов», — отмечает дизайнер.

———————————————
В ВАШЕМ ГОРОДЕ…
Через Houzz можно нанять дизайнера или архитектора в любом городе и стране. Начать поиск специалиста
———————————————

У ВАС ЕСТЬ ДЛЯ НАС ПРОЕКТ…
Загрузите съёмку в свой профиль на Houzz, отправьте ссылку с кратким описанием на editorial@flatica.ru

Для справки: Какие объекты мы публикуем

Комментарии 36

Редактировать опечатки не дает :(
Красиво. Столовая группа хорошо сочетается с люстрами и компенсирует »помпезность». розовый диванчик в холле озадачил - и идеей и качеством исполнения. наверное, он и настоящий, и к зеркалу, но...
Ооооочень классно, мечта!

Оставьте комментарий

Читать похожие статьи