
30 мая 2019
Обновлено 15 июля 2019
Постоянный автор Houzz, интерьерный журналист
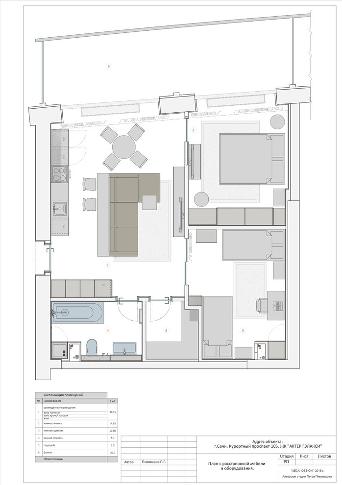
Автор проекта: Петр Пивоваров, фотограф: Павел Коваленко. . . "И контрасты, и нюансы". . . Апартаменты жилой площадью 72.5 м2 расположены в ЖК «Актер Гелакси» и предназначены для периодического проживания семьи: родителей и мальчиков-близнецов. Поэтому состав помещений должен был быть такой: комната для мальчиков, комната для родителей, ванная, гардероб и общее помещение. . . Пространство должно быть одновременно функциональным и уютным. Также в помещениях должны быть предусмотрены места хранения. Клиент захотел во всей квартире пол из инженерной состаренной доски, в темных оттенках и приглушенные успокаивающие цвета в комнате для мальчиков, так как они активные. Получалось некое противоречие, с одной стороны, заказчику нравятся темные оттенки, но он хотел получить светлый воздушный интерьер. Еще ему нравилось контрастное сочетание различных материалов. Выбрали золотую середину. . . У архитектуры помещений свободной планировки в этом ЖК – свои нюансы. Одна сторона имеет общий фронт модулей панорамных окон, разделенных на две части простенком. Этот простенок дает возможность планировать пространство по помещениям. У каждой части панорамных окон есть раздвижной модуль, с выходом на террасу. Инженерные коммуникации находятся на противоположной стене от панорамных окон. . . Особенность конфигурации помещения продиктовала архитектурно-планировочное решение и расположение материалов на стенах и композиционные оси. Центральное помещение – с совмещением функциональных зон. По левую сторону – зона кухни, она отделена от мягкой зоны столешницей и формирует основную центральную композицию помещения. Стена за кухней покрыта декоративным материалом с текстурой штукатурки. Цвет штукатурки соответствует цвету основных стен. Фартук кухни – из закаленного стекла. Основное хранение и бытовая техника расположены в нижних базах. Обеденная группа находится у панорамного окна, на пересечении двух осей – гостиной и комнаты хозяев. Сидя за столом, можно наблюдать всю квартиру со стороны. Правая сторона (от входа в квартиру и прихожей до двери в детскую комнату) – еще одна композиционная ось, некая транзитная зона, с входами в ванную комнату и гардероб. Стена, отделяющая эти помещения от гостиной, облицована панелями мдф. Двери, проемы и встроенный гардеробный шкаф выполнены в этом же материале и интегрированы в общую композицию. . . Центральная стена отделяет общее помещение от спален. С левой стороны - вход в комнату хозяев. С правой - вход в детскую комнату. В связи с тем, что детская комната осталась без окна, дверь сделали раздвижную из двух полотен, в матовом стекле на металлокаркасе. А дверь в комнату хозяев - с одним раздвижным полотном, выкрашенным в цвет стены. Двери на скрытых подвесах подчёркивают чистоту формы, а высота ограничена только потолком. . . Каждое помещение имеет разное естественное освещение и свои характеристики, поэтому разные комнаты решались по цвету и свету по-своему. Сам свет играет первостепенную роль, он может как подчеркнуть используемые материалы, так и испортить все. Получилось воплотить в жизнь сложные решения по цветовому оформлению этого интерьера. У комнаты хозяев основные стены и встроенная мебель имеют светло-серый цвет и хорошее естественное освещение, создают воздушность, а акцент в виде глубокого изумрудного цвета стены и контрастного желтого изголовья кровати придают яркости. Зонированное искусственное освещение можно применять уже вечером, это только подчеркнет уют. Детская комната выполнена в приглушенной цветовой гамме. Стены выкрашены двумя сближенными оттенками, которые подчеркивают зонирование комнаты. Цветовыми акцентами выступают декор, текстиль, мебель, выполненная из разных материалов. Основное освещение – искусственное, размещено по зонам. Нижний свет -теплый, верхний - белый. Гостиная оформлена больше по принципу нюансов, она будто собирает все помещения в единое целое: в ней использованы более мягкие оттенки, много фактур и акцентами - декор. . . У комнат появилась своя атмосфера и индивидуальность. А двери, как порталы, проводники в другое пространство, они также связаны с видовыми точками, через которые можно почувствовать многоплановость и тепло - холодность. . . Детали . Вся мебель, включая диван, обеденный стол, тумбы, комоды, журнальные столы, кухню, встроенные шкафы, кроме стульев и кроватей в комнатах, выполнена по эскизам дизайнера и произведена мастерскими в городе Сочи. . . Все знают, какой порой непростой путь нужно пройти, чтобы красивая картинка на компьютере воплотилась в столь же эффектный интерьер. И только благодаря слаженной работе и заинтересованности всех причастных к его реализации удается достичь такого результата. Мы решили поделиться некоторыми секретами, как сохранить баланс красоты, задуманной дизайнером интерьера, функциональности и практичности – то, чего заказчики ожидают от мебели. Несмотря на обманчивую простоту и лаконичность форм такой мебели, наиболее важные элементы – сложные конструктивные решения, хорошие материалы и качественное покрытие. А различные детали, например, фрезерованные ручки в виде бабочек, фаски придают элегантности чистым формам и проходят красной линией по всем помещениям, связывая весь интерьер в единое целое. . . 1. Прихожая . Из-за множества задач, возложенных на шкаф в прихожей, внутреннее наполнение в нем менялось несколько раз. Довольно быстро был выбран самый оптимальный вариант: изначально разместившаяся в шкафу стиральная машинка «переехала» на кухню, а удобный, вместительный холодильник – наоборот разместился в этом шкафу. И, тем не менее, осталось место и для верхней одежды, и для полок, и для обувницы. А фасады, как и планировалось, стали продолжением панелей на стене и дверей в гардероб и ванную. . . 2. Кухня . Проектирование кухни зачастую превращается из творческого процесса в процесс поиска технических решений и компромиссов. Для сохранения эргономики и правильного функционирования всех механизмов необходимо учесть множество условий. В данном случае при большом количестве техники удалось совместить четкий размерный ряд и достаточное количество мест хранения. В нижних тумбах это ящики, так как ими намного удобнее пользоваться. Неотъемлемым нюансом кухни стали скошенный торец с фаской, на кварцевой столешнице и фрезерованные ручки на фасадах. За счет этих элементов кухня приобрела характер. . . 3. Детская . В детской тоже не обошлось без секретов и сюрпризов: видите вентиляционную шахту, проходящую почти по центру комнаты от пола до потолка? . Спасибо мастерам-отделочникам за четкую геометрию стен и углов, благодаря этому шкаф и панели на коробе вент шахты смотрятся одним цельным шкафом. . Над конструкцией стеллажа с полками за диваном тоже пришлось потрудиться, чтобы сохранить легкость конструкции без лишних крепежей и сохранить идеальное примыкание к стенам и потолку. А сбоку от дивана теперь не полки, а ящики для рисовальных принадлежностей. . . . Несмотря на сложность, квартира получилась как единая композиция со своими уровнями. Каждый материал, его цвет и фактура подчеркивают друг друга и находятся на своем месте. Очень важную роль играют декор, текстиль, свет. .