logo

Есть решение: 9 проектов кухни 12 кв.м

Кухни такого размера встречаются и в типовых панельках, и в сталинских кирпичных домах, и в монолитных новостройках

Houzz Россия
Houzz Россия

11 февр. 2019

Обновлено 24 мар. 2019

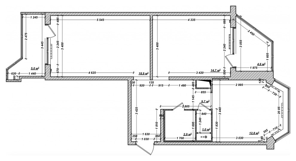
1. Кухня с эркером в П-44Т

Авторы проекта: Сергей Бахарев, Дмитрий Жигалев, студия «Однушечка»
Место: Москва
Размер: кухня 12,8 кв.м с эркером
Фото: Евгений Кулибаба

До ремонта с левой стороны здесь стояла угловая кухня, справа от входа — тумбочки и холодильник. Владельцы просили дизайнеров сделать больше мест для хранения и полноценную рабочую поверхность для готовки, которых на прежней кухне не хватало. Еще семья хотела стол, за которым можно разместить не меньше шести человек, место для хранения бутылок и телевизор.

Обратите внимание: Необычное решение в этом проекте — система хранения на фартуке кухни (на фото). Вместо обычного варианта сделали нишу с полками, облицованными черным мрамором с белыми прожилками. В двух мраморных полочках с отсеками хранятся специи.
Расположение мебели подчиняется правилу функционального треугольника, делая готовку удобной и оставляя свободной зону столовой. Кухонные модули выстроили по двум стенам, организовав вдоль одной стены зону кухни, а вдоль другой — столовой. Дизайнерам удалось увеличить объем систем хранения и площадь рабочей поверхности, которая практически сливается с подоконником.
Есть решение: 9 проектов кухни 12 кв.мЕлена Игумнова
Планировка квартиры в доме П-44Т с кухней 12 кв.м

Рабочая часть кухни расположилась вдоль левой стены. Справа от входа разместили столовую зону со встроенным холодильником, открытым винным шкафом, витриной для бокалов и праздничной посуды и нишей для телевизора. Чтобы не отнимать необходимое пространство, при входе на кухню установили раздвижную перегородку из черного стекла.
Идея и решение: У стола есть два варианта расположения: повседневный и праздничный. Стол на опоре с войлочными наклейками легко передвинуть даже одному человеку. Чтобы сэкономить пространство, во время обедов вчетвером торец стола задвигается в отделанную мрамором нишу. К приходу гостей стол передвигают в центр кухни. На этот случай в нижнем шкафчике в столовой части наготове складные табуреты (на фото).
Кухонная мебель «Кухонный двор»; варочная панель, вытяжка, духовой шкаф и посудомойка Gorenje; фартук из мрамора Nero Marquino, «Мрамор.ру»; столешница из искусственного камня Staron, «ЕвроЛюкс»; электрооборудование из колл. Stark, Werkel; мойка, смеситель и дозатор для мыла OMOIKIRI

СМОТРИТЕ ТАКЖЕ…
Больше фото этой кухни в профиле дизайнеров
Кухни в современном стиле
Есть решение: 9 проектов кухни 12 кв.мЮлия Кирпичева
2. Кухня с двумя морозилками и сушками для посуды

Автор проекта: Юлия Кирпичева
Место: Москва
Размер: 12 кв.м, проект реализован в рамках передачи «Квартирный вопрос»

До ремонта на кухне 12 кв. метров была серьезная проблема с хранением и местом для готовки. Старый комплект был изготовлен и расставлен так, что техника и кухонные мелочи занимали почти все рабочие поверхности, не оставляя места для приготовления еды, а на полках мало что помещалось. На кухне не было вытяжки, и владельцы пользовались маленьким холодильником с компактной морозилкой. Стол тоже был небольшим, и вся семья за ним едва помещалась. К тому же в помещении было два окна разной высоты: одно, расположенное напротив входа, было низким, и в семье с двумя детьми этот опасный момент нужно было корректировать.
Есть решение: 9 проектов кухни 12 кв.мЮлия Кирпичева
Планировка кухни 12 кв. м.

Владельцы попросили дизайнера сохранить мойку у окна и переделать кухню так, чтобы в ней можно было принимать гостей.

После ремонта на кухне удалось разместить полноценный холодильник с вместительной морозилкой на три отсека, посудомойку, встроенную вытяжку, варочную панель и духовку, измельчитель кухонных отходов, мойку с двумя чашами и дополнительную морозильную камеру.
Есть решение: 9 проектов кухни 12 кв.мЮлия Кирпичева
Юлия спланировала кухонный комплект почти по всем сторонам пространства: основную часть дизайнер расположила по стене с двумя окнами, увеличив рабочую площадь столешницы более чем на два метра. Это решение позволило скорректировать высоту окон — зрительно они стали одинаковыми.
В столовой части поставили диван, высоту которого рассчитали под размеры раскладного обеденного стола.
Есть решение: 9 проектов кухни 12 кв.мЮлия Кирпичева
Кухонные шкафы выбрали в белом варианте: за счет их фактуры от дверец хорошо отражается дневной свет. В качестве акцентов подобрали работы американского художника поп-арта Роя Лихтенштейна: изображения напечатаны на плитке, а над столом висит постер с одной из работ художника.
Есть решение: 9 проектов кухни 12 кв.мЮлия Кирпичева
Мест для хранения стало ощутимо больше: выдвижной уголок для хранения овощей и фруктов (до ремонта кухни это был мертвый угол, куда сложно было подлезть), выдвижные ящики для хранения посуды и кастрюль, две сушилки для посуды — для повседневного пользования и дополнительная для тарелок и чашек, которые достают не так часто. Нашлось место и для выдвижной бутылочницы, где хозяйка хранит масло и крупы.

СМОТРИТЕ ТАКЖЕ…
Больше фото кухни и других интерьеров из этого проекта — в профиле дизайнера
Есть решение: 9 проектов кухни 12 кв.мМаксим Лагутин
3. Кухня со складной столешницей и кладовкой

Автор проекта: Максим Лагутин
Место: Москва
Размер: 12 кв.м

Планировка кухни 12 кв.м в этом проекте оказалась довольно сложным делом. Помещение кухни примыкает к несущей стене: раньше здесь были окно во двор и проход в ванную (до того как пристроили большую лоджию на все этажи дома). После демонтажа перегородок в несущей стене обнаружились высокие проемы, во время ремонта их превратили в ниши под холодильник и другое оборудование. Небольшой шкаф для хранения посуды спрятался за картиной в стене между кухней и гардеробной комнатой. Принт с джунглями помогает зрительно расширить пространство кухни.
Есть решение: 9 проектов кухни 12 кв.мМаксим Лагутин
Планировка квартиры

Если посмотреть на план квартиры, видно, что кухня расположена близко ко входу. В этой части нужно было разместить гостевой санузел и постирочную (заказчица не хотела, чтобы стиральная и сушильная машины стояли на кухне или в зоне спальни). Для этого архитектор выдвинул кухню вперед, а узкое пространство за ней стало хозяйственным помещением.
Есть решение: 9 проектов кухни 12 кв.мМаксим Лагутин
Дверь в постирочную максимально сдвинули в сторону, чтобы рабочая поверхности была достаточного размера. Изначально Максим Лагутин планировал поставить на месте двери небольшой стол на колесиках и отодвигать его в случае необходимости. Идея с откидной столешницей заказчице понравилась больше, так рядом с плитой появилось дополнительное место для готовки. И этот узел оказался самым сложным в изготовлении.

Столешница с интегрированной мойкой и фартук сделаны на заказ из нержавеющей стали. Стальные пластины приклеены даже на дверное полотно, в закрытом виде оно становится незаметным.
Есть решение: 9 проектов кухни 12 кв.мМаксим Лагутин
На фото: дизайн кухни 12 кв.м со сложенной столешницей
Есть решение: 9 проектов кухни 12 кв.мМаксим Лагутин
Кухонная мебель Marchi Group; поставка, сборка и изготовление штучных изделий «Интерьерное ателье Umago»

Стиль кухни подобран под общую концепцию квартиры — в духе Mid-Century 19501960 годов.

СМОТРИТЕ ТАКЖЕ…
Больше фото кухни из этого проекта — в профиле дизайнера
Есть решение: 9 проектов кухни 12 кв.мСтудия "Инстильер"
4. Кухня с перегородкой из реек
Автор проекта:
Юлия Шаталова, дизайн-студия «Инстильер»
Размер: 12,6 кв.м

Владельцы попросили дизайнера создать интерьер кухни 12 кв.м для жизни «без радикализма». Супругам нравились древесные фактуры и насыщенные коричневые тона, а самые строгие требования они предъявили к напольным покрытиям: с ними живет крупный лабрадор.
Есть решение: 9 проектов кухни 12 кв.мСтудия "Инстильер"
Планировка квартиры

Площадь кухни составляет 12,6 кв.м, здесь удалось организовать П-образный кухонный комплект. Так дизайнеры исполнили пожелание хозяйки: чтобы под рукой было много мест хранения для кухонной посуды и утвари.

При такой конфигурации кухни подоконник стал продолжением рабочей поверхности. В нем предусмотрели отверстия для выхода теплого воздуха от радиатора отопления, который расположен под окном.
Есть решение: 9 проектов кухни 12 кв.мСтудия "Инстильер"
На чем сэкономили: Кухню и гостиную разделяет перегородка из вертикальных деревянных ламелей. «Чтобы снизить стоимость монтажа, мы закрепили рейки в направляющих на потолке и на полу — решение, конструктивно схожее с системой открытых стеллажей, — рассказывает дизайнер. — При этом крепления не влияют на эстетические характеристики перегородки».
Есть решение: 9 проектов кухни 12 кв.мСтудия "Инстильер"
Кухонная мебель «Стильные кухни»; потолочный светильник Flos

СМОТРИТЕ ТАКЖЕ…
Больше фото кухни и других интерьеров из этого проекта — в профиле дизайнера
Есть решение: 9 проектов кухни 12 кв.мMaria Mikena
5. Кухня с двумя холодильниками, где вернули на место дверь

Автор проекта:
Мария Микена
Место: Москва
Размер: 12 кв.м

Заказчики жили в этой квартире почти 10 лет, и вход на кухню был только из гостиной. Во врем предыдущего ремонта кухни 12 кв.м проем из прихожей был заложен, а получившееся пространство использовали для увеличения числа кухонных шкафов. Пожив в такой планировке, владельцы поняли, что она им не подходит. Им не нравилось, что фактически «протопталась» тропа между диваном и телевизором в гостиной.
Есть решение: 9 проектов кухни 12 кв.мMaria Mikena
Планировка квартиры

Первым делом дизайнер Мария Микена вернула дверь на законное место. И из прихожей снова можно попасть в кухню, как и предполагается нормами. Из гостиной на кухню тоже установили двустворчатые двери, при необходимости их можно открыть и объединить помещения. Балкон к кухне присоединять не стали, заказчики не хотели ввязываться в долгий и затратный процесс по согласованию.
Есть решение: 9 проектов кухни 12 кв.мMaria Mikena
Кухонная мебель изготовлена в компании «Атрибутэ»

Кухне не только вернули дверь, но и фактически увеличили полезную площадь. Пространство разделили на две части: с одной стороны поставили угловой комплект с основной рабочей поверхностью, с другой — «стенку» с двумя встроенными холодильниками и бытовой техникой.

Чтобы «растворить» кухню, сделать ее зрительно менее массивной, дизайнер обыграла высокий выступающий торец шкафа, который виден при входе из гостиной, — его отделали панелями в цвет двери.
Есть решение: 9 проектов кухни 12 кв.мMaria Mikena
Стол изготовлен по эскизам дизайнера в компании «Столлаб»; винтажные стулья; люстра Visual Comfort

В отделке пола и фартука использовали натуральный камень, столешница выполнена из натурального кварцита, который прекрасно подходит для кухни.

Стулья авторства Ико (Доменико) Паризи долго искали по Европе, дизайнер и заказчики хотели именно эту модель. В результате винтажные стулья нашли, привезли в Москву и перетянули новой тканью.

Люстра из латуни и хрусталя хорошо освещает обеденную часть и рабочую зону.

СМОТРИТЕ ТАКЖЕ…
Больше фото кухни и других интерьеров из этого проекта — в профиле дизайнера
Есть решение: 9 проектов кухни 12 кв.м Марина
6. Кухня в две линии

Авторы проекта: Ника Воротынцева, Татьяна Сауляк, дизайн-бюро Ники Воротынцевой
Место: Киев, Украина
Размер: кухня 12 кв.м

Из-за того, что квартира находится в панельном доме, дизайнеры не смогли создать единое пространство кухни и гостиной. Обеденный стол с фанерной столешницей, металлической рамой и деревянными ножками сделали на заказ. В качестве освещения использовали накладные модели Nowodvorski современный мужской интерьер решили не перегружать подвесными светильниками.
Планировка квартиры

Дизайн квадратной кухни 12 кв.м разработали с учетом расположения на кухни столовой части. Кухонные шкафы расположили в две параллельные линии.
Есть решение: 9 проектов кухни 12 кв.м Марина
Кухня изготовлена на заказ из МДФ и ДСП
Есть решение: 9 проектов кухни 12 кв.м Марина
Обеденную зону вынесли к окну, а в качестве посадочных мест предусмотрели не только стулья, но и банкетку. Она стала органичным продолжением кухонного гарнитура. Над банкеткой разместили высокую открытую полку.

СМОТРИТЕ ТАКЖЕ…
Больше фото кухни и других интерьеров из этого проекта — в профиле дизайнера
7. Кухня с балконом

Автор проекта: Мария Единая
Место: Санкт-Петербург
Размер: вытянутая кухня 12 кв.м

Заказчица купила эту квартиру в подарок маме. Основная сложность разработки проекта кухни, да и всей квартиры, заключалась в неправильной трапециевидной форме пространства. Например, на кухне был всего один прямой угол, кроме того, планированию мешал довольно большой вынос вентшахты, отнимавший метры. Вопрос об объединении кухни и гостиной сразу отпал: к маме часто приезжают в гости внуки и родственники, гостиная должна была остаться изолированной.

Но эта кухня 12 кв.м в квартире неправильной формы обладала и достоинствами. Например, высота потолка здесь — три метра, а из кухни есть выход на огромный балкон: его утеплили, организовав там рабочее место будущей владелицы, которая увлекается шитьем.
Дизайн кухни 12 кв.м с балконом обыгрывает трапециевидную форму пространства

После долгих обсуждений с заказчицей утвердили вариант планировки. Кухонные шкафы расположили буквой Z вдоль левой стены: там находятся зона готовки, посудомоечная машина, варочная панель. Завершается композиция буфетом. Справа от входа встала колонна со встроенным холодильником и духовым шкафом.
Напольная плитка Kerama Marazzi; краска для стен Tikkurila; фартук из керамогранита Italon; стулья Raroom; кухня «Первая мебельная фабрика»

Чтобы сэкономить место и бюджет, дизайнер предложила сделать вместо двери высокую арку. Геометричный рисунок керамогранита на полу отвлекает на себя внимание от непараллельных стен.

Стены выкрасили в пудровый оттенок, совпадающий по тону с цветом фасадов. Фартук выложили крупноформатным керамогранитом, хорошо оттеняющим фасады.
Обеденный стол — винтажный, с блошиного рынка, над ним повесили люстру, купленную на распродаже. На стене — картина Антонины Володченко «Утро Коломбины».

На чем сэкономили: Бюджет был небольшим, поэтому многие детали искали в местных магазинах. Например, плитка и мебель — отечественного производства, а шторы дизайнер сшила из готовых портьер ИКЕА, немного их доработав.

СМОТРИТЕ ТАКЖЕ…
Больше фото кухни и других интерьеров из этого проекта — в профиле дизайнера
Есть решение: 9 проектов кухни 12 кв.мЛидия Новикова
8. Кухня со спрятанной несущей колонной

Место: Московская область
Автор проекта: Лидия Новикова
Фото: Константин Малюта

Главной проблемой этого таунхауса была его трапециевидная форма и наличие несущей колонны почти в центре первого этажа. Соседи хозяев по поселку оставляли эту колонну видимой в центре, не желая уменьшать пространство. Но в этом проекте ее спрятали в кухонную перегородку, которая образовала две кухонные зоны: рабочую и подсобную.
Есть решение: 9 проектов кухни 12 кв.мЕлена Игумнова
Планировка кухни 12 кв.м в таунхаусе

В дальнюю часть кухни вынесли системы хранения, включая холодильник, а открытый участок поделили между основной линией и небольшим островом, прикрытым барной стойкой. Благодаря белому цвету фасадов и лаконичному дизайну кухня не привлекает внимания и не создает навязчивых ассоциаций с готовкой.
Есть решение: 9 проектов кухни 12 кв.мЛидия Новикова
Стеллаж и стулья Archpole

На что потратились / на чем сэкономили: Лидия рассказывает, что сэкономили на кухонной мебели российского производства, но не стали экономить на камне для столешницы и фартука.
Есть решение: 9 проектов кухни 12 кв.мЛидия Новикова
СМОТРИТЕ ТАКЖЕ…
Больше фото кухни и других интерьеров из этого проекта — в профиле дизайнера
Есть решение: 9 проектов кухни 12 кв.мОльга Рудакова
9. Проходная кухня с холодильником в коридоре

Автор проекта: дизайнер Ольга С. Рудакова, архитектор Ольга М. Рудакова
Место: Москва
Размер: 12 кв.м
Планировка квартиры с холодильником в нише

На этапе планирования было важно разместить комнаты так, чтобы в каждой было окно. Владельцы просили сделать две детские, спальню и гостиную — все окна ушли на эти интерьеры, а кухня стала небольшой, без окна. Заказчикам это подходило: они мало готовят, в основном разогревают еду, поэтому были готовы к компактной проходной кухне.
Есть решение: 9 проектов кухни 12 кв.мОльга Рудакова
Хозяева просили сделать большой стол с интересной текстурной поверхностью. Рядом со столом поставили небольшой шкаф. Он выполняет не только функцию хранения, но и сглаживает угол, который сложился из-за установки новых стен для детской.
Есть решение: 9 проектов кухни 12 кв.мОльга Рудакова
На чем сэкономили / на что потратились: Сэкономили на самой кухне, выбрав недорогого подрядчика, который делает фасады с натуральным шпоном. На производстве их красили несколько раз, чтобы не было заметно разницы в оттенках шпона. А столешницу решили сделать подороже, из искусственного камня, чтобы она служила дольше.
Есть решение: 9 проектов кухни 12 кв.мОльга Рудакова
Холодильник установили в нише, расположенной в коридоре — за таким же фасадом, как у кухни. Частью кухни стал и открытый стеллаж на скошенной стене.

СМОТРИТЕ ТАКЖЕ…
Больше фото кухни и других интерьеров из этого проекта — в профиле дизайнера

ВАША ОЧЕРЕДЬ…
Если вы устанавливали кухонную мебель на такой же площади, размышляли над дизайном квадратной или прямоугольной кухни 12 кв.м, поделитесь своим опытом и удачными решениями в разделе комментариев

Комментарии 4

В нашем случае заказчица изначально отказалась от газа, трубу просто перекрыла (Опасается утечки и пр.). В проекте труба оказалась в подсобном помещении, под нее в полках делали специальные отверстия.
интересные варианты, но все кухни с электроплитами. А где газовые?!)
Спасибо!

Оставьте комментарий

Смотреть похожие темы

Читать похожие статьи