
Дизайнеры интерьера
5
·
10 отзывов
4-комнатная квартира для лабрадора Тишки и его семьи
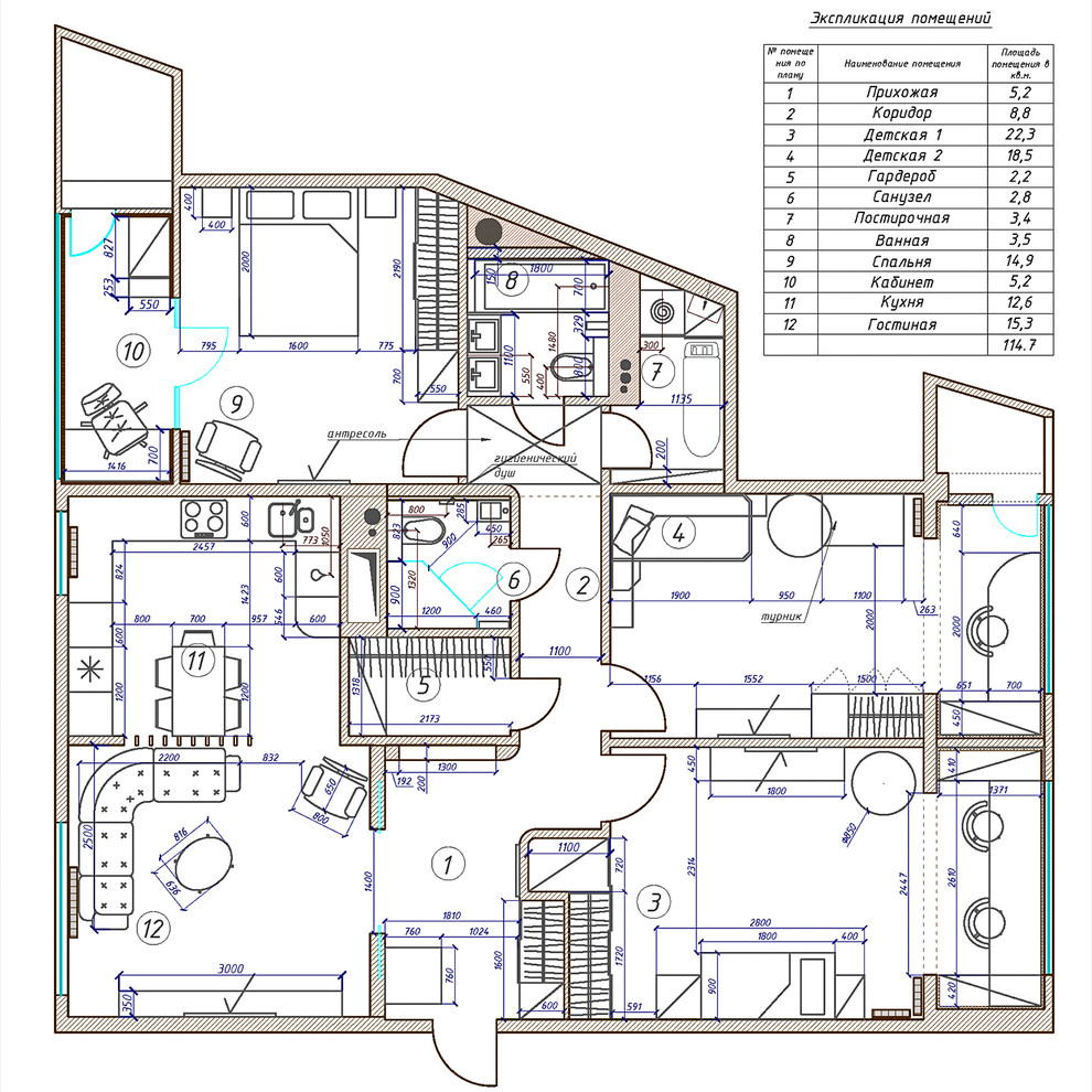
Дизайн проект интерьера четырехкомнатной квартиры, с фотографиями которой предлагаем ознакомиться, был разработан нашей дизайн студией для московской семьи из четырёх человек и собаки — добродушного лабрадора Тишки. Почему мы о собаке говорим отдельно? Потому что, во-первых, он просто великолепен, а во-вторых, его присутствие серьезно повлияло на выбор некоторых видов отделочных материалов.
Другие фотографии в проекте
Вопросы к фото 0
Задайте вопрос
Вам ответят эксперты. Пришлем уведомление, когда вам ответят




