4-комнатная квартира для лабрадора Тишки и его семьи
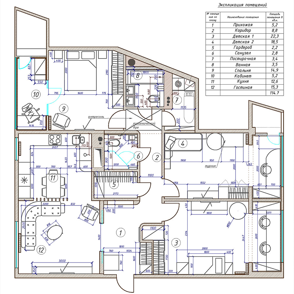
Дизайн проект интерьера четырехкомнатной квартиры, с фотографиями которой предлагаем ознакомиться, был разработан нашей дизайн студией для московской семьи из четырёх человек и собаки — добродушного лабрадора Тишки. Почему мы о собаке говорим отдельно? Потому что, во-первых, он просто великолепен, а во-вторых, его присутствие серьезно повлияло на выбор некоторых видов отделочных материалов.
Год реализации: 2017
Стоимость проектирования: 12 250 000 ₽
г. Москва
63 фотографии


















































