Дизайн-проект квартиры 160 кв.м. в Матвеевском, Москва
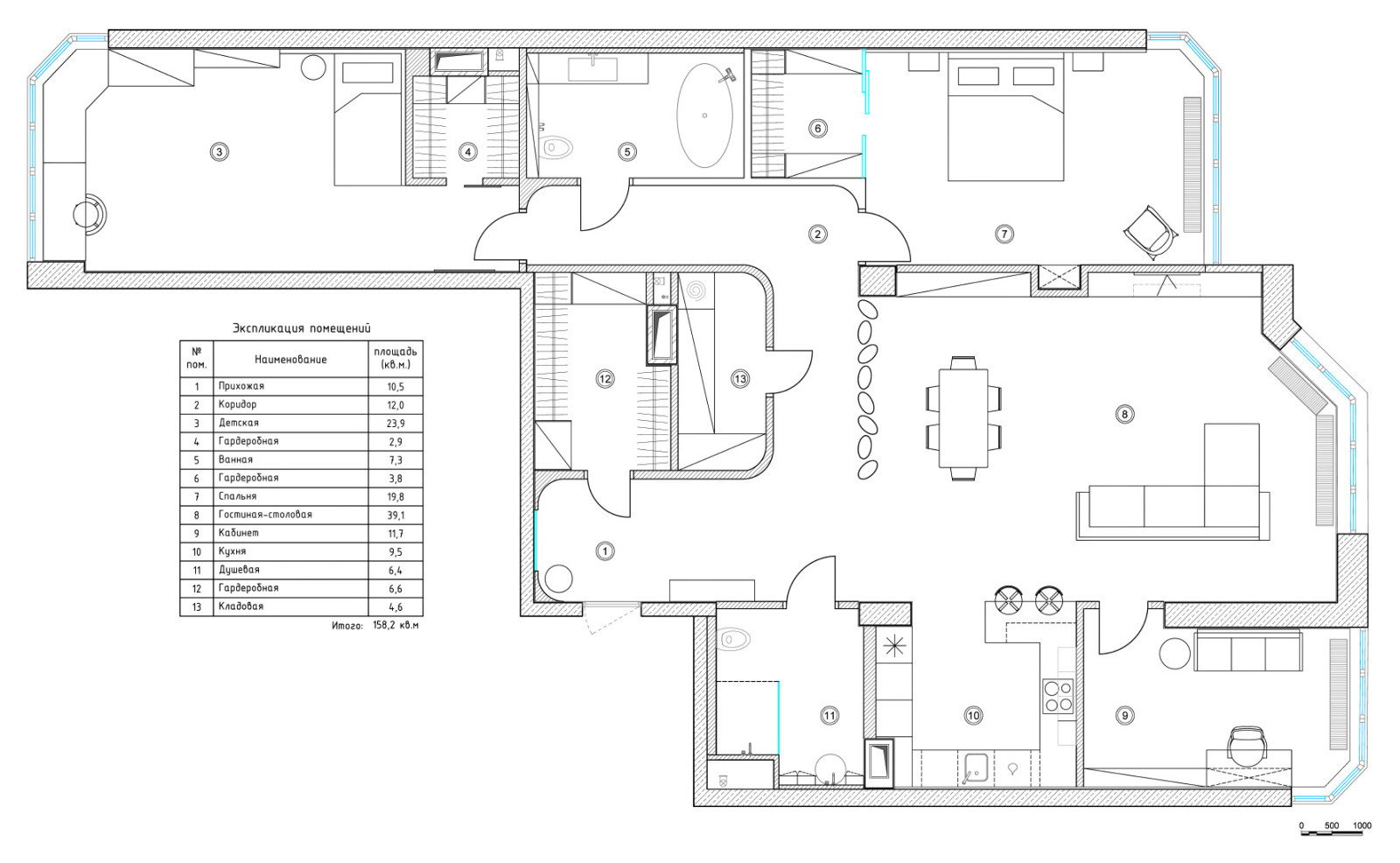
Знакомьтесь: дизайн-проект интерьера 4-комнатной квартиры площадью без малого 160 кв.м. Просторный объект с большими панорамными окнами и высокими потолками - отличная возможность для разработки современного дизайна с применением актуальных декоративных техник и материалов. Основа стилистической концепции этого пространства - лаконичность, гармония чётких форм и спокойной природной цветовой гаммы. Скрытые двери, теневой плинтус и потолочные светильники "invisible" поддерживают минималистичную эстетику квартиры. . С полным описанием проекта этой квартиры вы можете ознакомиться на его странице в портфолио нашего сайта: https://dizayn-intererov.ru/studiya-dizayna-interera-portfolio/dizayn-proekt-kvartiry-matveevskoe-moskva/
33 фотографии

































