logo
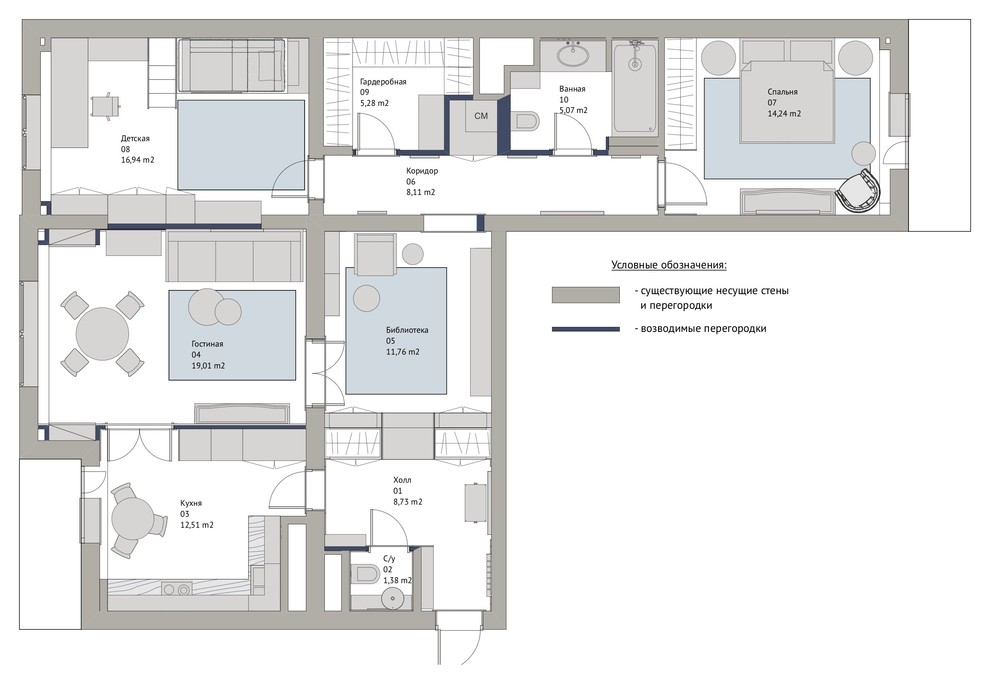
С московским характером. Планировка.

Другие фотографии в проекте С московским характером

С московским характером. Гостевой санузел.
С московским характером. Ванная.
С московским характером. Ванная.
С московским характером. Ванная.
С московским характером. Детская.

Вопросы к фото 0

Задайте вопрос

Вам ответят эксперты. Пришлем уведомление, когда вам ответят