ЖК Лазурная Симфония
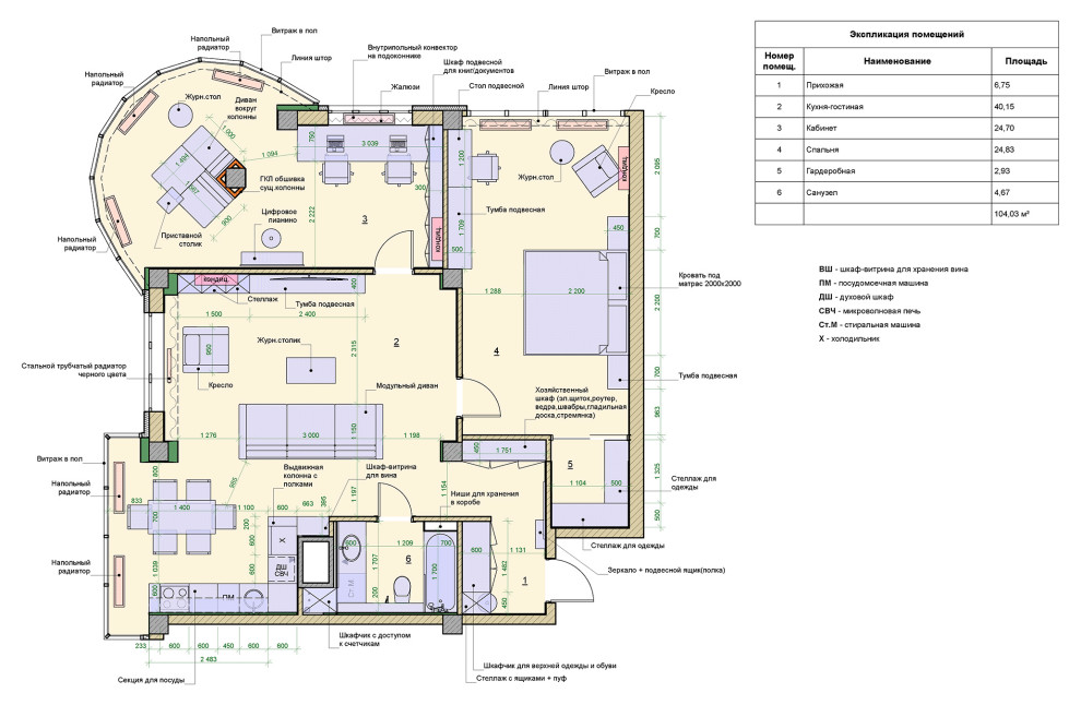
3-х комнатная квартира в современном стиле для молодой пары. Нужно было разместить кухню-гостиную, спальню совмещенную с гардеробной зоной, санузел и кабинет . . Основным требованием заказчиков была организация рабочей зоны для удаленной работы. Конфигурация помещения с рабочей зоной оказалась весьма нестандартной: прямо перед эркером с панорамными стёклами и почти в центе помещения - несущая бетонная колонна. Нами было предложено решение обустроить перед колонной лаунж-зону с видом на Волгу. И рабочую зону смогли обыграть, и не потеряли пространство перед панорамными окнами! . . В отделке стен мы использовали декоративные стеновые панели из МДФ в шпоне и краску. На стенах рабочей зоны применены вставки с магнитно-маркерным покрытием (для заметок) . . Пол по всему периметру квартиры выложен крупноформатной плиткой из керамогранита
24 фотографии

























