Уютная квартира для большой семьи
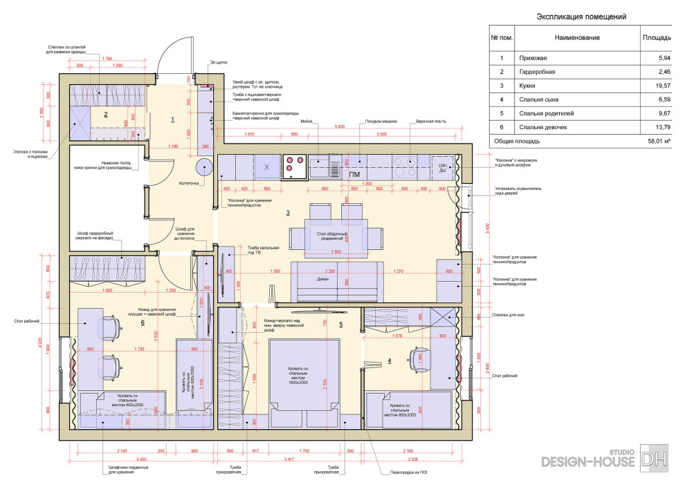
Очередную непростую задачку нам пришлось решать при разработке проекта для данной квартиры! И полученный результат мы показываем с гордостью! . В исходных данных было две спальни (для родителей и двух девочек), кухня-столовая и лоджия, которую переоборудовали в мини-комнату для старшего сына, но он из нее уже «вырос». Для каждого члена семьи нужно было выделить свою спальню, пусть и скромную; освободить лоджию под хозяйственные нужды; максимально эффективно использовать площадь кухни для размещения всего необходимого оборудования и большого количества мест хранения. Также из пожеланий заказчиков были яркие акценты в отделке. Санузел не был заявлен в техзадание, его мы не включали в проект. . В итоге мы успешно разместили всех членов семьи, но пришлось пожертвовать естественным освещением в родительской спальне, так как это был единственный вариант с выделением спален детям с естественным освещением. Результатом заказчики остались довольны! .
23 фотографии
























