Квартира в природных тонах
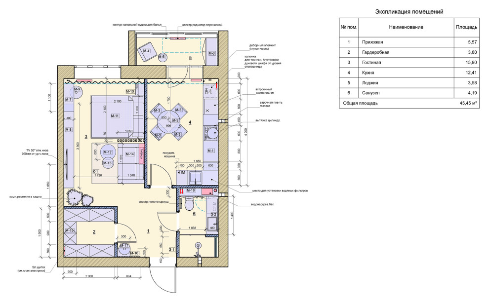
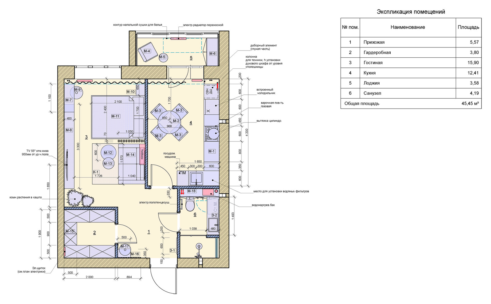
Эту квартиру мы проектировали для молодой женщины, основными пожеланиями которой были: устройство гардеробной комнаты, отдельное помещение для кухни, полноценное спальное место и зона гостиной. Общее направление по оформлению этой квартиры: современный минималистичный стиль; теплые, мягкие, природные тона с небольшими цветовыми акцентами в текстиле, которые при желании можно поменять. . При работе над этапом планировочное решение мы предложили сделать перепланировку, для возможности реализации всех пожеланий заказчицы. В итоге мы получили просторную кухню с круглым обеденным столом и кухонным гарнитуром без верхних шкафов (что также было пожеланием заказчицы); гостиную со спальным местом, зонированную декоративной перегородкой из реек; просторную прихожую; гардеробную комнату; санузел с душевой кабиной, большой столешницей и местами для хранения. .
22 фотографии























