Индийские мотивы в интерьере
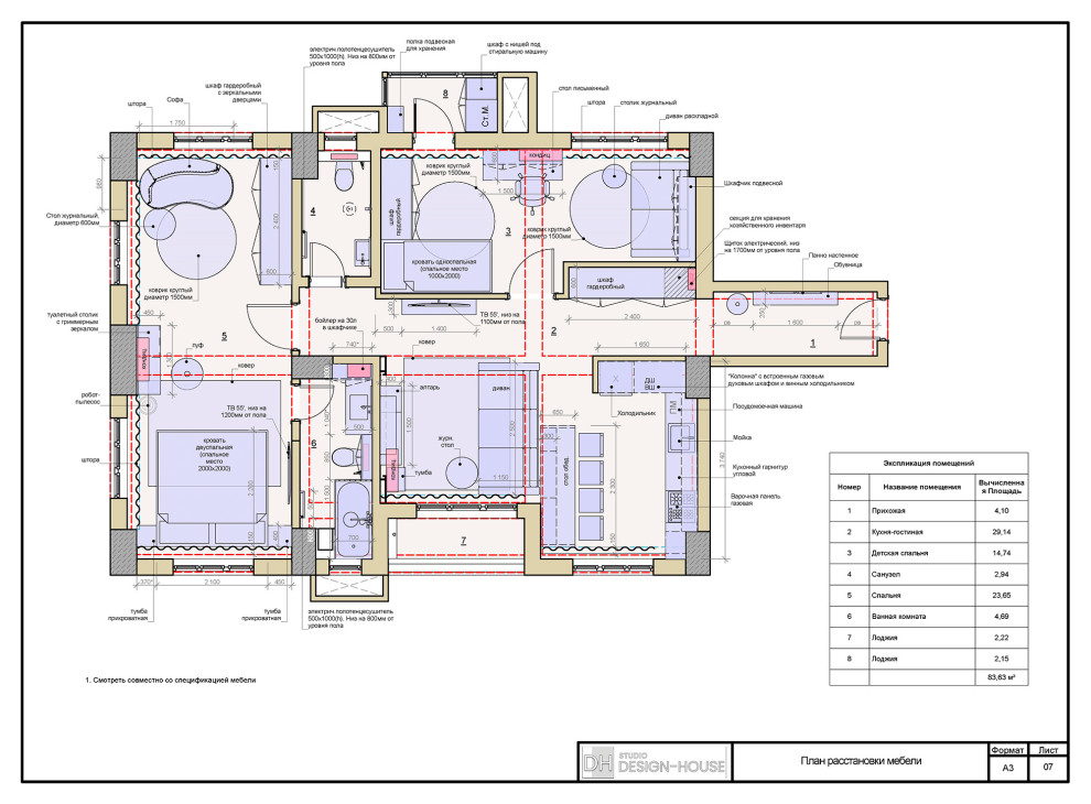
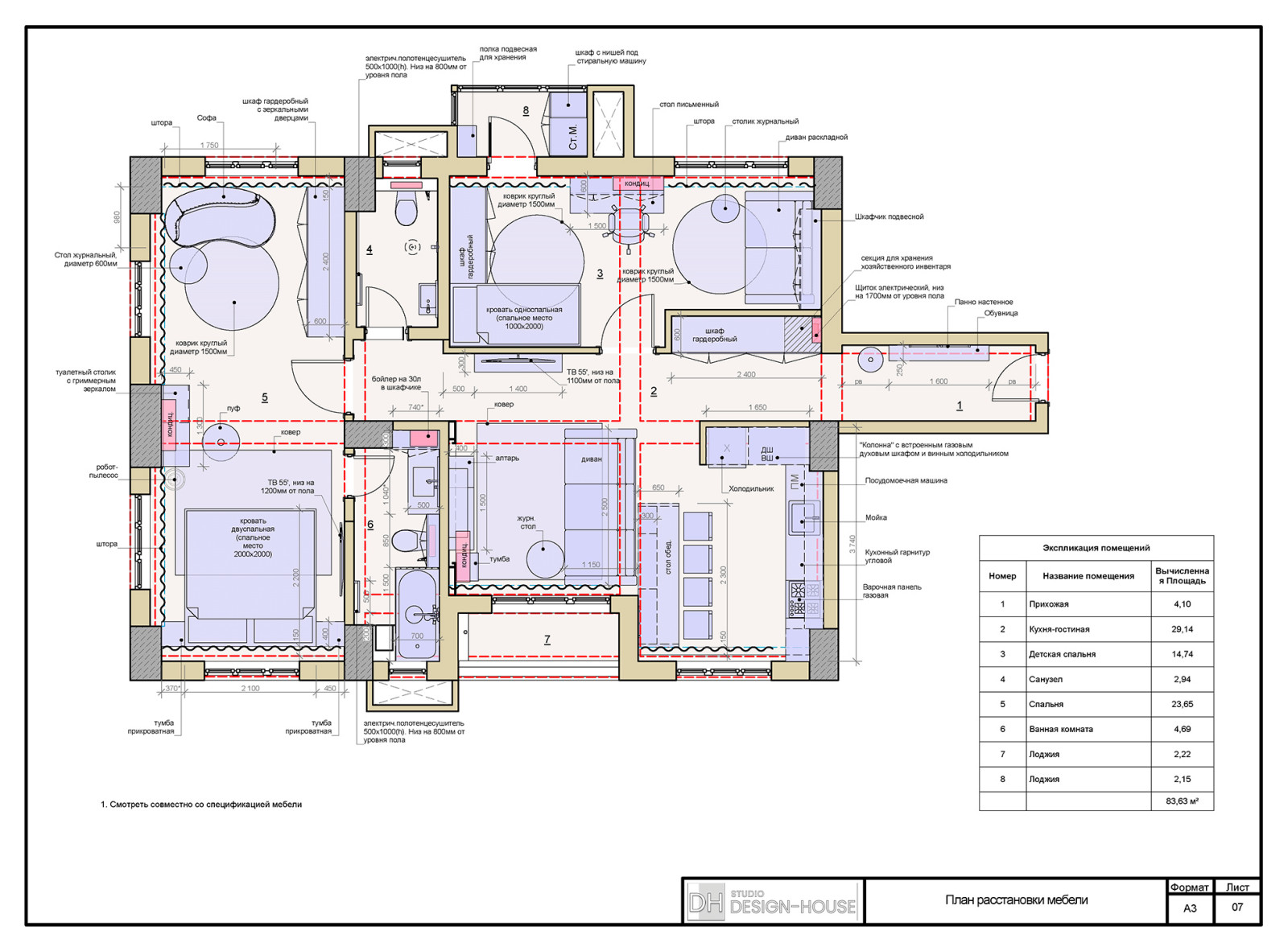
Так много хочется рассказать про эту невероятно теплую и уютную квартиру в Калькутте (Индия)! Это проект мы делали удаленно для заказчиков, которые уже достаточно давно уехали жить в Индию и уже обзавелись там своим жильем! . У квартиры очень активная конструктивная схема, по всему объему помещений идут балки, которые нужно было как-то вписать в интерьер. Также мы имели достаточно узкие помещения санузлов, в которых изначально не предусматривалось место под стандартную душевую кабину, не говоря уж о ванной. Но нам все по плечу! Балки заняли свое почетное место в интерьере, да и для ванны, которую ну о-очень хотела наша заказчица, нашли место! . Необычным для нас элементом интерьера стал алтарь для божеств, который занял почетное место в гостиной. В Индии есть мастера, делающие потрясающие алтари из натурального камня или дерева, это просто произведения искусства! . Мы очень благодарны нашим заказчикам за то, что позволили нам окунуться в такую необычную атмосферу и создать для них такое уютное гнездышко! .
33 фотографии


































