В объятиях «Прованса»
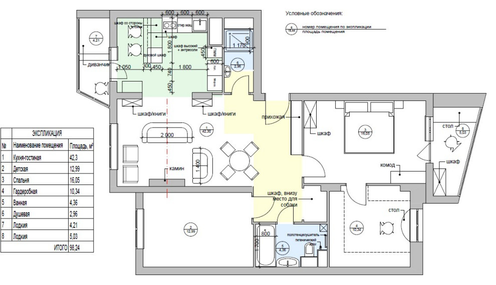
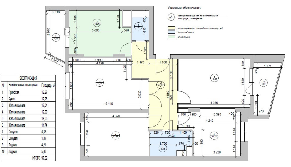
Квартира предназначена для молодой семьи (пока без детей). Хозяйка - романтичная девушка с тонким вкусом. Руководствуясь пожеланиями заказчицы удалось создать уютный, воздушный и функциональный интерьер с открытым пространством.
Год реализации: 2017
Стоимость проектирования: 135 000 ₽
г. Москва, Центральный административный округ
18 фотографий



















