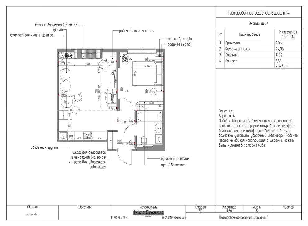
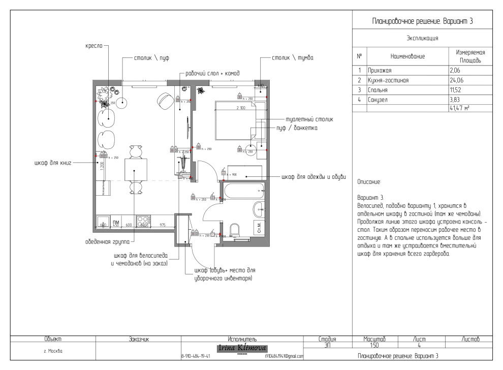
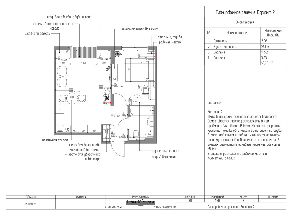
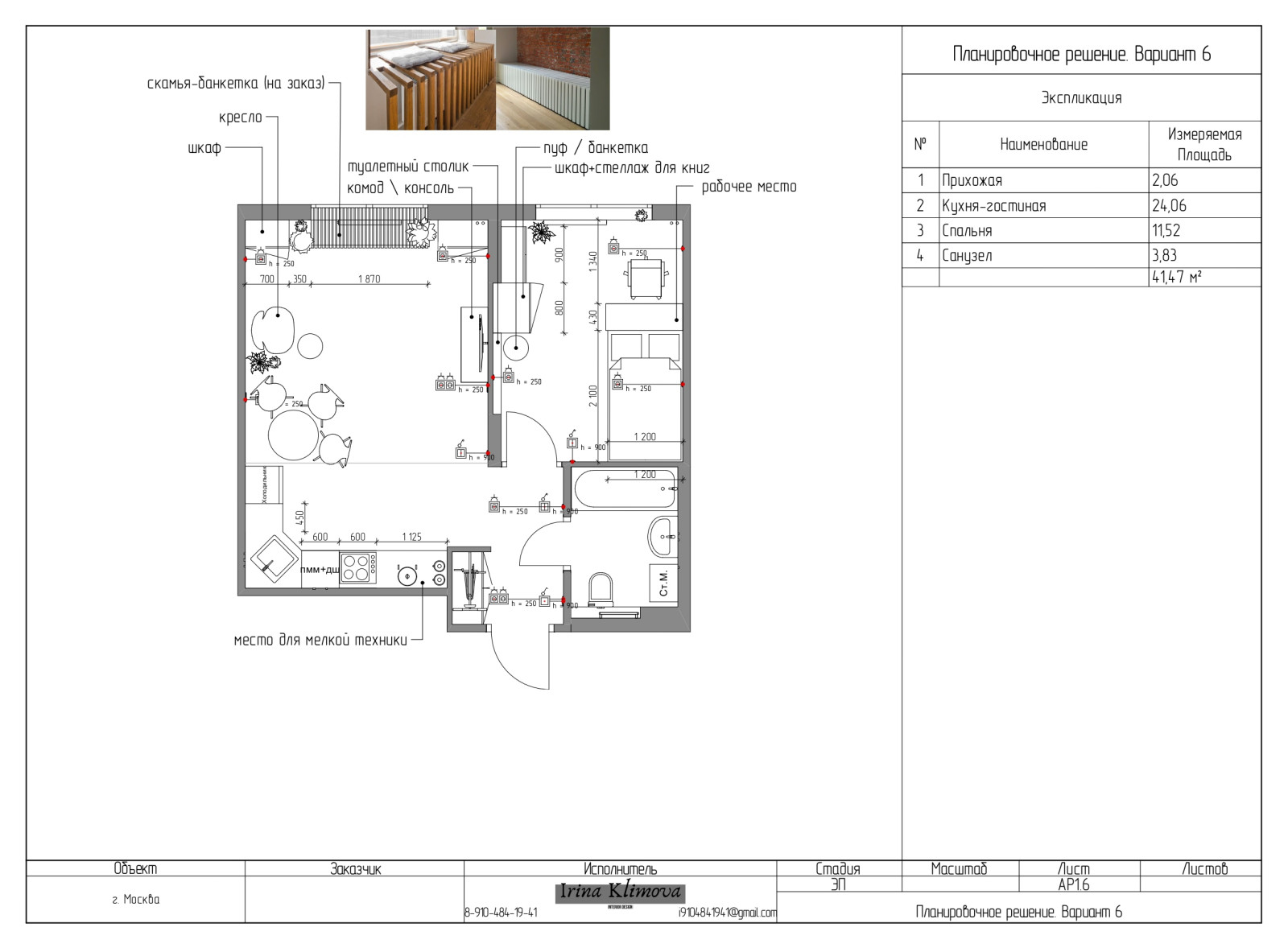
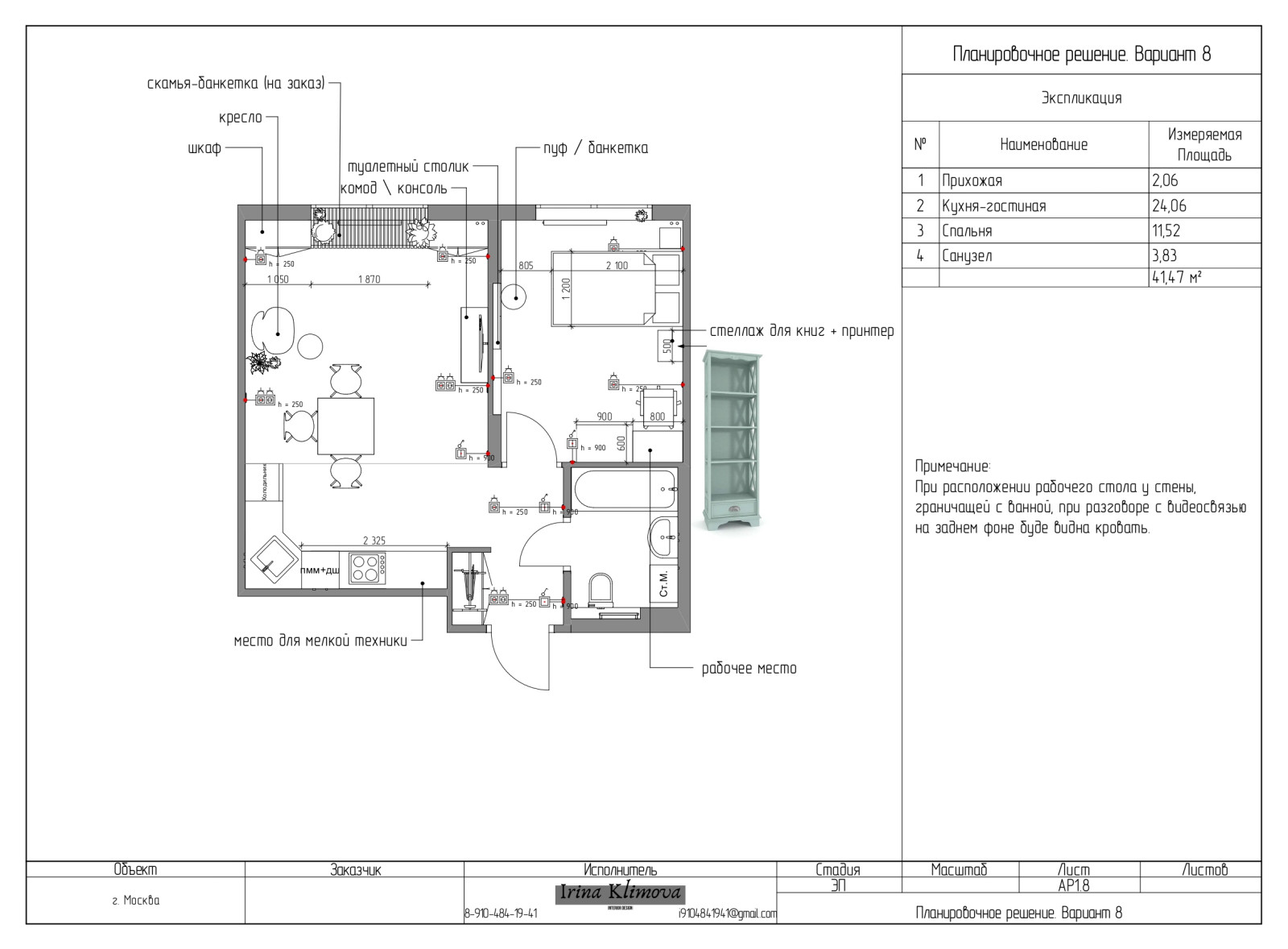
"Коралловая история"
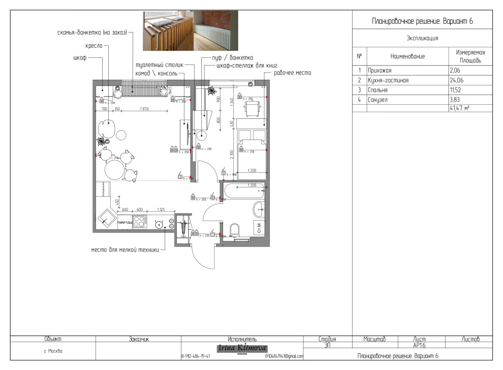
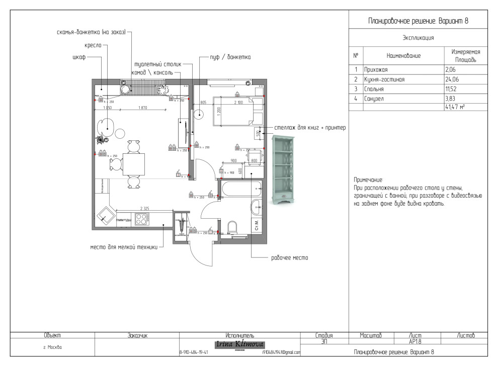
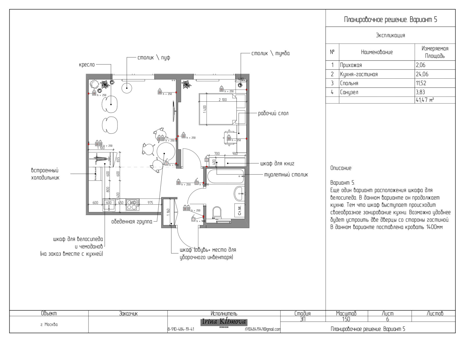
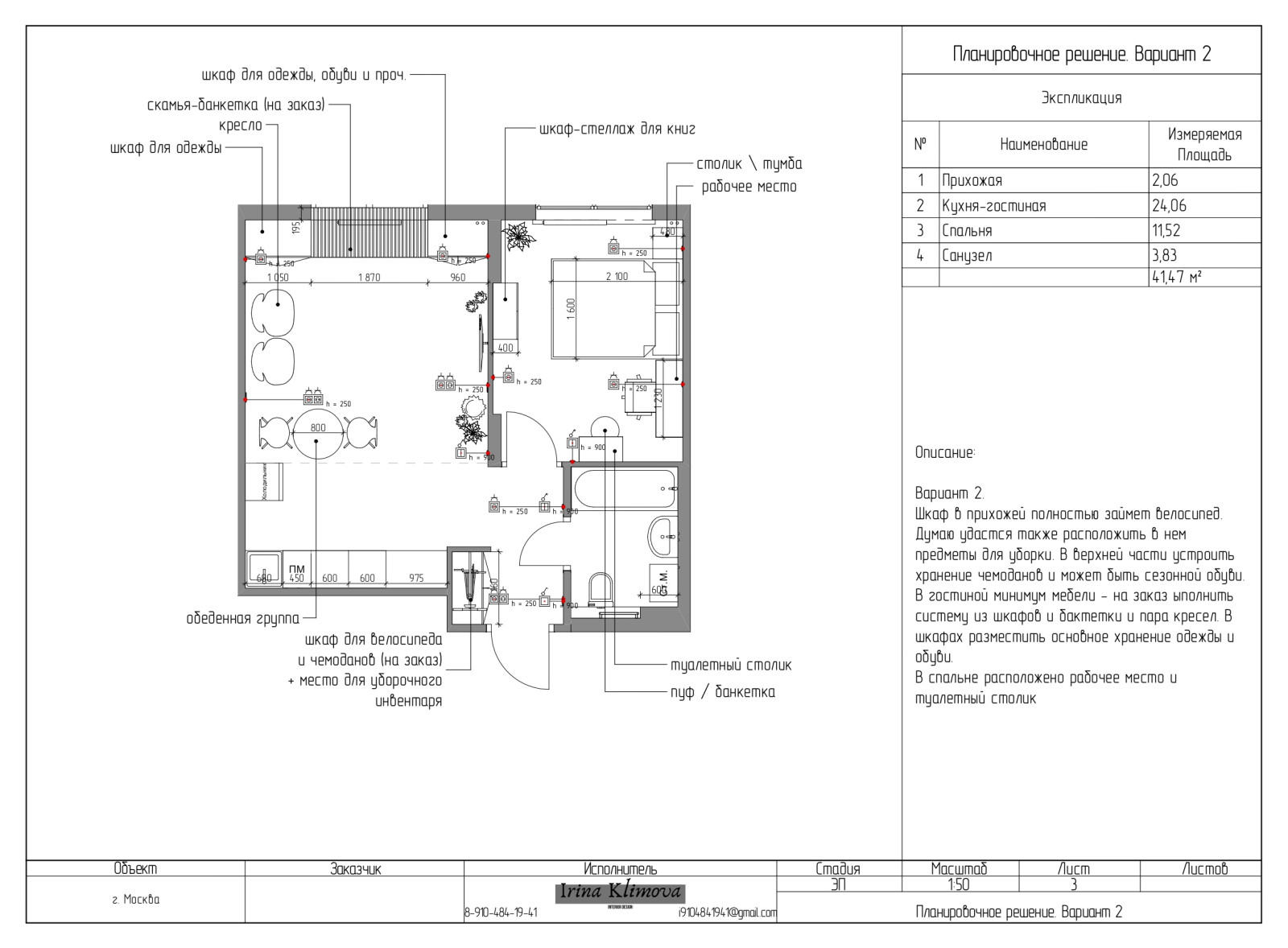
Проект квартиры. . Выполнены варианты планировочных решений и коллажи. .
Год реализации: 2020
Стоимость проектирования: 34 999 ₽
16 фотографий
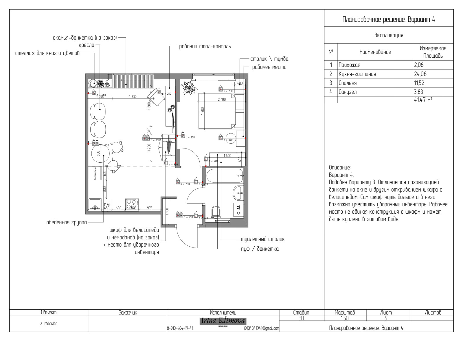
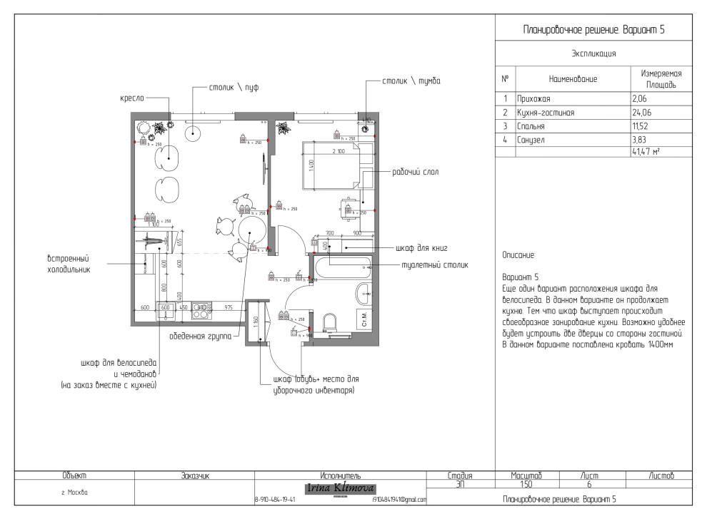
Проект квартиры. . Выполнены варианты планировочных решений и коллажи. .
16 фотографий
