Мини-проект холла таунхауса
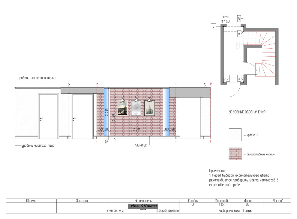
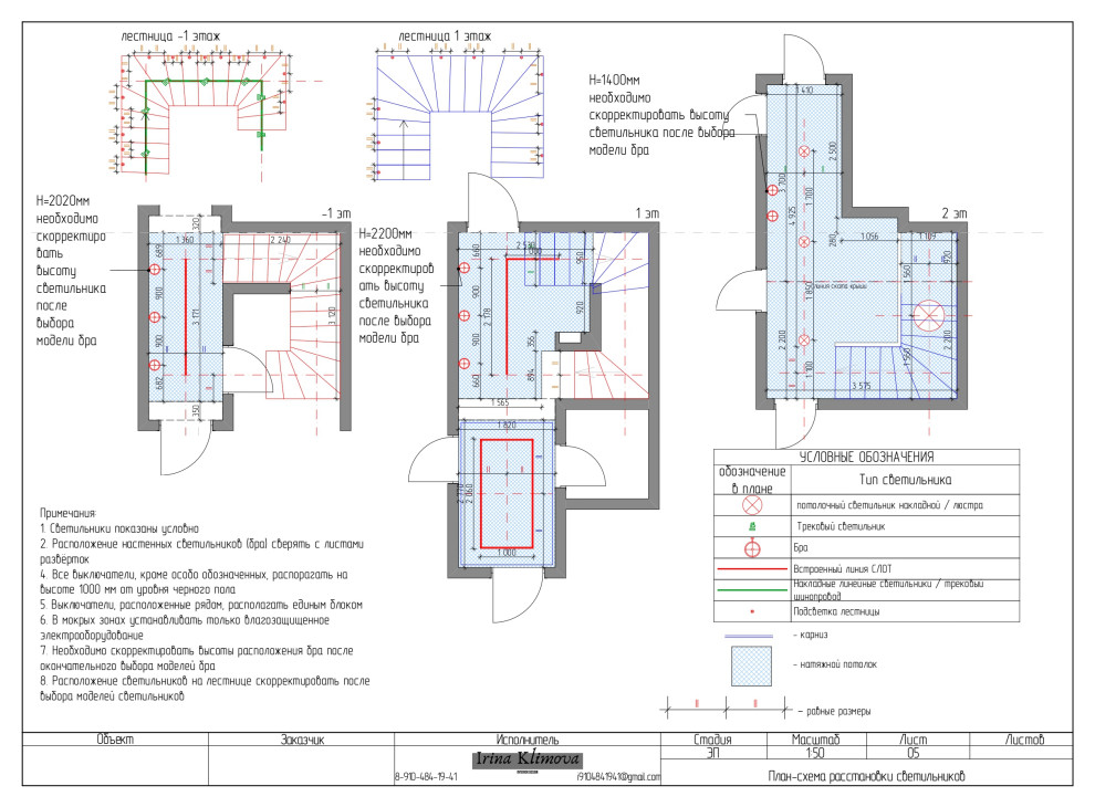
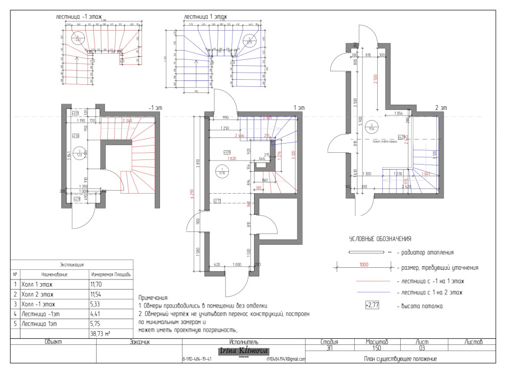
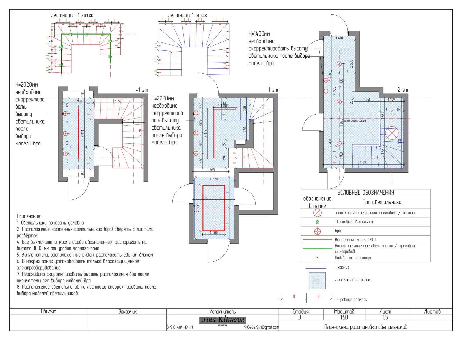
Дизайн-проект концепция. . Задачи проекта: . - разработка единого образа для холлов и лестничного пространства . таунхауса . - выделить визуально зону прихожей . - холл подвального этажа визуально объединить с пространством комнаты . отдыха . Стилистически интерьеры решены в современном стиле с добавлением стиля . LOFT. . В проекте учтены схемы: . - укладка напольных покрытий . - расстановка светильников . - развертки стен .
Год реализации: 2020
Стоимость проектирования: 34 999 ₽
17 фотографий


















