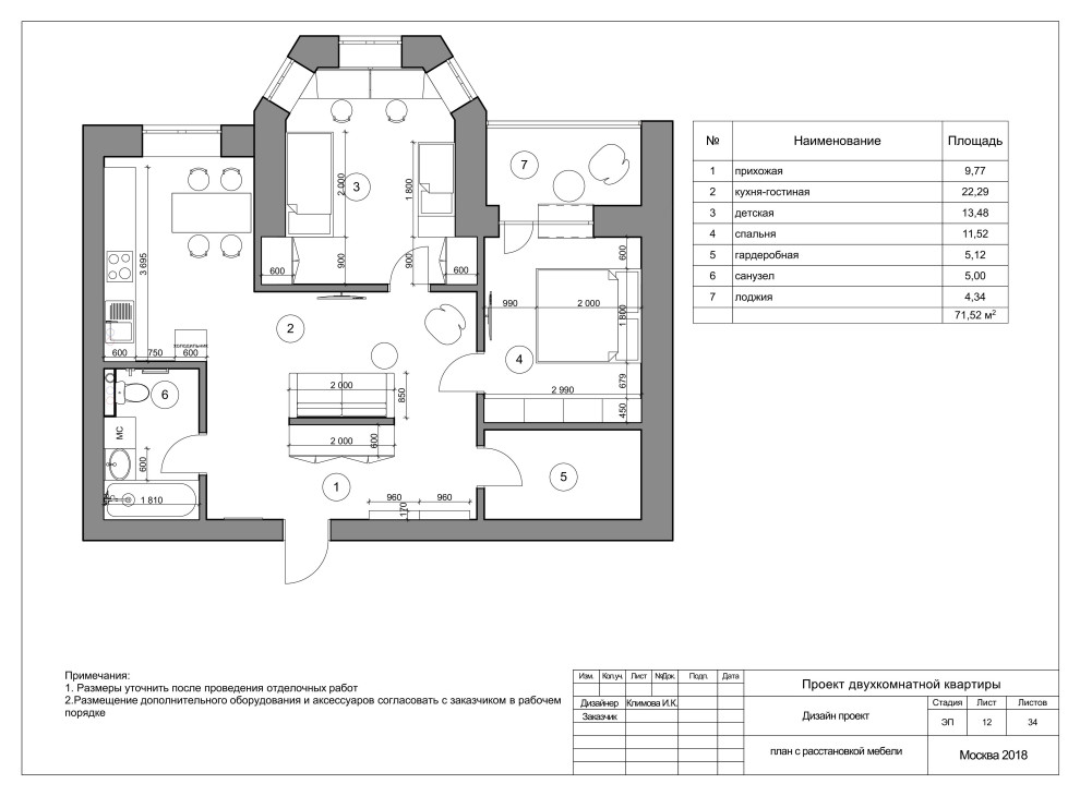
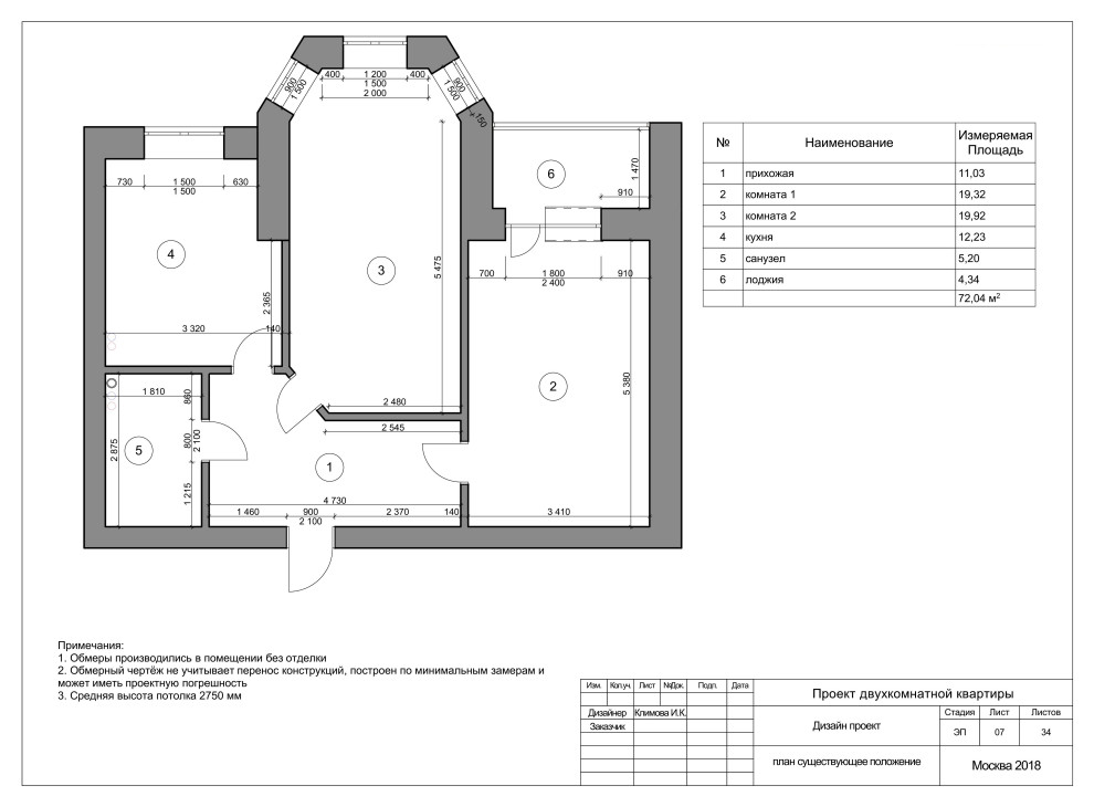
Двухкомнатная квартира
Эскизный проект. . В рамках проекта было разработано планировочное решение квартиры и стилистический образ квартиры.
Год реализации: 2016
г. Москва
6 фотографий
Эскизный проект. . В рамках проекта было разработано планировочное решение квартиры и стилистический образ квартиры.
6 фотографий
