Салон техники Sky
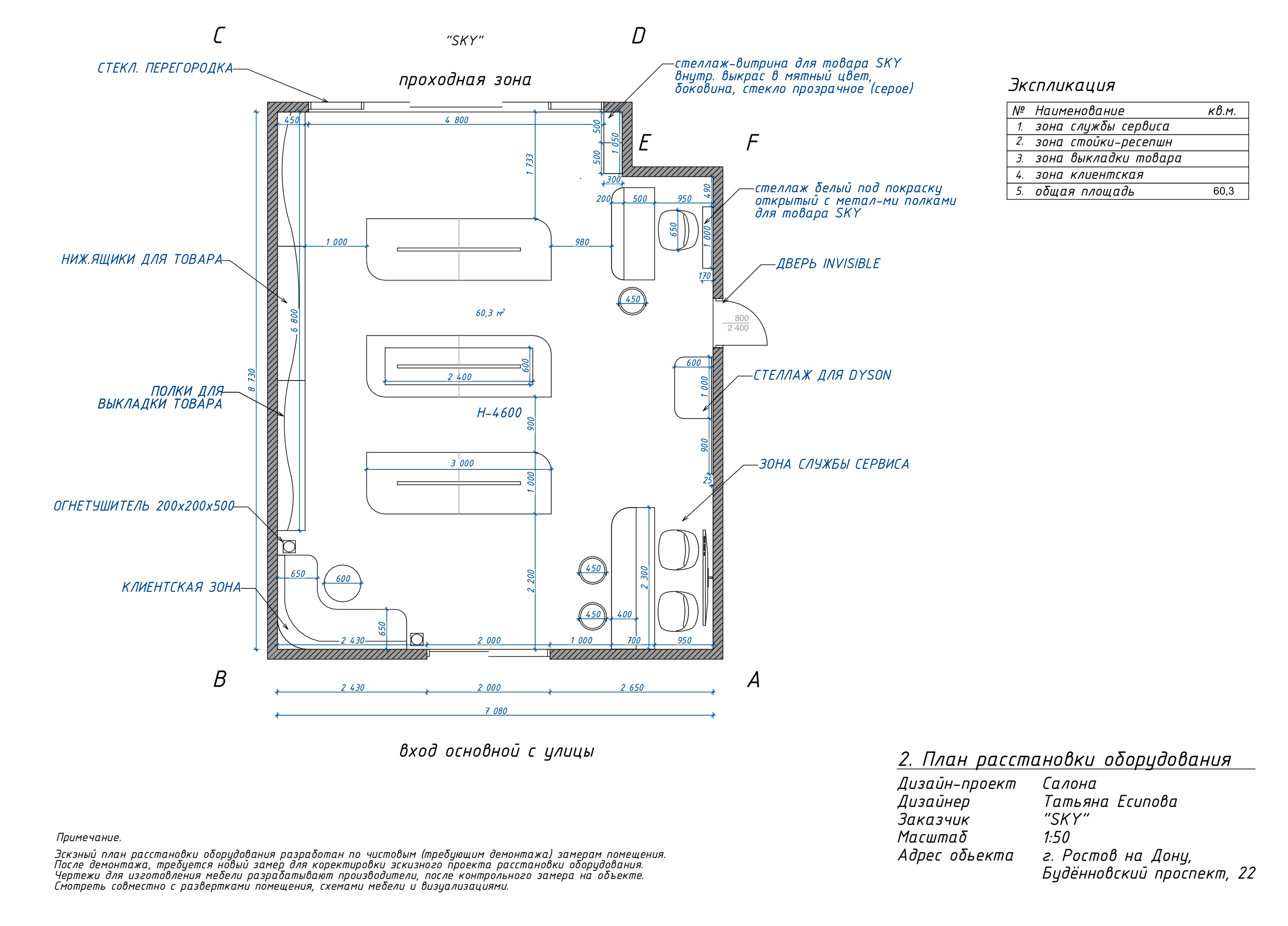
Салон техники выполнен в едином цветовом решении - нейтрально белый. Проходная часть помещения, 2 двери, с центрального входа раздвижные стеклянные электро двери позволяют расширить визуальный ряд товара. Столы из МДФ эмаль под заказ с выведением электрики по полу. В помещении расположены торговые витрины и зонирование для сервисного отдела. За ресепшен расположена стойка с подсветкой для личного бренда. Имеется подсобное помещение для персонала. Освещение по теплоте соответствует задуманной концепции.
Год реализации: 2024
Стиль: Минимализм
г Ростов-на-Дону, Буденновский пр-кт
13 фотографий













