дом из сруба в Пушкино
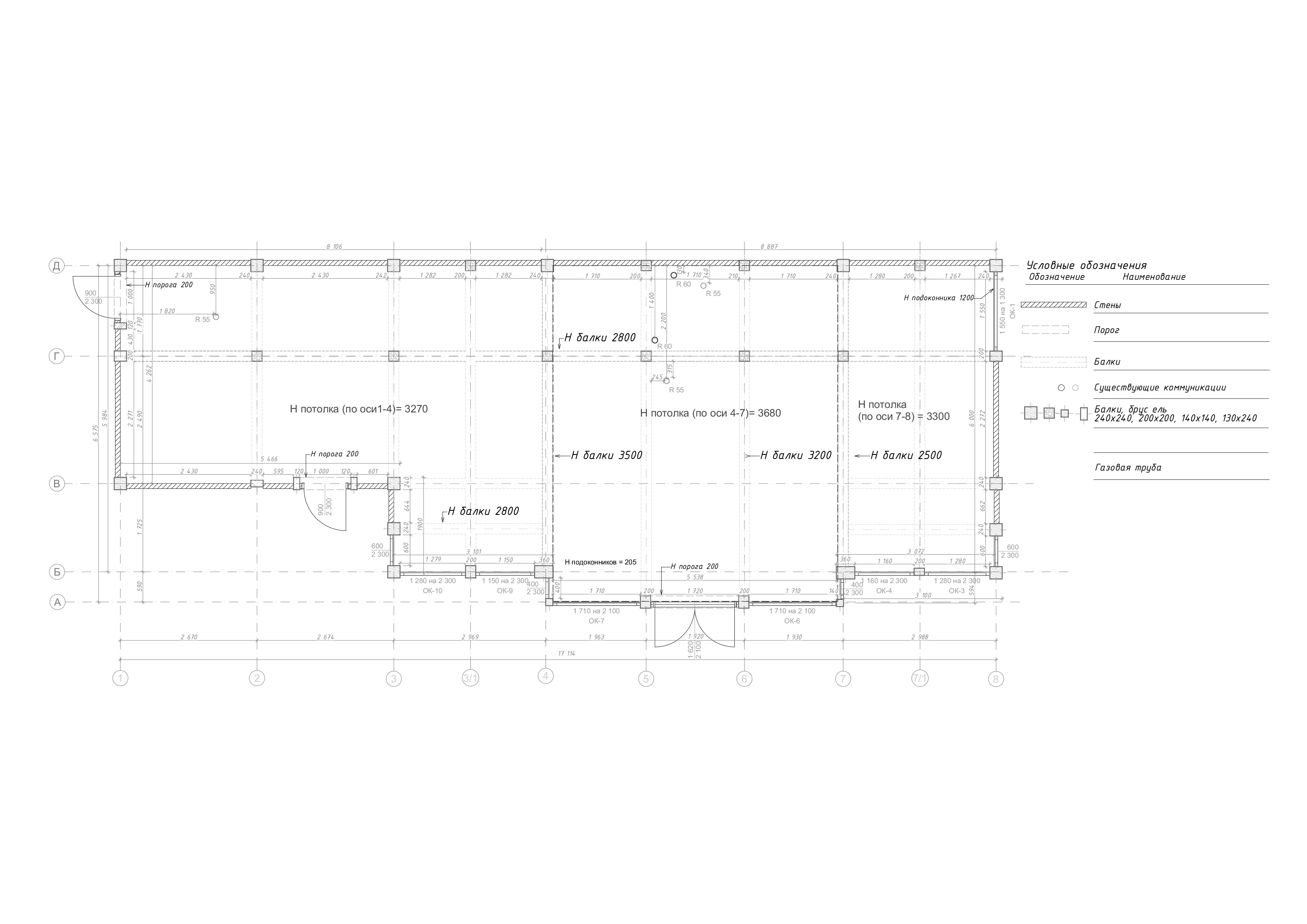
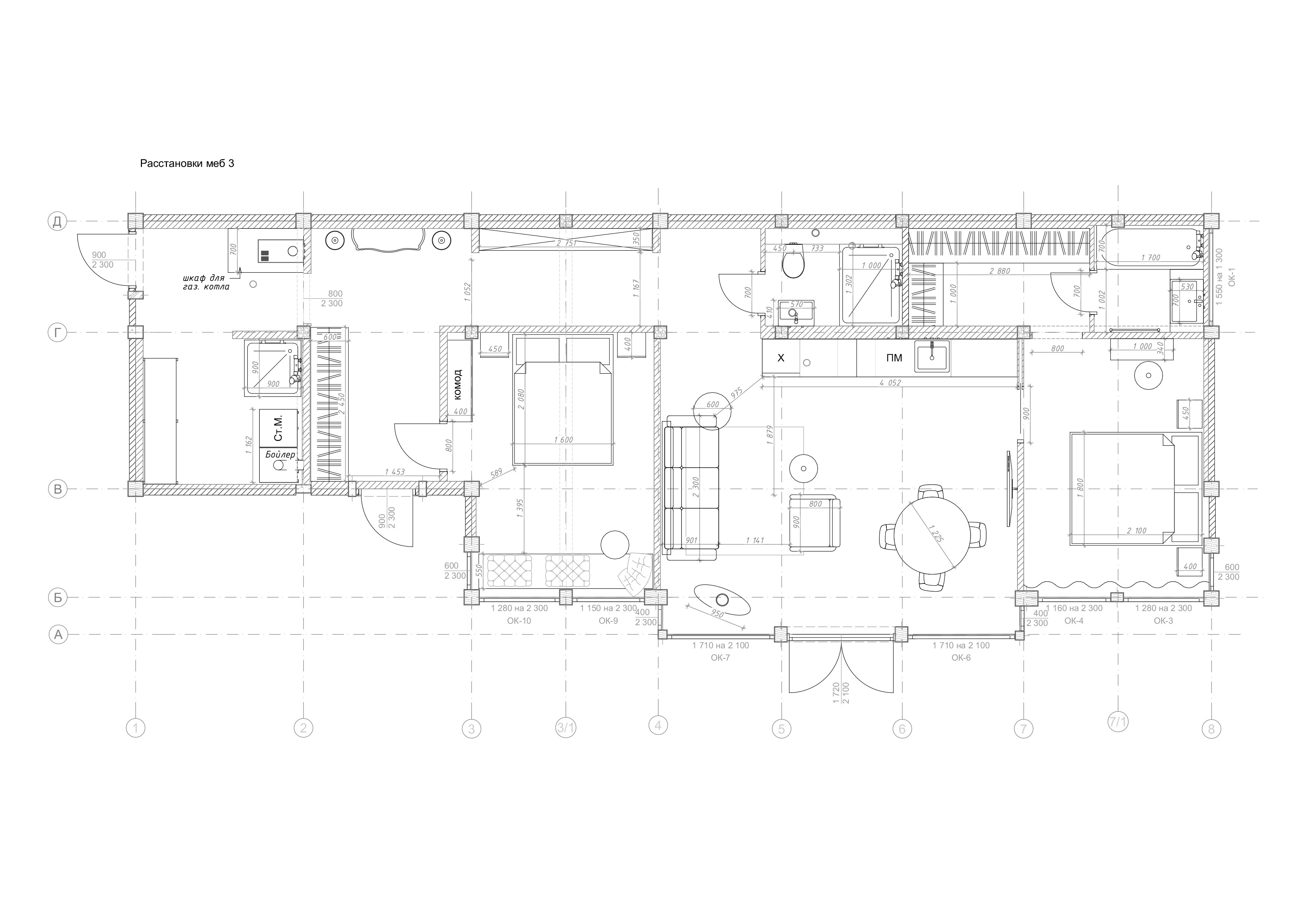
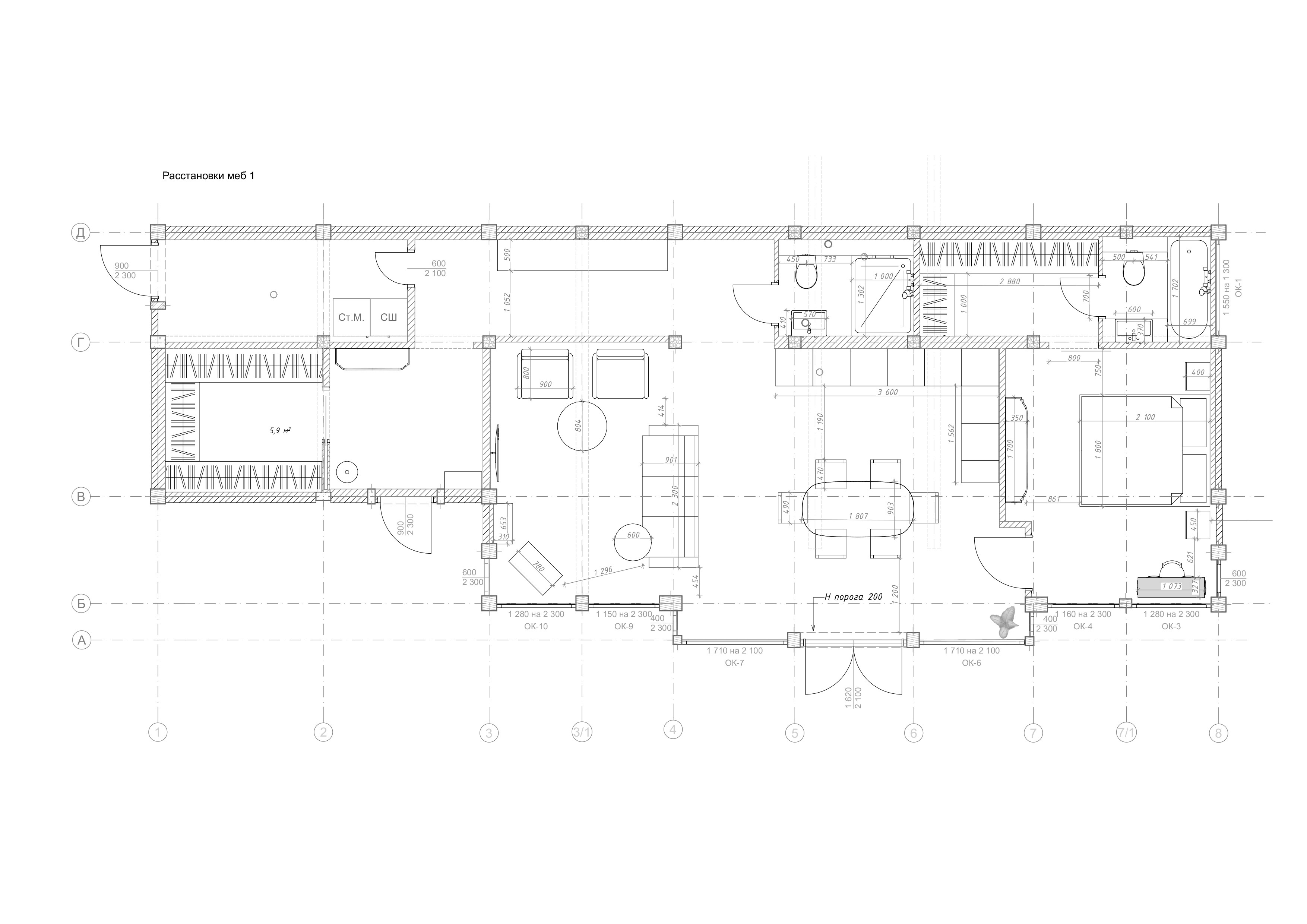
Дом деревянный из сруба расположен в тихом месте Московской области г. Пушкино Панорамное остекление дает возможность слияния с природой. Светлый, уютный и очень функциональный для семьи из 3-х человек. Эко стиль только усиливает эффект природы, именно там клиенты восполняют энергию и наслаждаются каждым днем проживания в этом пространстве. Камин - уютная зона для встреч с друзьями и семейных вечеров.
Год реализации: 2023
Стиль: Эко
г. Московская обл, г Пушкино
7 фотографий







