Москва, ЖК Роттердам
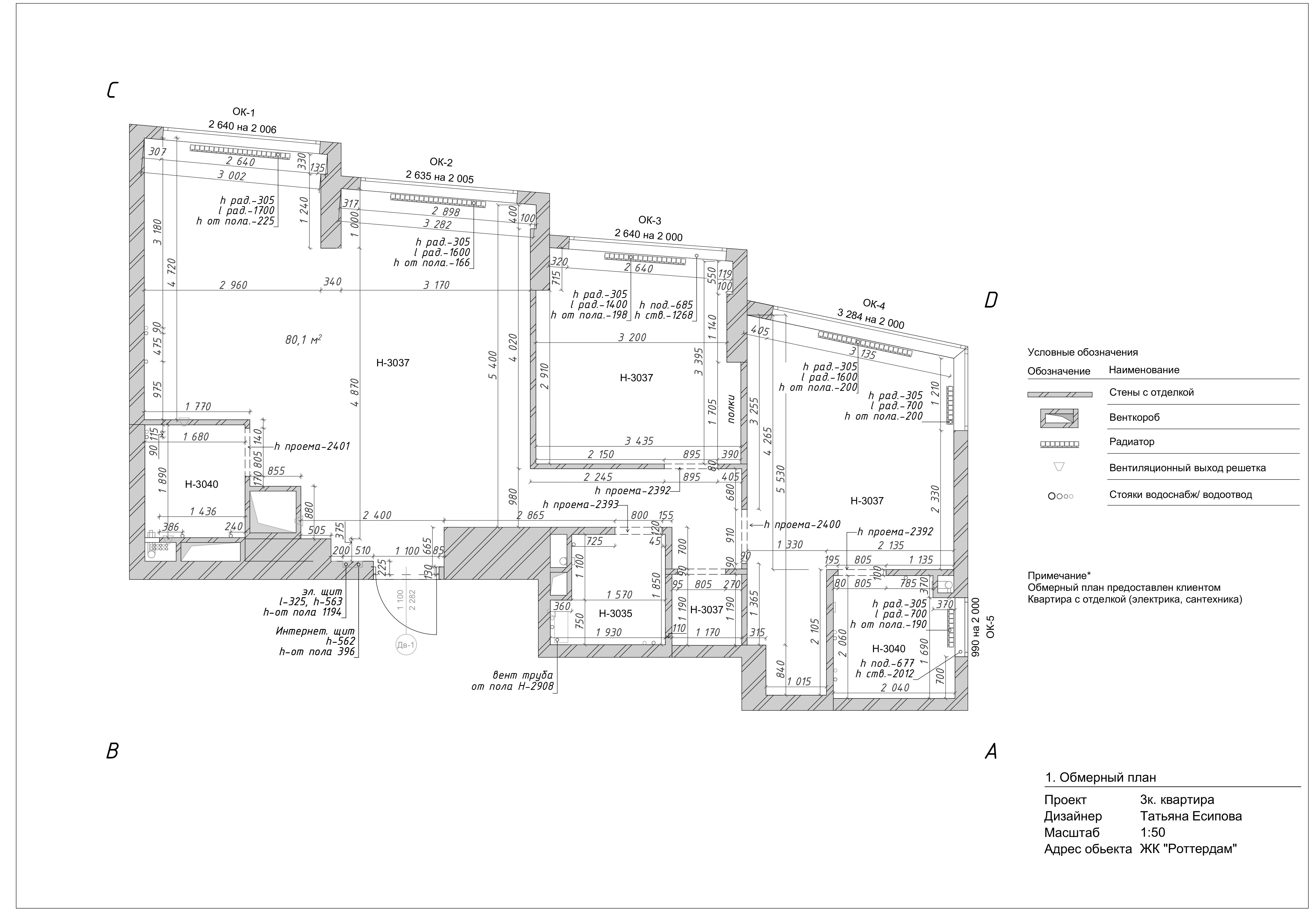
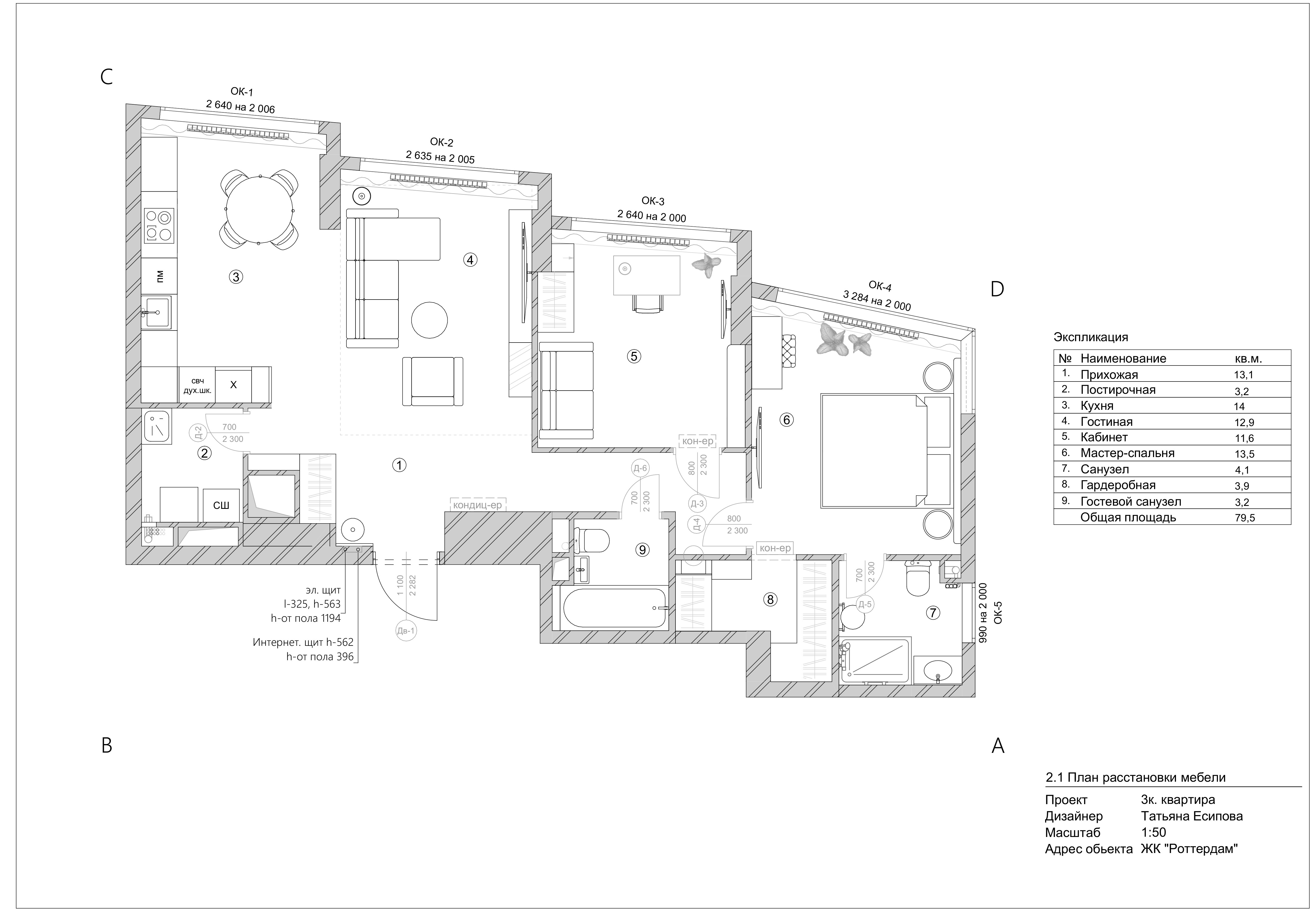
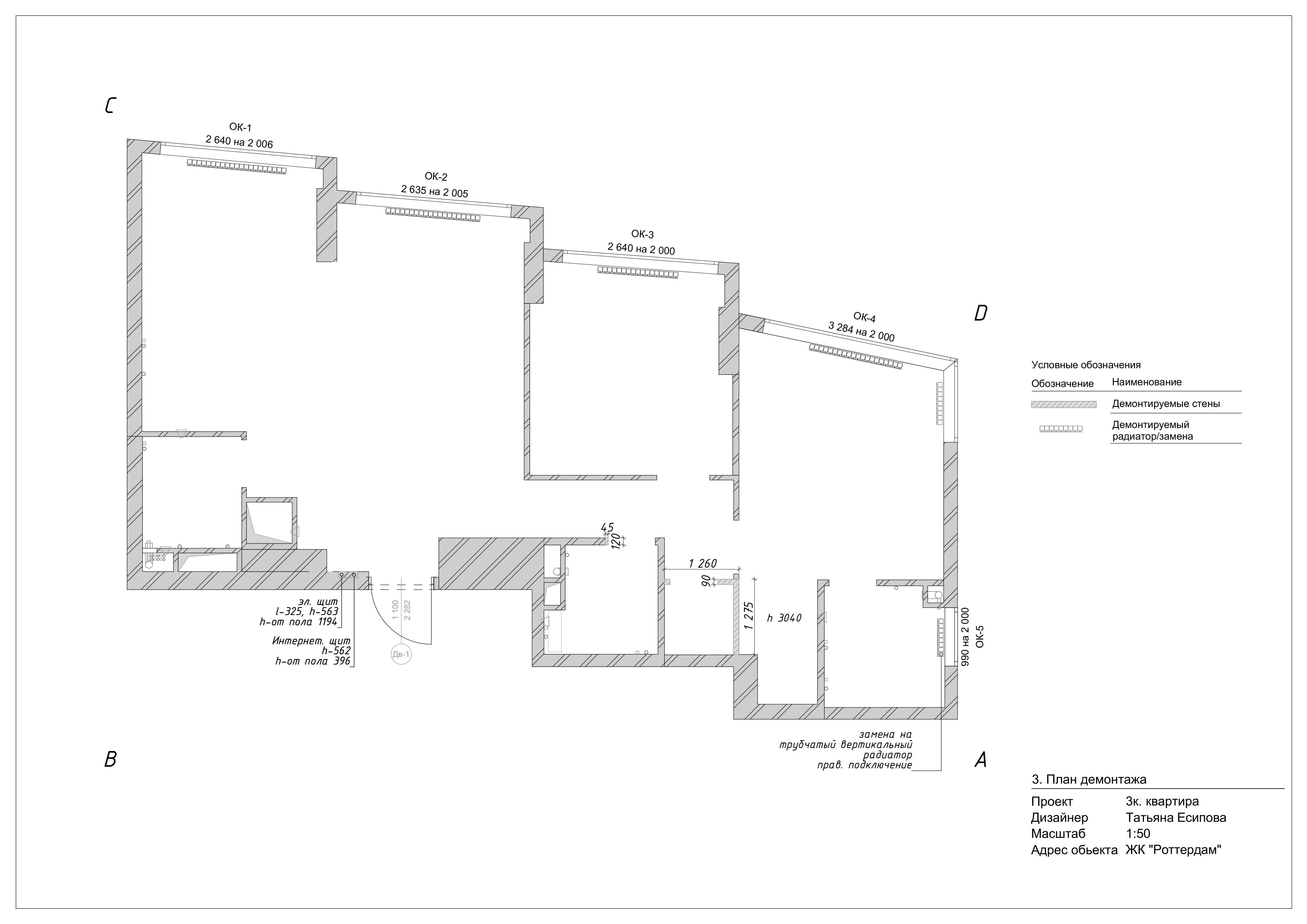
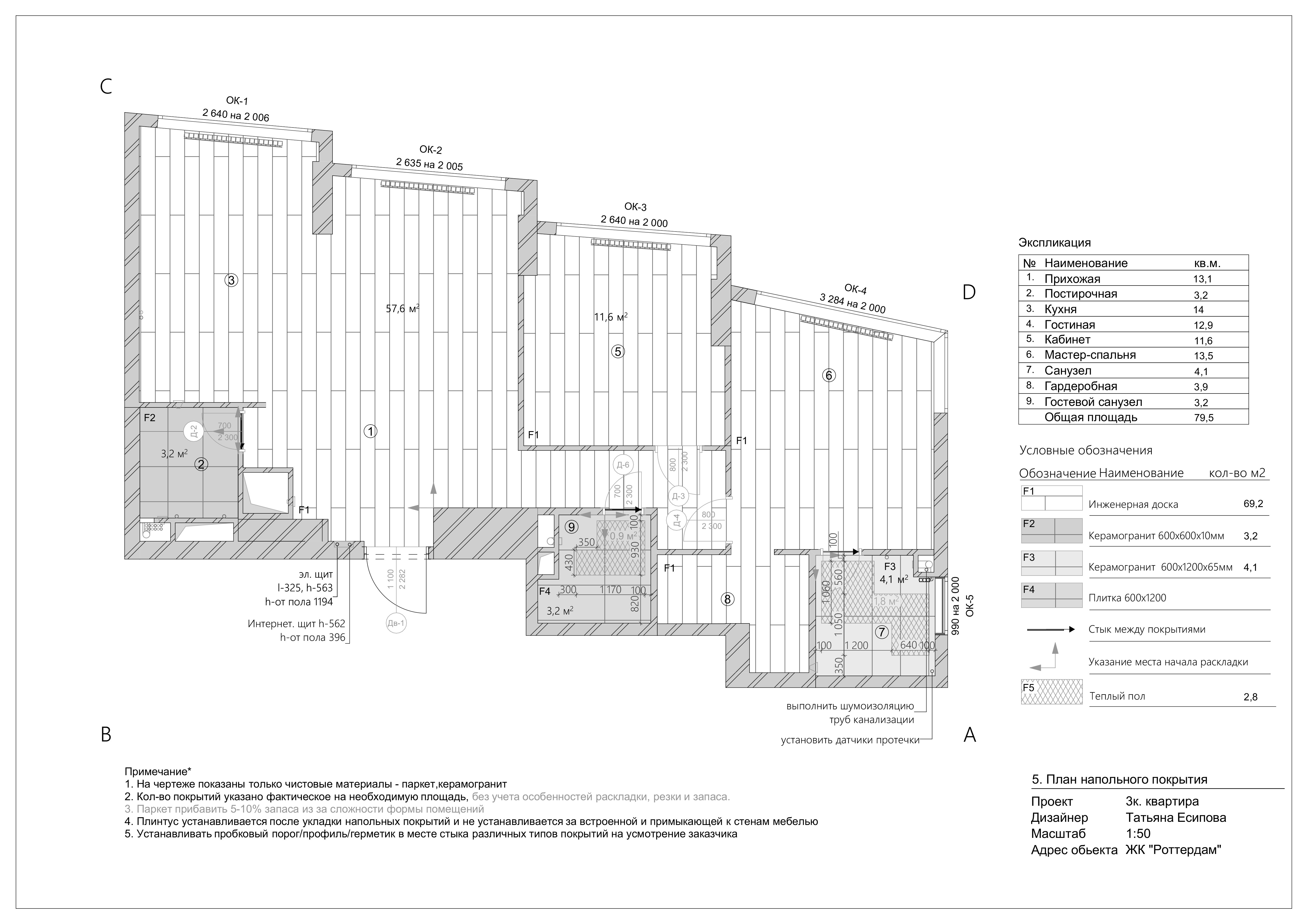
3к квартира с превосходным видом на Москву реку. Планировка нестандартной формы, отлично увеличило пространство объединение холла гостиной и кухни при этом зонирование градирует назначение комнат. Выбрали плотные тона натуральных оттенков, природные цвета насыщают смыслы сегодняшнего времени. Стиль полностью отображает характер клиента. Все задачи выполнены в проекте!
Год реализации: 2026
Стиль: Эко
г Москва, Нагатинская наб, д 4Б к 1
60 фотографий


















































