Реконструкция теплового пункта в 101 микрорайоне г. Волгограда
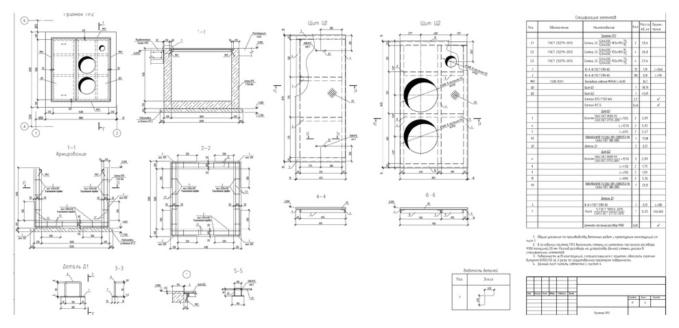
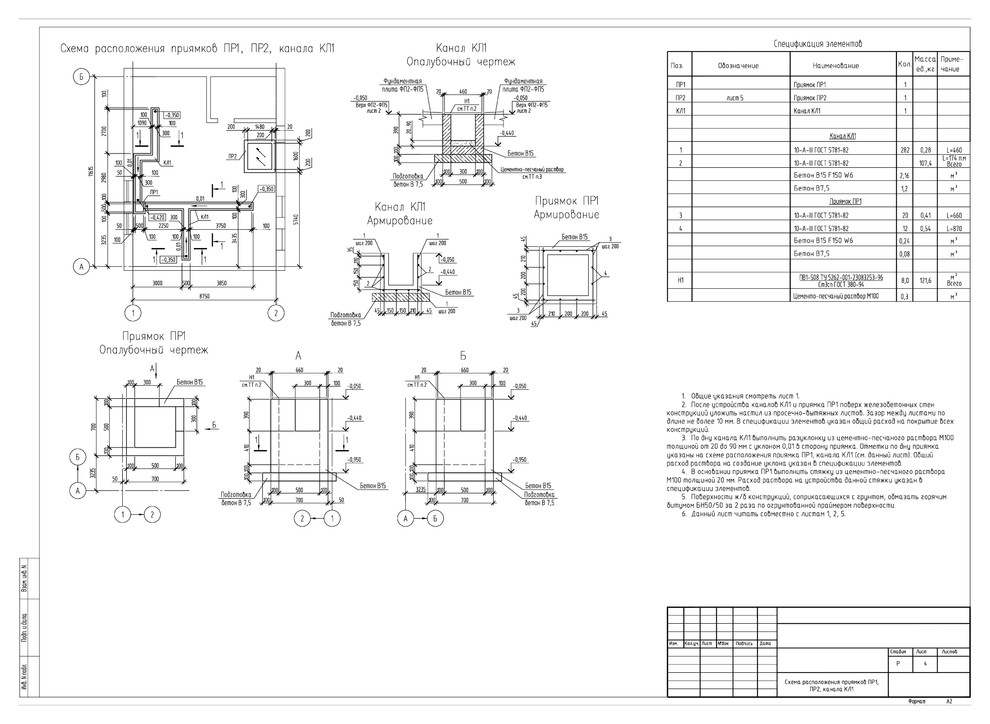
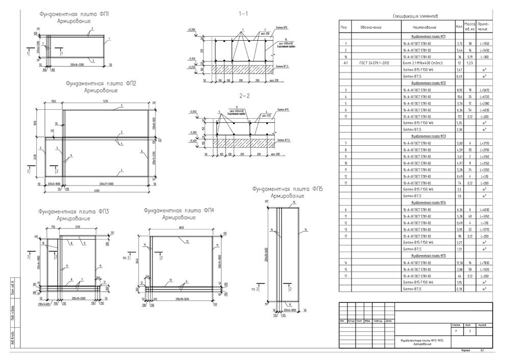
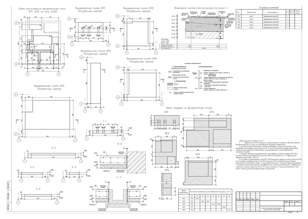
В рамках реконструкции (в отношении строительной части) были заменены фундаменты под тепловое оборудование, выполнен приямок для сбора конденсата. . Статус проектирования - выполнена проектная и рабочая документации. . Статус строительства - в работе.
Год реализации: 2018
Стоимость проектирования: 34 999 ₽
г. Волгоград
6 фотографий







